Description
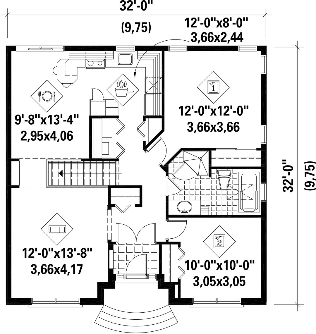
This bungalow presents a number of interesting features such as a brick facade, a porch with decorative moldings and two large windows with keystones. The house is 32 feet wide by 32 feet deep and provides 1,003 square feet of living space.
The home includes a living room, an L-shaped kitchen with a lunch counter, a dining room, two bedrooms and a bathroom.
The home includes a living room, an L-shaped kitchen with a lunch counter, a dining room, two bedrooms and a bathroom.
Additional info
Measurements: Imperial| House style | European |
Construction price
Approximate amount equivalent to what it would cost to have a general contractor (Montreal's South Shore region) build a similar home, excluding the lot and the infrastructure.
|
238002 $ |
|---|---|---|---|
| Front | 32 ft | Total living surface | 1003 ft² |
| Depth | 32 ft | Bathrooms | 1 |
| Height | 24 ft | Bedrooms | 2 |
| Master bedroom | N / A | ||
| First floor area | 1003 ft² | Exterior walls | Aggregates + Aluminum + Brick |
| Kitchen | Breakfast bar + L-shaped layout + Dining room | ||
| Garages | 0 | ||
| First floor wall | 8 ft | ||
| Front/back roof slope | 8/12 | ||
| Left/right roof slope | 12/12 |
| House style | European |
|---|---|
|
Construction price
Approximate amount equivalent to what it would cost to have a general contractor (Montreal's South Shore region) build a similar home, excluding the lot and the infrastructure.
|
238002 $ |
| Front | 32 ft |
| Total living surface | 1003 ft² |
| Depth | 32 ft |
| Bathrooms | 1 |
| Height | 24 ft |
| Bedrooms | 2 |
| Master bedroom | N / A |
| First floor area | 1003 ft² |
| Exterior walls | Aggregates + Aluminum + Brick |
| Kitchen | Breakfast bar + L-shaped layout + Dining room |
| Garages | 0 |
| First floor wall | 8 ft |
| Front/back roof slope | 8/12 |
| Left/right roof slope | 12/12 |