10033
10033
10033

10033


Jeux de plans - Sets of plans
Regular price$828.00
/

This site is protected by hCaptcha and the hCaptcha Privacy Policy and Terms of Service apply.

Description

NULL

Additional info

Measurements: Imperial

House style Classical Construction price 
Approximate amount equivalent to what it would cost to have a general contractor (Montreal's South Shore region) build a similar home, excluding the lot and the infrastructure.
182784 $
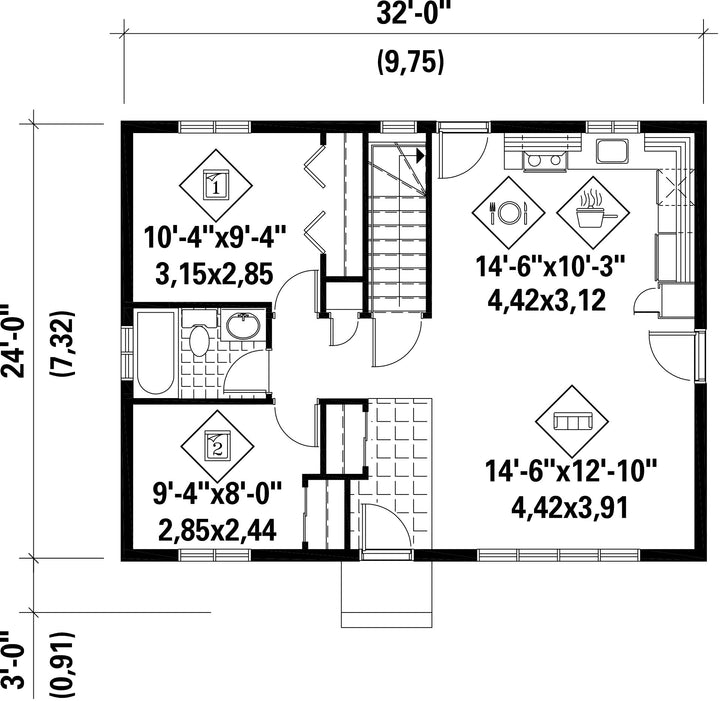
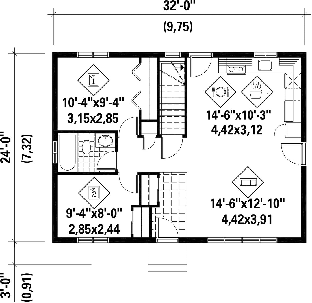
Front 32 ft Total living surface 768 ft²
Depth 24 ftBathrooms 1
Height 15 ft 6 inBedrooms 2
First floor area 768 ft² Exterior walls Aluminum
Kitchen L shaped + Dining room
Garages 0
First floor wall 8 ft
Front/back roof slope 5/12
House style Classical
Construction price 
Approximate amount equivalent to what it would cost to have a general contractor (Montreal's South Shore region) build a similar home, excluding the lot and the infrastructure.
182784 $
Front 32 ft
Total living surface 768 ft²
Depth 24 ft
Bathrooms 1
Height 15 ft 6 in
Bedrooms 2
First floor area 768 ft²
Exterior walls Aluminum
Kitchen L shaped + Dining room
Garages 0
First floor wall 8 ft
Front/back roof slope 5/12

Ces plans de maison pourraient également vous intéresser


Recently viewed