Description
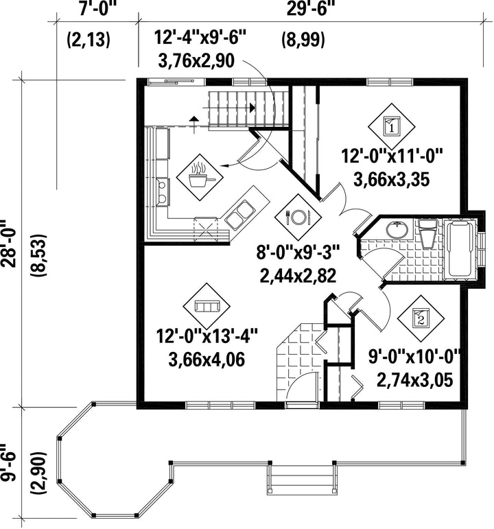
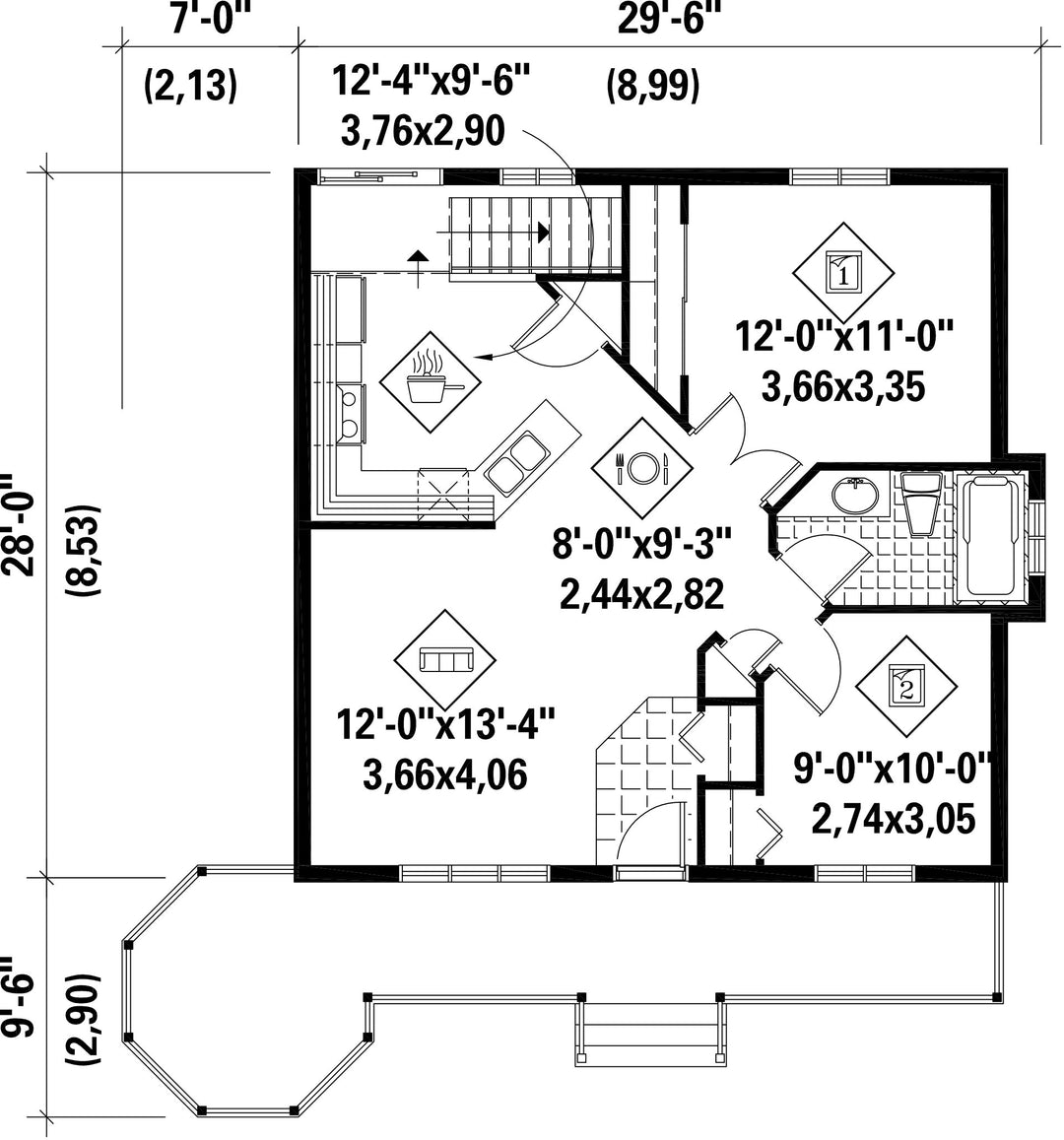
This charming bungalow stands out thanks to lovely decorative moldings, a large veranda and a pergola. The house is 29 feet 6 inches wide by 28 feet deep and provides 794 square feet of living space.
The home has a functional kitchen, an open living and dining area, a bathroom and two bedrooms, including a master bedroom with French doors overlooking the back garden.
The home has a functional kitchen, an open living and dining area, a bathroom and two bedrooms, including a master bedroom with French doors overlooking the back garden.
Additional info
Measurements: Imperial| House style | Country |
Construction price
Approximate amount equivalent to what it would cost to have a general contractor (Montreal's South Shore region) build a similar home, excluding the lot and the infrastructure.
|
192917 $ |
|---|---|---|---|
| Front | 29 ft 6 in | Total living surface | 794 ft² |
| Depth | 28 ft | Bathrooms | 1 |
| Height | 23 ft 9 in | Bedrooms | 2 |
| Master bedroom | Double doors | ||
| First floor area | 794 ft² | Exterior walls | Aluminum |
| Garages | 0 | ||
| First floor wall | 8 ft | ||
| Left/right roof slope | 9/12 |
| House style | Country |
|---|---|
|
Construction price
Approximate amount equivalent to what it would cost to have a general contractor (Montreal's South Shore region) build a similar home, excluding the lot and the infrastructure.
|
192917 $ |
| Front | 29 ft 6 in |
| Total living surface | 794 ft² |
| Depth | 28 ft |
| Bathrooms | 1 |
| Height | 23 ft 9 in |
| Bedrooms | 2 |
| Master bedroom | Double doors |
| First floor area | 794 ft² |
| Exterior walls | Aluminum |
| Garages | 0 |
| First floor wall | 8 ft |
| Left/right roof slope | 9/12 |