10013
10013
10013

10013


Jeux de plans - Sets of plans
Regular price$1,035.00
/

This site is protected by hCaptcha and the hCaptcha Privacy Policy and Terms of Service apply.

Description

NULL

Additional info

Measurements: Imperial

House style Classical Construction price 
Approximate amount equivalent to what it would cost to have a general contractor (Montreal's South Shore region) build a similar home, excluding the lot and the infrastructure.
320859 $
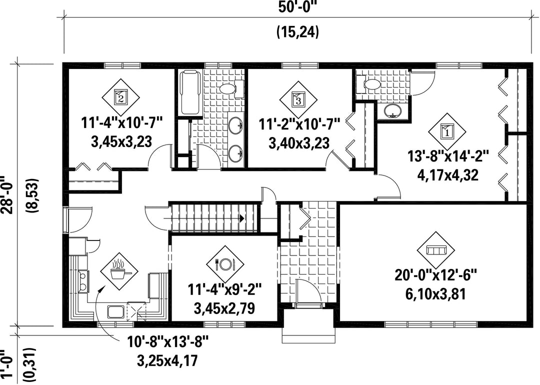
Front 50 ft Total living surface 1389 ft²
Depth 28 ftBathrooms 1
Height 14 ft 6 inBedrooms 3
Master bedroom Simple sink + Toilet
First floor area 1389 ft² Exterior walls Aluminum
Kitchen U shaped + Dining room
Garages 0
First floor wall 8 ft
House style Classical
Construction price 
Approximate amount equivalent to what it would cost to have a general contractor (Montreal's South Shore region) build a similar home, excluding the lot and the infrastructure.
320859 $
Front 50 ft
Total living surface 1389 ft²
Depth 28 ft
Bathrooms 1
Height 14 ft 6 in
Bedrooms 3
Master bedroom Simple sink + Toilet
First floor area 1389 ft²
Exterior walls Aluminum
Kitchen U shaped + Dining room
Garages 0
First floor wall 8 ft

Ces plans de maison pourraient également vous intéresser


Recently viewed