Description
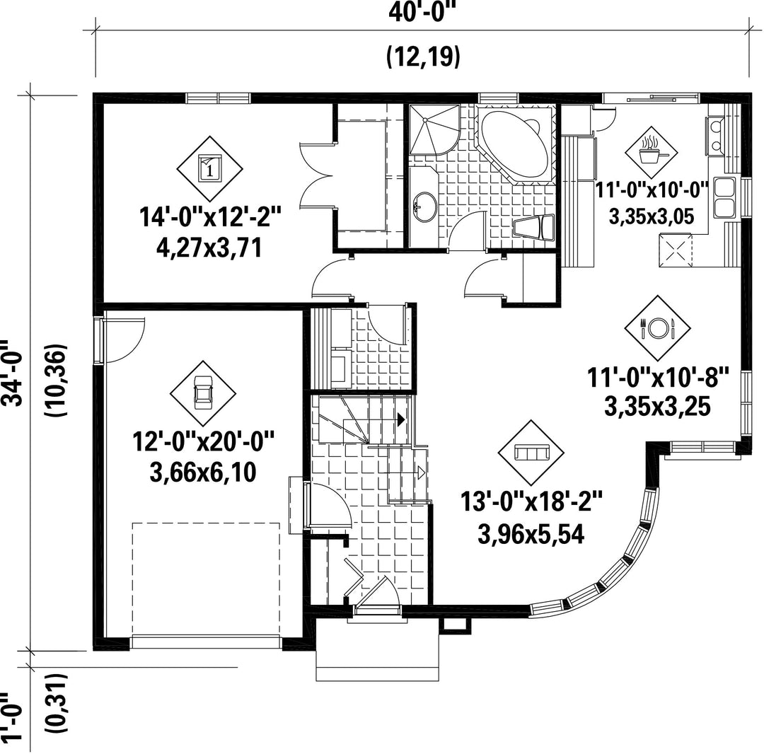
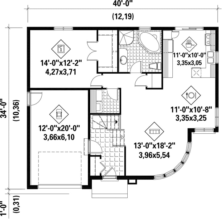
Large transom windows and a partially rounded facade enhance this stone bungalow. The house is 40 feet wide by 34 feet deep and provides 968 square feet of living space.
The home includes an open kitchen, an open living and dining area, a powder room with a laundry area, a bathroom and one bedroom. The 266 square foot one-garage provides direct access to the entrance hall.
The home includes an open kitchen, an open living and dining area, a powder room with a laundry area, a bathroom and one bedroom. The 266 square foot one-garage provides direct access to the entrance hall.
Additional info
Measurements: Imperial| House style | European |
Construction price
Approximate amount equivalent to what it would cost to have a general contractor (Montreal's South Shore region) build a similar home, excluding the lot and the infrastructure.
|
279744 $ |
|---|---|---|---|
| Front | 40 ft | Total living surface | 968 ft² |
| Depth | 34 ft | Bathrooms | 1 |
| Height | 31 ft 6 in | Bedrooms | 1 |
| Master bedroom | Wardrobe | ||
| First floor area | 968 ft² | Exterior walls | Aggregates + Stone |
| Kitchen | Laboratory + Dining Room | ||
| Garage area | 266 ft² | Garages | 1 |
| Garage wall | 8 ft | First floor wall | 9 ft |
| Front/back roof slope | 12/12 | ||
| Left/right roof slope | 12/12 |
| House style | European |
|---|---|
|
Construction price
Approximate amount equivalent to what it would cost to have a general contractor (Montreal's South Shore region) build a similar home, excluding the lot and the infrastructure.
|
279744 $ |
| Front | 40 ft |
| Total living surface | 968 ft² |
| Depth | 34 ft |
| Bathrooms | 1 |
| Height | 31 ft 6 in |
| Bedrooms | 1 |
| Master bedroom | Wardrobe |
| First floor area | 968 ft² |
| Exterior walls | Aggregates + Stone |
| Kitchen | Laboratory + Dining Room |
| Garage area | 266 ft² |
| Garages | 1 |
| Garage wall | 8 ft |
| First floor wall | 9 ft |
| Front/back roof slope | 12/12 |
| Left/right roof slope | 12/12 |