09887
09887
09887
09887

09887


Jeux de plans - Sets of plans
Regular price$945.00
/

This site is protected by hCaptcha and the hCaptcha Privacy Policy and Terms of Service apply.

Description

NULL

Additional info

Measurements: Imperial

House style Country Construction price 
Approximate amount equivalent to what it would cost to have a general contractor (Montreal's South Shore region) build a similar home, excluding the lot and the infrastructure.
328524 $
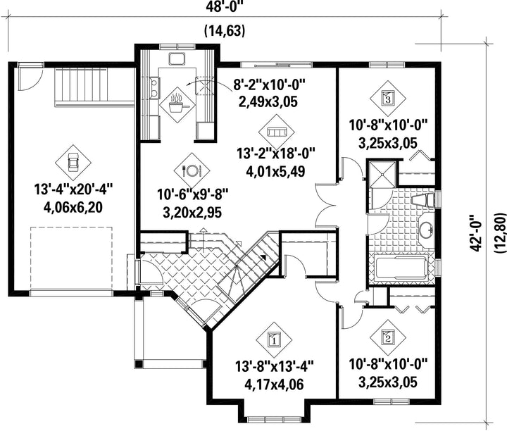
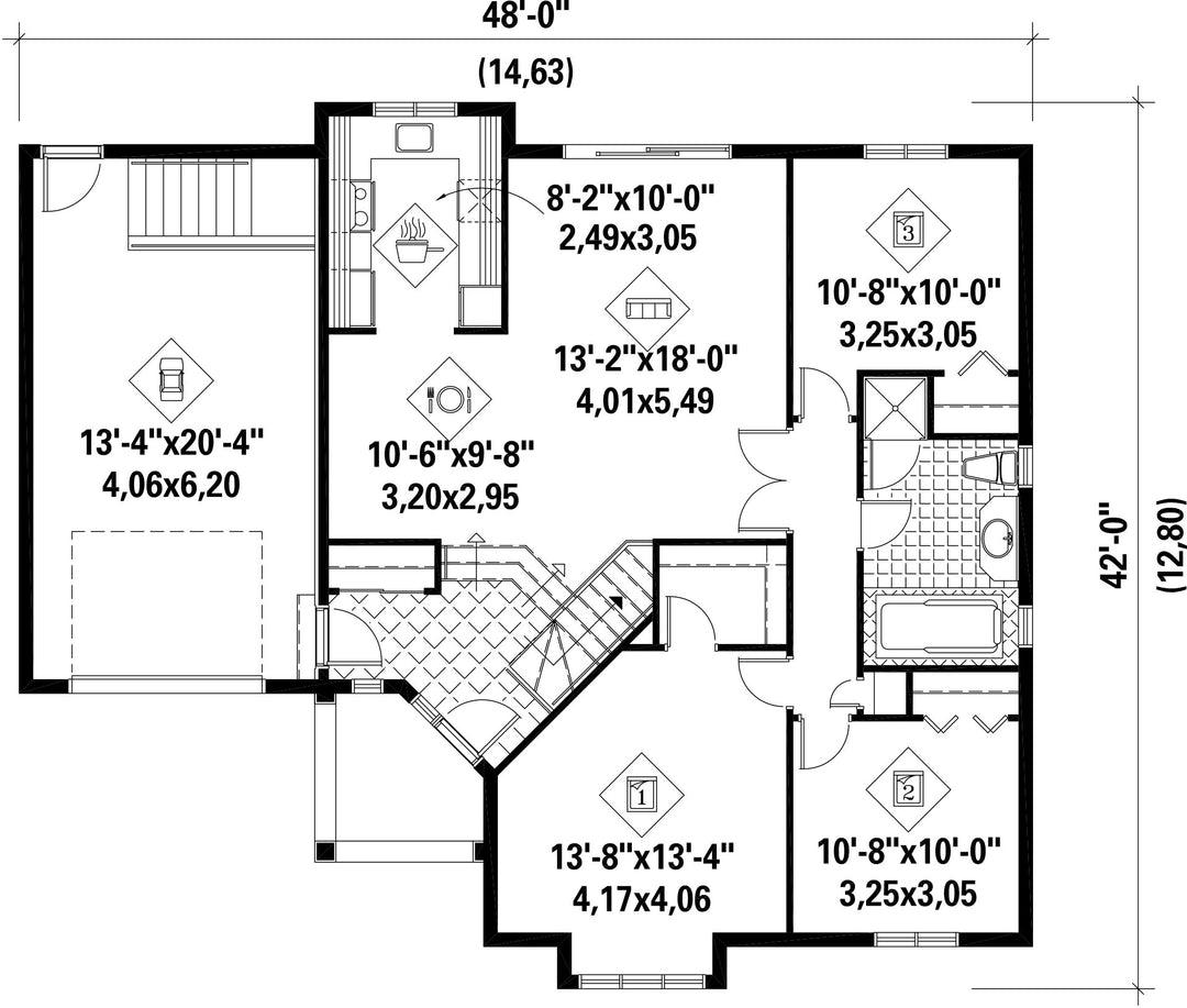
Front 48 ft Total living surface 1239 ft²
Depth 42 ftBathrooms 1
Height 22 ft 6 inBedrooms 3
Master bedroom Walk in
First floor area 1239 ft² Exterior walls Stucco + Aluminum
Kitchen U shaped + Laboratory
Garage area 364 ft² Garages 1
Garage wall 8 ftFirst floor wall 8 ft
Front/back roof slope 6/12
House style Country
Construction price 
Approximate amount equivalent to what it would cost to have a general contractor (Montreal's South Shore region) build a similar home, excluding the lot and the infrastructure.
328524 $
Front 48 ft
Total living surface 1239 ft²
Depth 42 ft
Bathrooms 1
Height 22 ft 6 in
Bedrooms 3
Master bedroom Walk in
First floor area 1239 ft²
Exterior walls Stucco + Aluminum
Kitchen U shaped + Laboratory
Garage area 364 ft²
Garages 1
Garage wall 8 ft
First floor wall 8 ft
Front/back roof slope 6/12

Ces plans de maison pourraient également vous intéresser


Recently viewed