09377
09377
09377

09377


Sets of plans
Regular price$945.00
/

This site is protected by hCaptcha and the hCaptcha Privacy Policy and Terms of Service apply.

Description

NULL

Additional info

Measurements: Imperial

House style Victorian Construction price 
Approximate amount equivalent to what it would cost to have a general contractor (Montreal's South Shore region) build a similar home, excluding the lot and the infrastructure.
310150 $
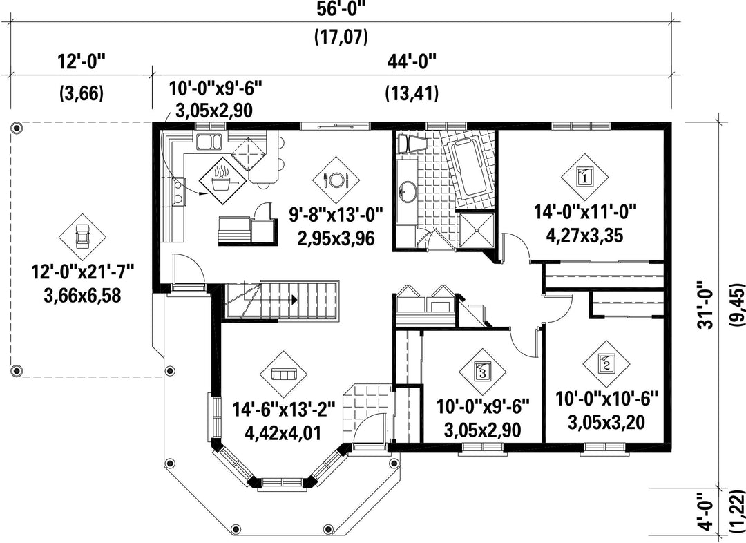
Front 44 ft Total living surface 1188 ft²
Depth 31 ftBathrooms 1
Height 22 ft 4 inBedrooms 3
Master bedroom N / A
First floor area 1188 ft² Exterior walls Aluminum + Brick
Kitchen Lunch counter + L-shaped
Garage area 259 ft² Garages 1
Garage wall 8 ftFirst floor wall 8 ft
Front/back roof slope 9/12
House style Victorian
Construction price 
Approximate amount equivalent to what it would cost to have a general contractor (Montreal's South Shore region) build a similar home, excluding the lot and the infrastructure.
310150 $
Front 44 ft
Total living surface 1188 ft²
Depth 31 ft
Bathrooms 1
Height 22 ft 4 in
Bedrooms 3
Master bedroom N / A
First floor area 1188 ft²
Exterior walls Aluminum + Brick
Kitchen Lunch counter + L-shaped
Garage area 259 ft²
Garages 1
Garage wall 8 ft
First floor wall 8 ft
Front/back roof slope 9/12

These house plans might also interest you


Recently viewed