Description
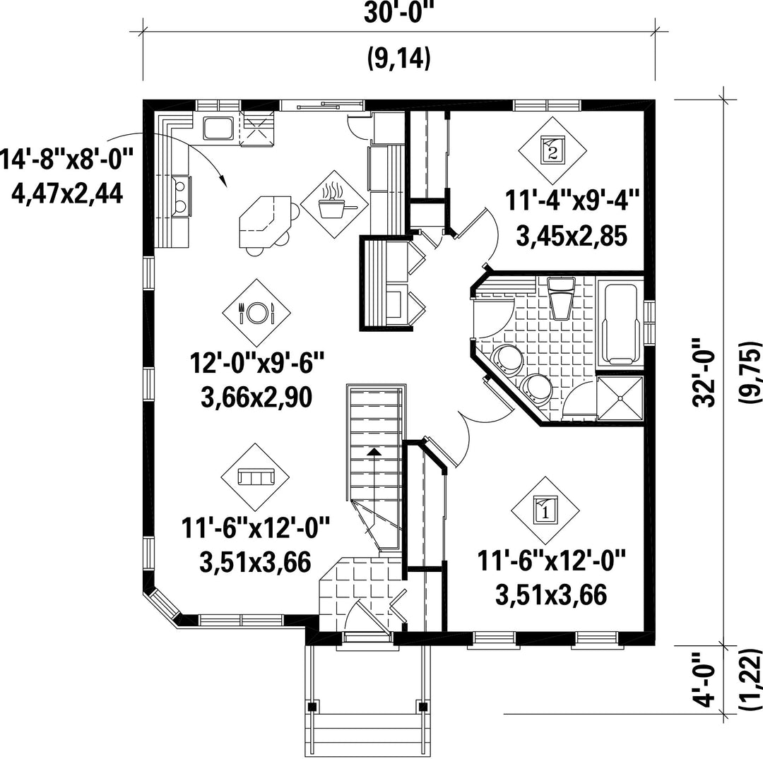
This bungalow stands out with its decorative shutters and vertical brick facing. The house is 30 feet wide by 32 feet deep and provides 949 square feet of living space.
The home includes an open living room and dining room, a kitchen with an island and a lunch counter, a bathroom as well as two bedrooms.
The home includes an open living room and dining room, a kitchen with an island and a lunch counter, a bathroom as well as two bedrooms.
Additional info
Measurements: Imperial| House style | Rustic |
Construction price
Approximate amount equivalent to what it would cost to have a general contractor (Montreal's South Shore region) build a similar home, excluding the lot and the infrastructure.
|
225473 $ |
|---|---|---|---|
| Front | 30 ft | Total living surface | 949 ft² |
| Depth | 32 ft | Bathrooms | 1 |
| Height | 22 ft | Bedrooms | 2 |
| Master bedroom | Double doors | ||
| First floor area | 949 ft² | Exterior walls | Aluminum + Brick |
| Kitchen | Breakfast bar + U-shape + Dining room + Island | ||
| Garages | 0 | ||
| First floor wall | 8 ft | ||
| Left/right roof slope | 7/12 |
| House style | Rustic |
|---|---|
|
Construction price
Approximate amount equivalent to what it would cost to have a general contractor (Montreal's South Shore region) build a similar home, excluding the lot and the infrastructure.
|
225473 $ |
| Front | 30 ft |
| Total living surface | 949 ft² |
| Depth | 32 ft |
| Bathrooms | 1 |
| Height | 22 ft |
| Bedrooms | 2 |
| Master bedroom | Double doors |
| First floor area | 949 ft² |
| Exterior walls | Aluminum + Brick |
| Kitchen | Breakfast bar + U-shape + Dining room + Island |
| Garages | 0 |
| First floor wall | 8 ft |
| Left/right roof slope | 7/12 |