09015
09015
09015

09015


Sets of plans
Regular price$864.00
/

This site is protected by hCaptcha and the hCaptcha Privacy Policy and Terms of Service apply.

Description

NULL

Additional info

Measurements: Imperial

House style Classic Construction price 
Approximate amount equivalent to what it would cost to have a general contractor (Montreal's South Shore region) build a similar home, excluding the lot and the infrastructure.
208110 $
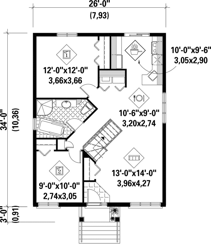
Front 26 ft Total living surface 884 ft²
Depth 34 ftBathrooms 1
Height 22 ft 5 inBedrooms 2
Master bedroom N / A
First floor area 884 ft² Exterior walls Aluminum + Brick
Kitchen Laboratory
Garages 0
First floor wall 8 ft
Front/back roof slope 6/12
House style Classic
Construction price 
Approximate amount equivalent to what it would cost to have a general contractor (Montreal's South Shore region) build a similar home, excluding the lot and the infrastructure.
208110 $
Front 26 ft
Total living surface 884 ft²
Depth 34 ft
Bathrooms 1
Height 22 ft 5 in
Bedrooms 2
Master bedroom N / A
First floor area 884 ft²
Exterior walls Aluminum + Brick
Kitchen Laboratory
Garages 0
First floor wall 8 ft
Front/back roof slope 6/12

These house plans might also interest you


Recently viewed