09001
09001
09001

09001


This plan is offered with multiple variants. You can consult the variants by choosing a plan number in the menu below. The technical plan in the images as well as the information and dimensions table will update automatically.


Jeux de plans - Sets of plans
Regular price$864.00
/

This site is protected by hCaptcha and the hCaptcha Privacy Policy and Terms of Service apply.

Description

NULL

Additional info

Measurements: Imperial

House style Country Construction price 
Approximate amount equivalent to what it would cost to have a general contractor (Montreal's South Shore region) build a similar home, excluding the lot and the infrastructure.
209748 $
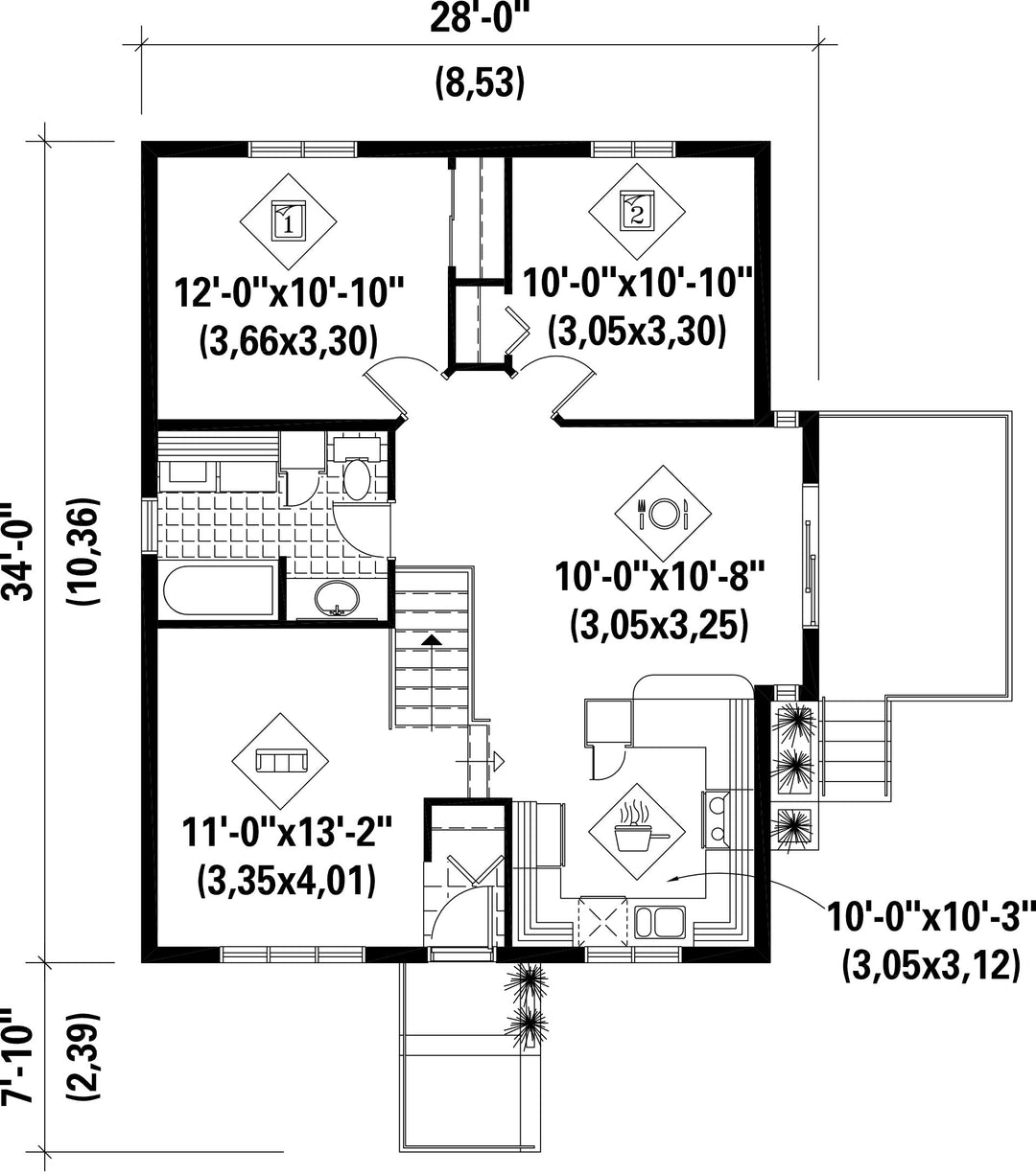
Front 28 ft Total living surface 908 ft²
Depth 34 ftBathrooms 1
Height 17 ftBedrooms 2
First floor area 908 ft² Exterior walls Aluminum
Kitchen Snack + U shaped + Dining room
Garages 0
First floor wall 8 ft
Front/back roof slope 4/12
Left/right roof slope 7/12
House style Country
Construction price 
Approximate amount equivalent to what it would cost to have a general contractor (Montreal's South Shore region) build a similar home, excluding the lot and the infrastructure.
209748 $
Front 28 ft
Total living surface 908 ft²
Depth 34 ft
Bathrooms 1
Height 17 ft
Bedrooms 2
First floor area 908 ft²
Exterior walls Aluminum
Kitchen Snack + U shaped + Dining room
Garages 0
First floor wall 8 ft
Front/back roof slope 4/12
Left/right roof slope 7/12

Ces plans de maison pourraient également vous intéresser


Recently viewed