08804
08804
08804

08804


This plan is offered with multiple variants. You can consult the variants by choosing a plan number in the menu below. The technical plan in the images as well as the information and dimensions table will update automatically.


Jeux de plans - Sets of plans
Regular price$945.00
/

This site is protected by hCaptcha and the hCaptcha Privacy Policy and Terms of Service apply.

Description

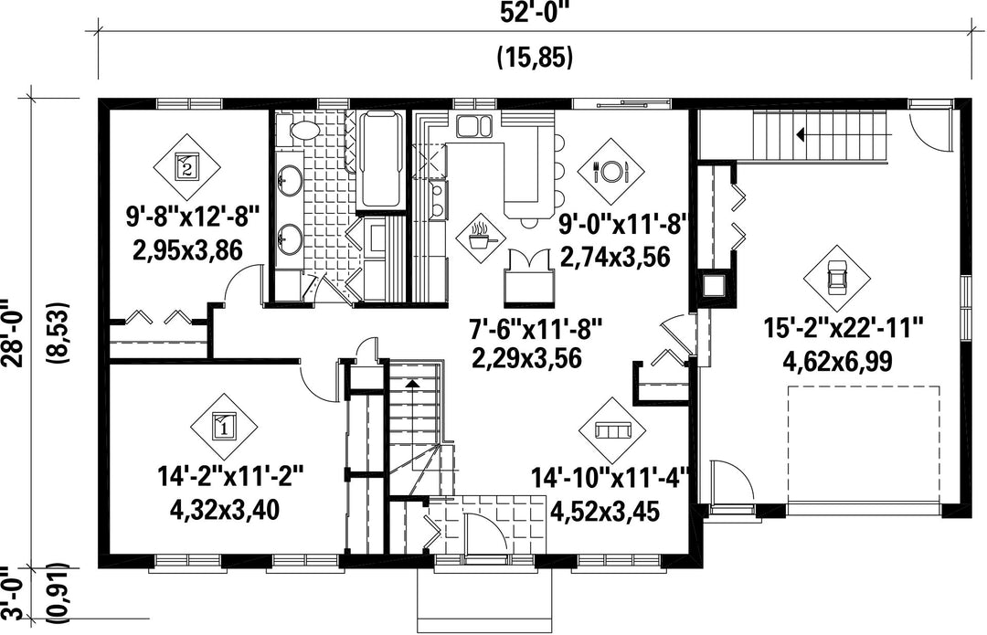
This attractive bungalow is 52 feet wide by 28 feet deep and provides 1,000 square feet of living space. The house has a 408 square foot one-car garage with a storage area.
The home consists of a living room with a fireplace, a U-shaped kitchen with a lunch counter, a dining room, a large bathroom with a laundry area, and two bedrooms including a master bedroom with two walk-in closets.

Additional info

Measurements: Imperial

House style Classical Construction price 
Approximate amount equivalent to what it would cost to have a general contractor (Montreal's South Shore region) build a similar home, excluding the lot and the infrastructure.
282823 $
Front 52 ft Total living surface 1000 ft²
Depth 28 ftBathrooms 1
Height 17 ft 8 inBedrooms 2
First floor area 1000 ft² Exterior walls Aluminum + Brick
Kitchen Snack + U shaped + Dining room
Garage area 408 ft² Garages 1
Garage wall 8 ftFirst floor wall 8 ft
Front/back roof slope 6/12
House style Classical
Construction price 
Approximate amount equivalent to what it would cost to have a general contractor (Montreal's South Shore region) build a similar home, excluding the lot and the infrastructure.
282823 $
Front 52 ft
Total living surface 1000 ft²
Depth 28 ft
Bathrooms 1
Height 17 ft 8 in
Bedrooms 2
First floor area 1000 ft²
Exterior walls Aluminum + Brick
Kitchen Snack + U shaped + Dining room
Garage area 408 ft²
Garages 1
Garage wall 8 ft
First floor wall 8 ft
Front/back roof slope 6/12

Ces plans de maison pourraient également vous intéresser


Recently viewed