08172
08172
08172

08172


Jeux de plans - Sets of plans
Regular price$864.00
/

This site is protected by hCaptcha and the hCaptcha Privacy Policy and Terms of Service apply.

Description

NULL

Additional info

Measurements: Imperial

House style Modern Construction price 
Approximate amount equivalent to what it would cost to have a general contractor (Montreal's South Shore region) build a similar home, excluding the lot and the infrastructure.
237679 $
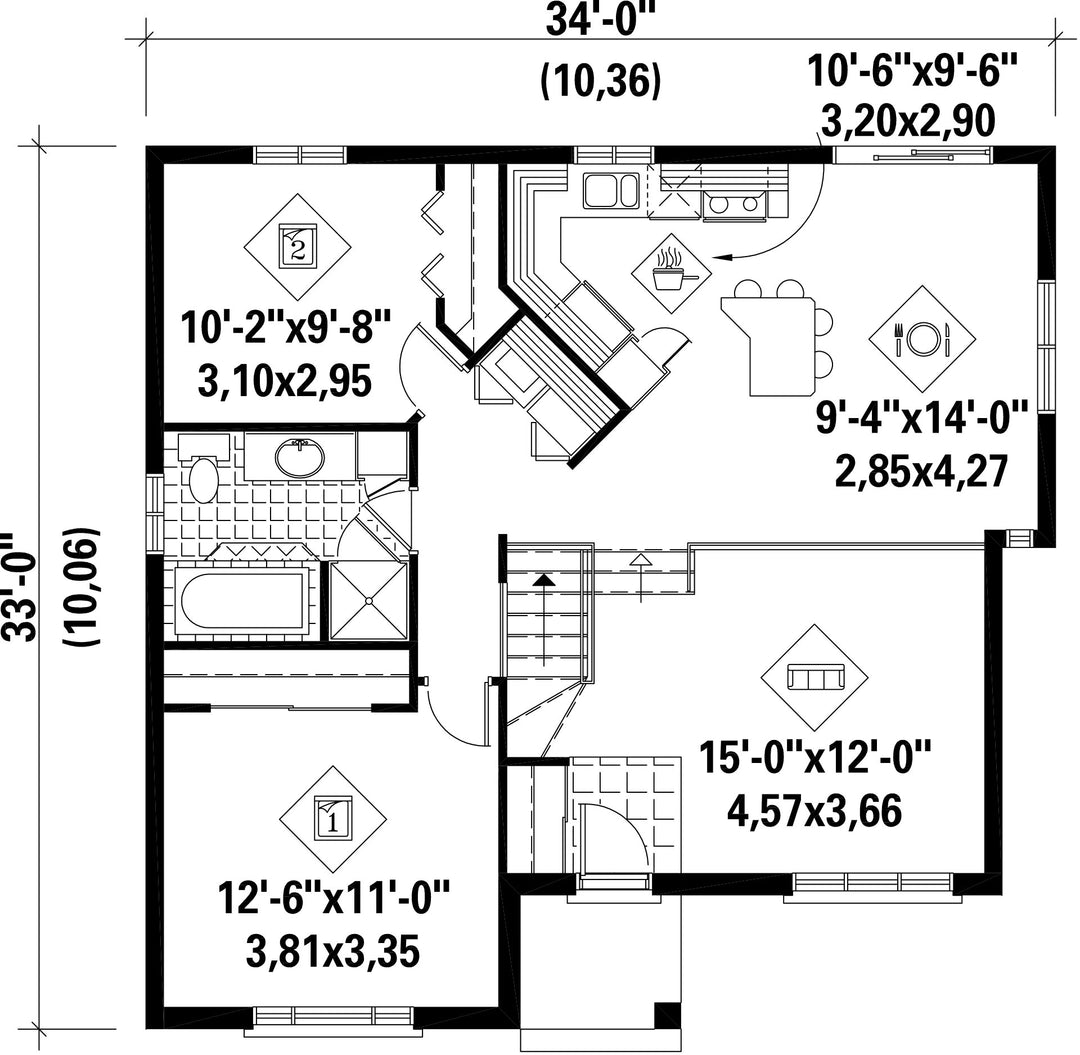
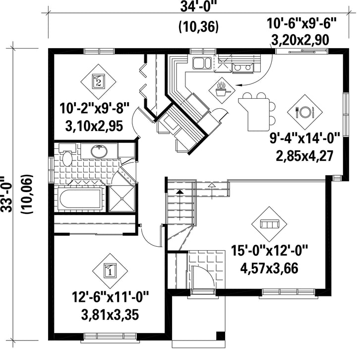
Front 34 ft Total living surface 996 ft²
Depth 33 ftBathrooms 1
Height 19 ft 8 inBedrooms 2
First floor area 996 ft² Exterior walls Aluminum + Brick
Kitchen Snack + L shaped + Island
Garages 0
First floor wall 8 ft
Front/back roof slope 6/12
Left/right roof slope 8/12
House style Modern
Construction price 
Approximate amount equivalent to what it would cost to have a general contractor (Montreal's South Shore region) build a similar home, excluding the lot and the infrastructure.
237679 $
Front 34 ft
Total living surface 996 ft²
Depth 33 ft
Bathrooms 1
Height 19 ft 8 in
Bedrooms 2
First floor area 996 ft²
Exterior walls Aluminum + Brick
Kitchen Snack + L shaped + Island
Garages 0
First floor wall 8 ft
Front/back roof slope 6/12
Left/right roof slope 8/12

Ces plans de maison pourraient également vous intéresser


Recently viewed