08016
08016
08016
08016

08016


Jeux de plans - Sets of plans
Regular price$864.00
/

This site is protected by hCaptcha and the hCaptcha Privacy Policy and Terms of Service apply.

Description

NULL

Additional info

Measurements: Imperial

House style Classical Construction price 
Approximate amount equivalent to what it would cost to have a general contractor (Montreal's South Shore region) build a similar home, excluding the lot and the infrastructure.
222656 $
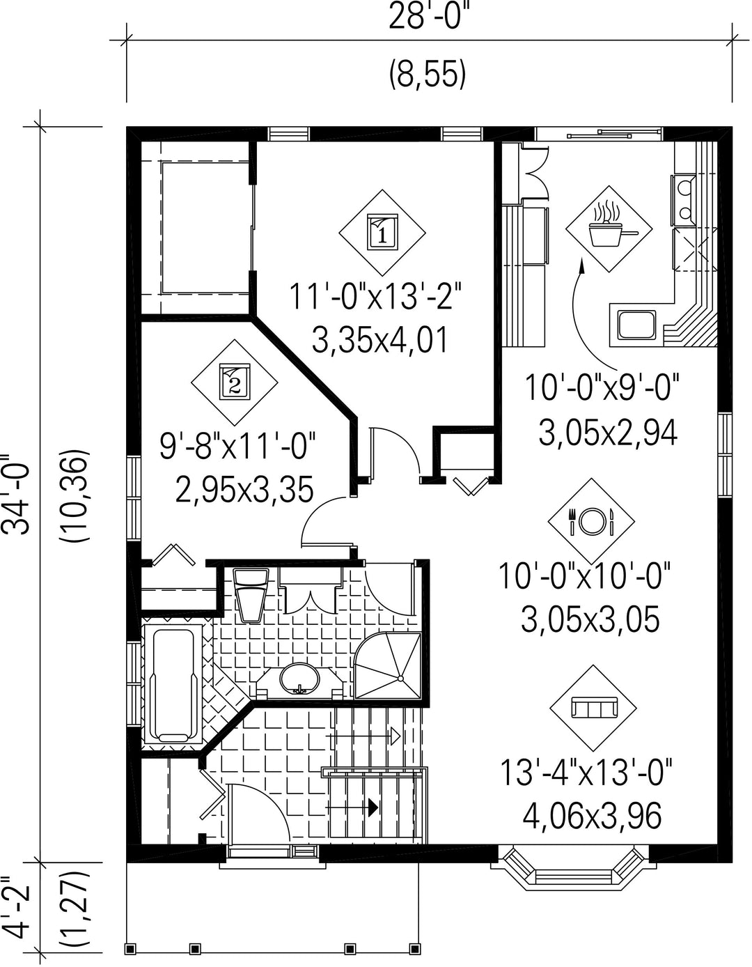
Front 28 ft Total living surface 952 ft²
Depth 34 ftBathrooms 1
Height 20 ft 8 inBedrooms 2
Master bedroom Walk in
First floor area 952 ft² Exterior walls Aluminum + Brick
Kitchen Laboratory
Garages 0
First floor wall 8 ft
Front/back roof slope 12/12
Left/right roof slope 6/12
House style Classical
Construction price 
Approximate amount equivalent to what it would cost to have a general contractor (Montreal's South Shore region) build a similar home, excluding the lot and the infrastructure.
222656 $
Front 28 ft
Total living surface 952 ft²
Depth 34 ft
Bathrooms 1
Height 20 ft 8 in
Bedrooms 2
Master bedroom Walk in
First floor area 952 ft²
Exterior walls Aluminum + Brick
Kitchen Laboratory
Garages 0
First floor wall 8 ft
Front/back roof slope 12/12
Left/right roof slope 6/12

Ces plans de maison pourraient également vous intéresser


Recently viewed