07144
07144
07144

07144


Jeux de plans - Sets of plans
Regular price$945.00
/

This site is protected by hCaptcha and the hCaptcha Privacy Policy and Terms of Service apply.

Description

NULL

Additional info

Measurements: Imperial

House style Classical Construction price 
Approximate amount equivalent to what it would cost to have a general contractor (Montreal's South Shore region) build a similar home, excluding the lot and the infrastructure.
294398 $
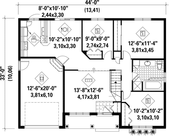
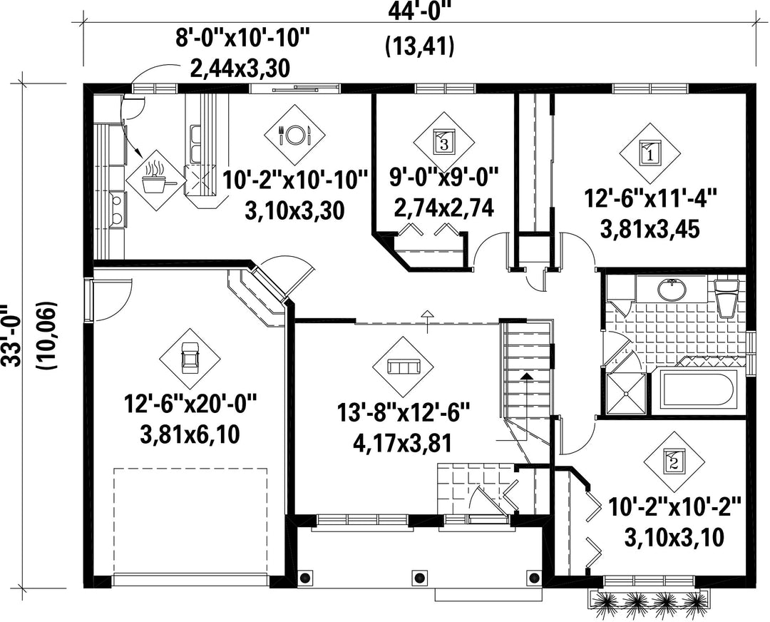
Front 44 ft Total living surface 1113 ft²
Depth 33 ftBathrooms 1
Height 19 ft 11 inBedrooms 3
First floor area 1113 ft² Exterior walls Aluminum + Brick
Kitchen Snack + Laboratory + Dining room
Garage area 275 ft² Garages 1
Garage wall 8 ftFirst floor wall 8 ft
Front/back roof slope 5/12
Left/right roof slope 8/12
House style Classical
Construction price 
Approximate amount equivalent to what it would cost to have a general contractor (Montreal's South Shore region) build a similar home, excluding the lot and the infrastructure.
294398 $
Front 44 ft
Total living surface 1113 ft²
Depth 33 ft
Bathrooms 1
Height 19 ft 11 in
Bedrooms 3
First floor area 1113 ft²
Exterior walls Aluminum + Brick
Kitchen Snack + Laboratory + Dining room
Garage area 275 ft²
Garages 1
Garage wall 8 ft
First floor wall 8 ft
Front/back roof slope 5/12
Left/right roof slope 8/12

Ces plans de maison pourraient également vous intéresser


Recently viewed