Description
NULL
Additional info
Measurements: Imperial| House style | Classic |
Construction price
Approximate amount equivalent to what it would cost to have a general contractor (Montreal's South Shore region) build a similar home, excluding the lot and the infrastructure.
|
333486 $ |
|---|---|---|---|
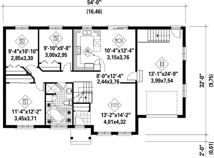
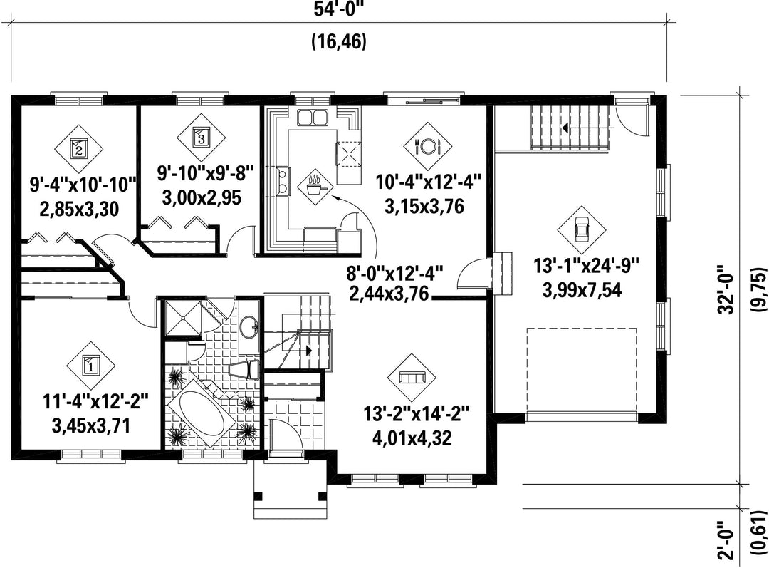
| Front | 54 ft | Total living surface | 1220 ft² |
| Depth | 32 ft | Bathrooms | 1 |
| Height | 21 ft 2 in | Bedrooms | 3 |
| Master bedroom | N / A | ||
| First floor area | 1220 ft² | Exterior walls | Brick |
| Kitchen | U-shaped + Dining room | ||
| Garage area | 386 ft² | Garages | 1 |
| Garage wall | 8 ft | First floor wall | 8 ft |
| Front/back roof slope | 6/12 | ||
| House style | Classic |
|---|---|
|
Construction price
Approximate amount equivalent to what it would cost to have a general contractor (Montreal's South Shore region) build a similar home, excluding the lot and the infrastructure.
|
333486 $ |
| Front | 54 ft |
| Total living surface | 1220 ft² |
| Depth | 32 ft |
| Bathrooms | 1 |
| Height | 21 ft 2 in |
| Bedrooms | 3 |
| Master bedroom | N / A |
| First floor area | 1220 ft² |
| Exterior walls | Brick |
| Kitchen | U-shaped + Dining room |
| Garage area | 386 ft² |
| Garages | 1 |
| Garage wall | 8 ft |
| First floor wall | 8 ft |
| Front/back roof slope | 6/12 |