Description
NULL
Additional info
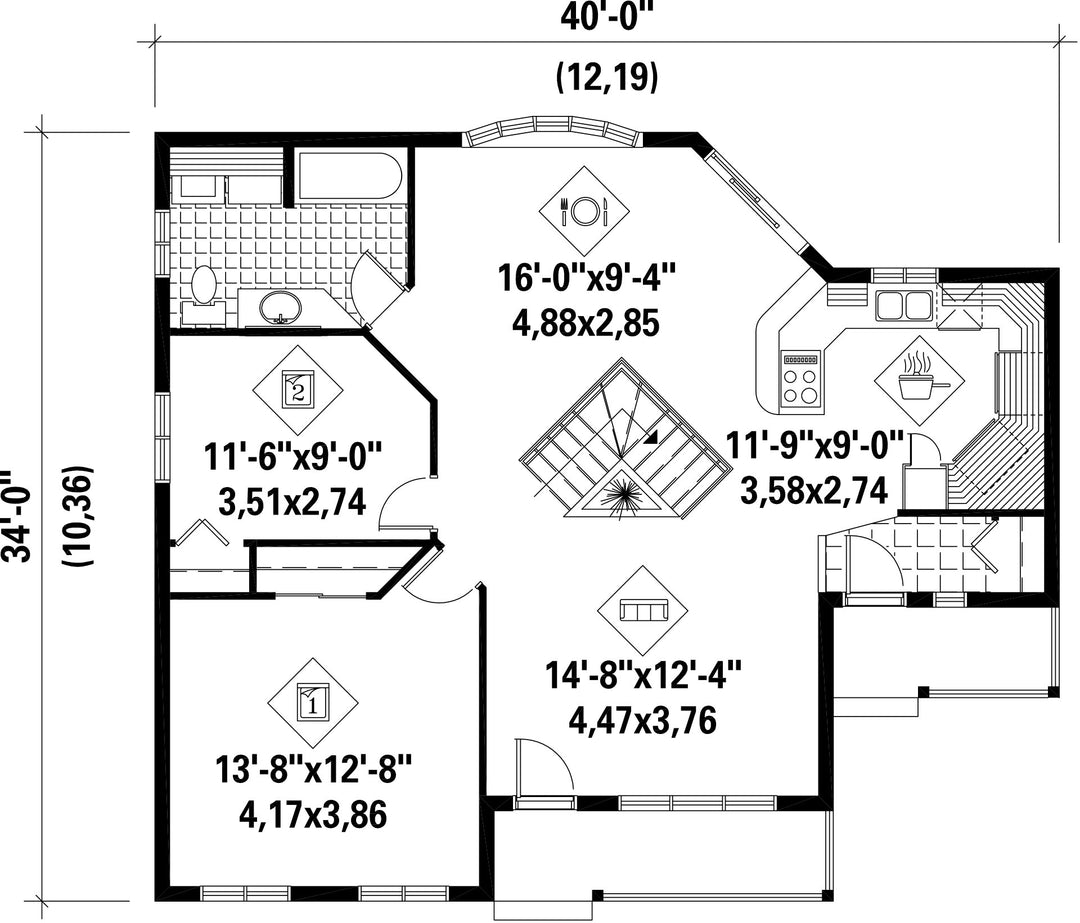
Measurements: Imperial| House style | Rustic |
Construction price
Approximate amount equivalent to what it would cost to have a general contractor (Montreal's South Shore region) build a similar home, excluding the lot and the infrastructure.
|
258497 $ |
|---|---|---|---|
| Front | 40 ft | Total living surface | 1092 ft² |
| Depth | 34 ft | Bathrooms | 1 |
| Height | 23 ft 5 in | Bedrooms | 2 |
| Master bedroom | N / A | ||
| First floor area | 1092 ft² | Exterior walls | Aluminum |
| Kitchen | Lunch counter + L-shaped | ||
| Garages | 0 | ||
| First floor wall | 8 ft | ||
| Front/back roof slope | 8/12 | ||
| House style | Rustic |
|---|---|
|
Construction price
Approximate amount equivalent to what it would cost to have a general contractor (Montreal's South Shore region) build a similar home, excluding the lot and the infrastructure.
|
258497 $ |
| Front | 40 ft |
| Total living surface | 1092 ft² |
| Depth | 34 ft |
| Bathrooms | 1 |
| Height | 23 ft 5 in |
| Bedrooms | 2 |
| Master bedroom | N / A |
| First floor area | 1092 ft² |
| Exterior walls | Aluminum |
| Kitchen | Lunch counter + L-shaped |
| Garages | 0 |
| First floor wall | 8 ft |
| Front/back roof slope | 8/12 |