04502
04502
04502
04502

04502


This plan is offered with multiple variants. You can consult the variants by choosing a plan number in the menu below. The technical plan in the images as well as the information and dimensions table will update automatically.


Sets of plans
Regular price$945.00
/

This site is protected by hCaptcha and the hCaptcha Privacy Policy and Terms of Service apply.

Description

NULL

Additional info

Measurements: Imperial

House style Classic Construction price 
Approximate amount equivalent to what it would cost to have a general contractor (Montreal's South Shore region) build a similar home, excluding the lot and the infrastructure.
278832 $
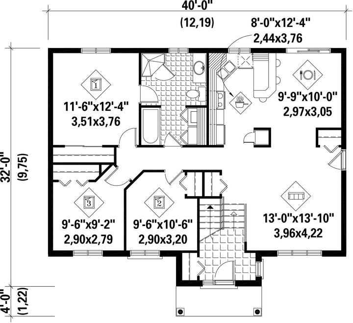
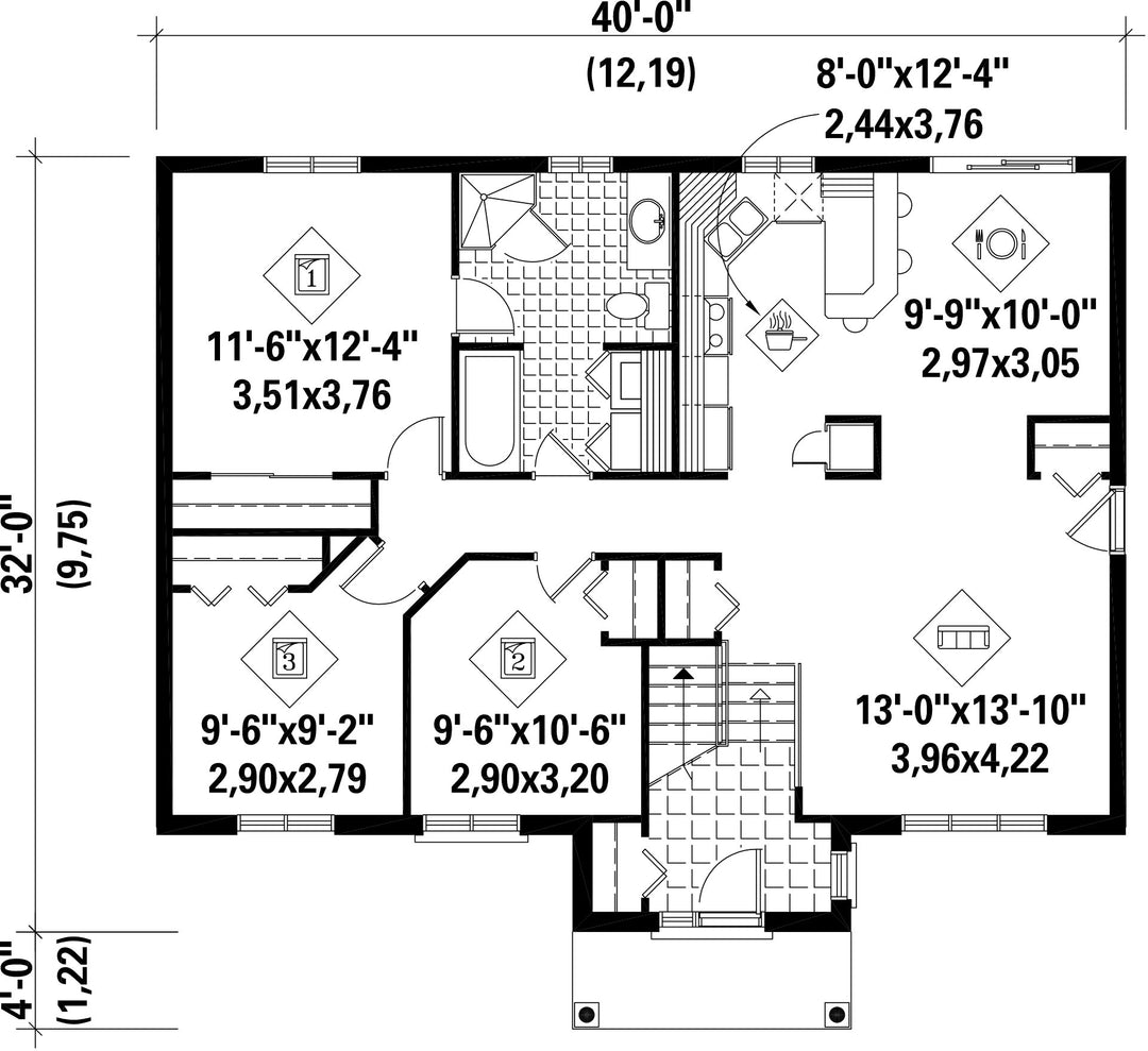
Front 40 ft Total living surface 1166 ft²
Depth 32 ftBathrooms 1
Height 20 ft 2 inBedrooms 3
Master bedroom N / A
First floor area 1166 ft² Exterior walls Aluminum + Brick
Kitchen Lunch counter + L-shaped
Garages 0
First floor wall 8 ft
Front/back roof slope 6/12
House style Classic
Construction price 
Approximate amount equivalent to what it would cost to have a general contractor (Montreal's South Shore region) build a similar home, excluding the lot and the infrastructure.
278832 $
Front 40 ft
Total living surface 1166 ft²
Depth 32 ft
Bathrooms 1
Height 20 ft 2 in
Bedrooms 3
Master bedroom N / A
First floor area 1166 ft²
Exterior walls Aluminum + Brick
Kitchen Lunch counter + L-shaped
Garages 0
First floor wall 8 ft
Front/back roof slope 6/12

These house plans might also interest you


Recently viewed