03521
03521
03521

03521


Jeux de plans - Sets of plans
Regular price$945.00
/

This site is protected by hCaptcha and the hCaptcha Privacy Policy and Terms of Service apply.

Description

NULL

Additional info

Measurements: Imperial

House style Classical Construction price 
Approximate amount equivalent to what it would cost to have a general contractor (Montreal's South Shore region) build a similar home, excluding the lot and the infrastructure.
305682 $
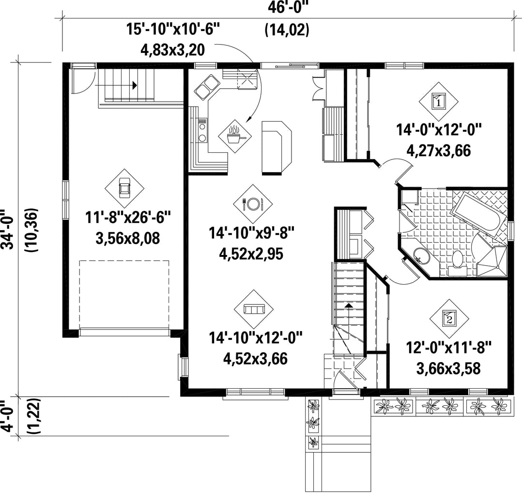
Front 46 ft Total living surface 1145 ft²
Depth 34 ftBathrooms 1
Height 22 ft 9 inBedrooms 2
First floor area 1145 ft² Exterior walls Aluminum + Brick
Kitchen Dining room + Island
Garage area 345 ft² Garages 1
Garage wall 8 ftFirst floor wall 8 ft
Front/back roof slope 6/12
House style Classical
Construction price 
Approximate amount equivalent to what it would cost to have a general contractor (Montreal's South Shore region) build a similar home, excluding the lot and the infrastructure.
305682 $
Front 46 ft
Total living surface 1145 ft²
Depth 34 ft
Bathrooms 1
Height 22 ft 9 in
Bedrooms 2
First floor area 1145 ft²
Exterior walls Aluminum + Brick
Kitchen Dining room + Island
Garage area 345 ft²
Garages 1
Garage wall 8 ft
First floor wall 8 ft
Front/back roof slope 6/12

Ces plans de maison pourraient également vous intéresser


Recently viewed