02991
02991
02991

02991


Jeux de plans - Sets of plans
Regular price$945.00
/

This site is protected by hCaptcha and the hCaptcha Privacy Policy and Terms of Service apply.

Description

NULL

Additional info

Measurements: Imperial

House style Classical Construction price 
Approximate amount equivalent to what it would cost to have a general contractor (Montreal's South Shore region) build a similar home, excluding the lot and the infrastructure.
299228 $
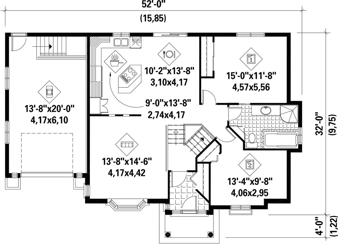
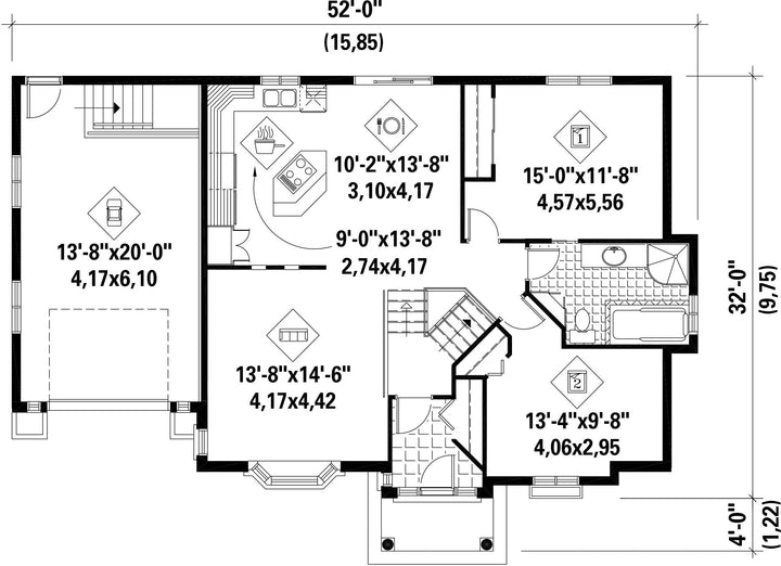
Front 52 ft Total living surface 1116 ft²
Depth 32 ftBathrooms 1
Height 20 ft 10 inBedrooms 2
First floor area 1116 ft² Exterior walls Stucco + Aluminum + Brick
Kitchen Snack + L shaped + Dining room + Island
Garage area 366 ft² Garages 1
Garage wall 8 ftFirst floor wall 8 ft
Front/back roof slope 6/12
House style Classical
Construction price 
Approximate amount equivalent to what it would cost to have a general contractor (Montreal's South Shore region) build a similar home, excluding the lot and the infrastructure.
299228 $
Front 52 ft
Total living surface 1116 ft²
Depth 32 ft
Bathrooms 1
Height 20 ft 10 in
Bedrooms 2
First floor area 1116 ft²
Exterior walls Stucco + Aluminum + Brick
Kitchen Snack + L shaped + Dining room + Island
Garage area 366 ft²
Garages 1
Garage wall 8 ft
First floor wall 8 ft
Front/back roof slope 6/12

Ces plans de maison pourraient également vous intéresser


Recently viewed