Description
NULL
Additional info
Measurements: Imperial| House style | Classic |
Construction price
Approximate amount equivalent to what it would cost to have a general contractor (Montreal's South Shore region) build a similar home, excluding the lot and the infrastructure.
|
369515 $ |
|---|---|---|---|
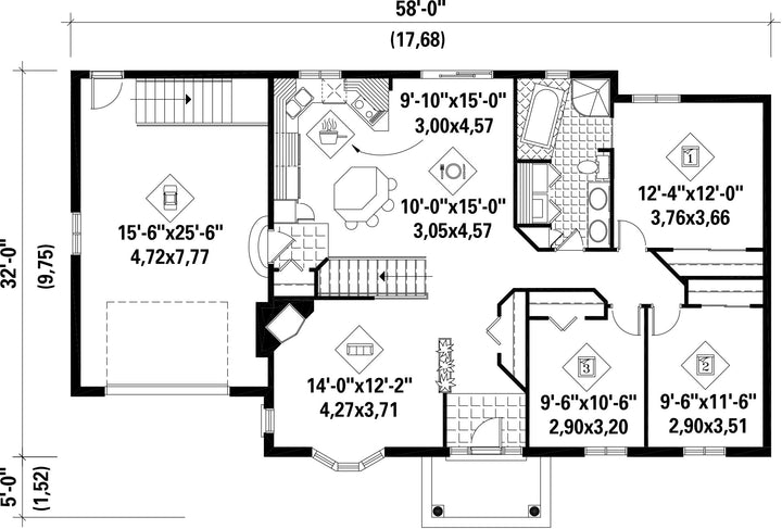
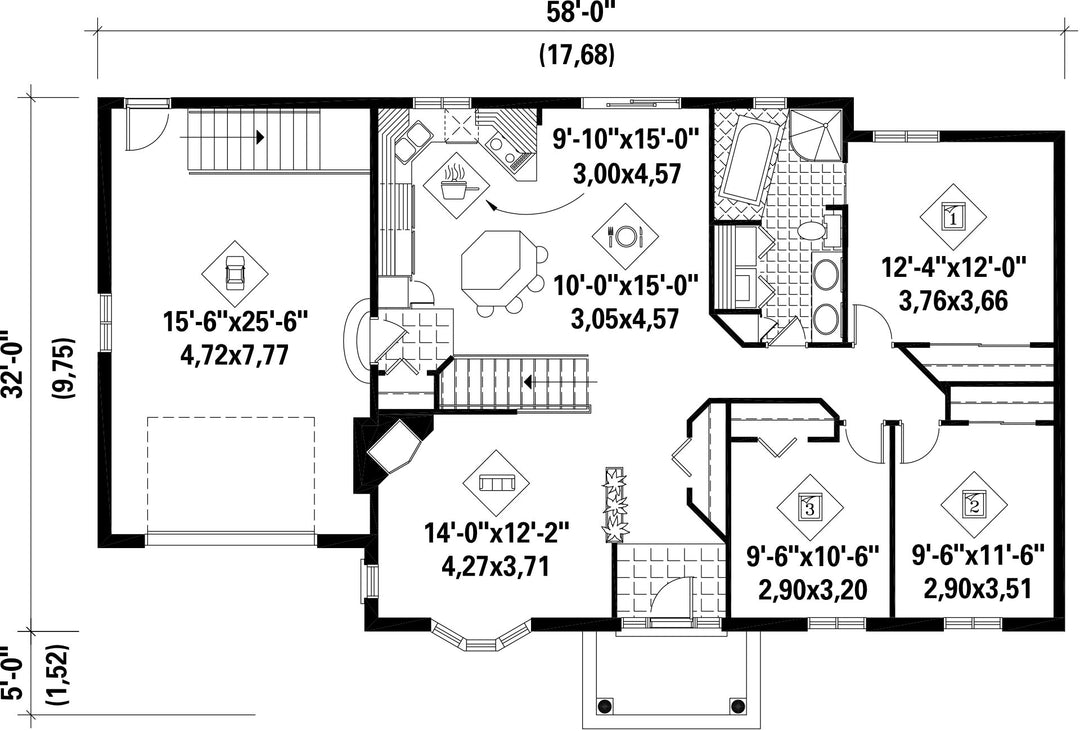
| Front | 58 ft | Total living surface | 1319 ft² |
| Depth | 32 ft | Bathrooms | 1 |
| Height | 21 ft 3 in | Bedrooms | 3 |
| Master bedroom | N / A | ||
| First floor area | 1319 ft² | Exterior walls | Aluminum + Brick |
| Kitchen | Breakfast bar + L-shaped layout + Dining room + Island | ||
| Garage area | 437 ft² | Garages | 1 |
| Garage wall | 8 ft | First floor wall | 8 ft |
| Front/back roof slope | 7/12 | ||
| Left/right roof slope | 10/12 |
| House style | Classic |
|---|---|
|
Construction price
Approximate amount equivalent to what it would cost to have a general contractor (Montreal's South Shore region) build a similar home, excluding the lot and the infrastructure.
|
369515 $ |
| Front | 58 ft |
| Total living surface | 1319 ft² |
| Depth | 32 ft |
| Bathrooms | 1 |
| Height | 21 ft 3 in |
| Bedrooms | 3 |
| Master bedroom | N / A |
| First floor area | 1319 ft² |
| Exterior walls | Aluminum + Brick |
| Kitchen | Breakfast bar + L-shaped layout + Dining room + Island |
| Garage area | 437 ft² |
| Garages | 1 |
| Garage wall | 8 ft |
| First floor wall | 8 ft |
| Front/back roof slope | 7/12 |
| Left/right roof slope | 10/12 |