Description
NULL
Additional info
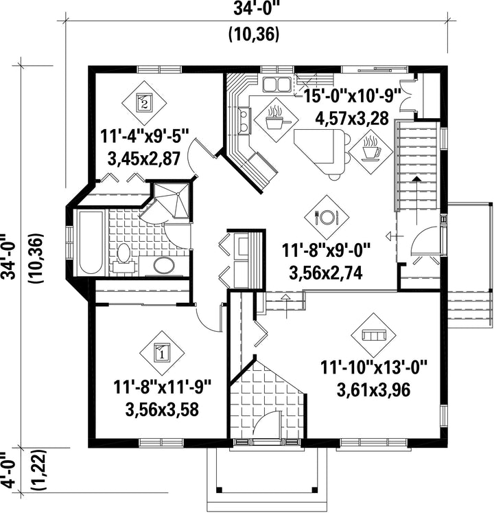
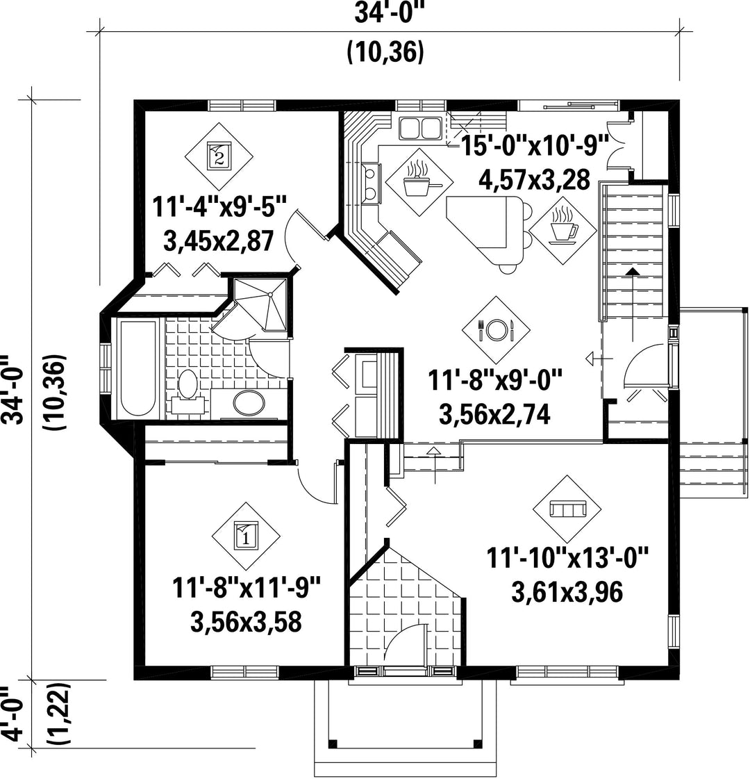
Measurements: Imperial| House style | Country |
Construction price
Approximate amount equivalent to what it would cost to have a general contractor (Montreal's South Shore region) build a similar home, excluding the lot and the infrastructure.
|
267586 $ |
|---|---|---|---|
| Front | 34 ft | Total living surface | 1105 ft² |
| Depth | 34 ft | Bathrooms | 1 |
| Height | 22 ft 10 in | Bedrooms | 2 |
| First floor area | 1105 ft² | Exterior walls | Aluminum + Brick |
| Kitchen | Snack + L shaped | ||
| Garages | 0 | ||
| First floor wall | 9 ft | ||
| Front/back roof slope | 7/12 | ||
| House style | Country |
|---|---|
|
Construction price
Approximate amount equivalent to what it would cost to have a general contractor (Montreal's South Shore region) build a similar home, excluding the lot and the infrastructure.
|
267586 $ |
| Front | 34 ft |
| Total living surface | 1105 ft² |
| Depth | 34 ft |
| Bathrooms | 1 |
| Height | 22 ft 10 in |
| Bedrooms | 2 |
| First floor area | 1105 ft² |
| Exterior walls | Aluminum + Brick |
| Kitchen | Snack + L shaped |
| Garages | 0 |
| First floor wall | 9 ft |
| Front/back roof slope | 7/12 |