Description
NULL
Additional info
Measurements: Imperial| House style | Modern |
Construction price
Approximate amount equivalent to what it would cost to have a general contractor (Montreal's South Shore region) build a similar home, excluding the lot and the infrastructure.
|
317591 $ |
|---|---|---|---|
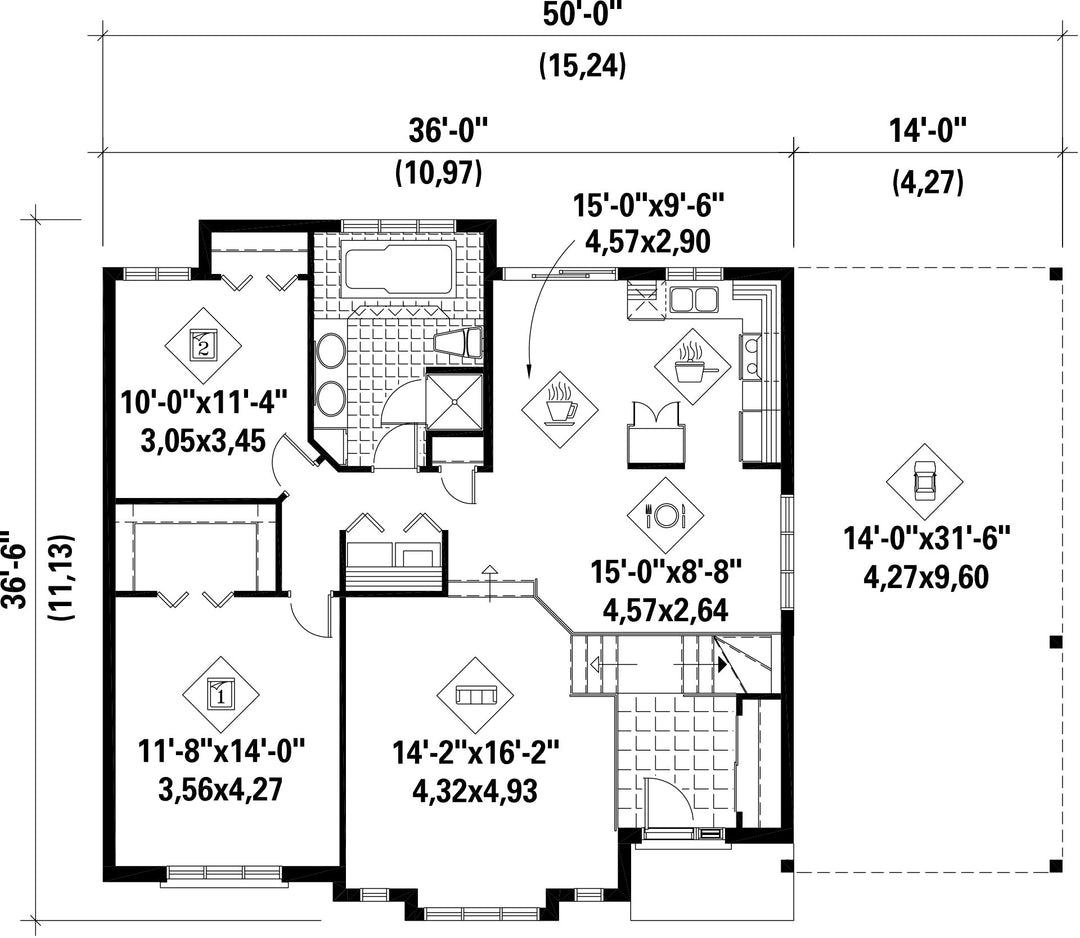
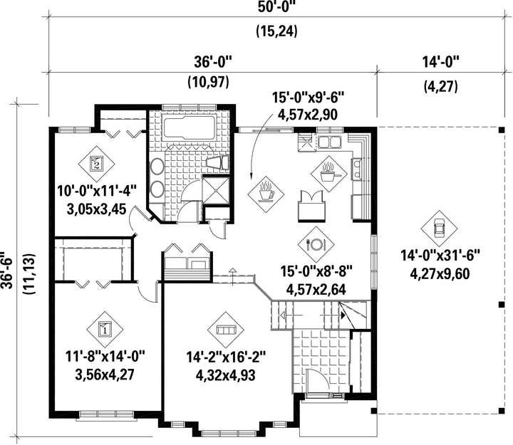
| Front | 36 ft | Total living surface | 1197 ft² |
| Depth | 36 ft 6 in | Bathrooms | 1 |
| Height | 21 ft 7 in | Bedrooms | 2 |
| Master bedroom | Wardrobe | Master bedroom - comments | --- |
| First floor area | 1197 ft² | Exterior walls | Aggregates + Stone |
| Kitchen | Dining area + L-shaped | ||
| Garage area | 441 ft² | Garages | 1 |
| Garage wall | 8 ft | First floor wall | 8 ft |
| Front/back roof slope | 6/12 | ||
| House style | Modern |
|---|---|
|
Construction price
Approximate amount equivalent to what it would cost to have a general contractor (Montreal's South Shore region) build a similar home, excluding the lot and the infrastructure.
|
317591 $ |
| Front | 36 ft |
| Total living surface | 1197 ft² |
| Depth | 36 ft 6 in |
| Bathrooms | 1 |
| Height | 21 ft 7 in |
| Bedrooms | 2 |
| Master bedroom | Wardrobe |
| Master bedroom - comments | --- |
| First floor area | 1197 ft² |
| Exterior walls | Aggregates + Stone |
| Kitchen | Dining area + L-shaped |
| Garage area | 441 ft² |
| Garages | 1 |
| Garage wall | 8 ft |
| First floor wall | 8 ft |
| Front/back roof slope | 6/12 |