Description
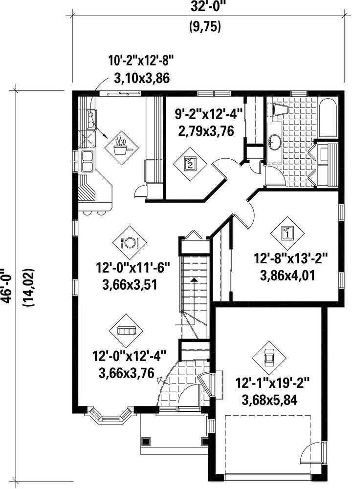
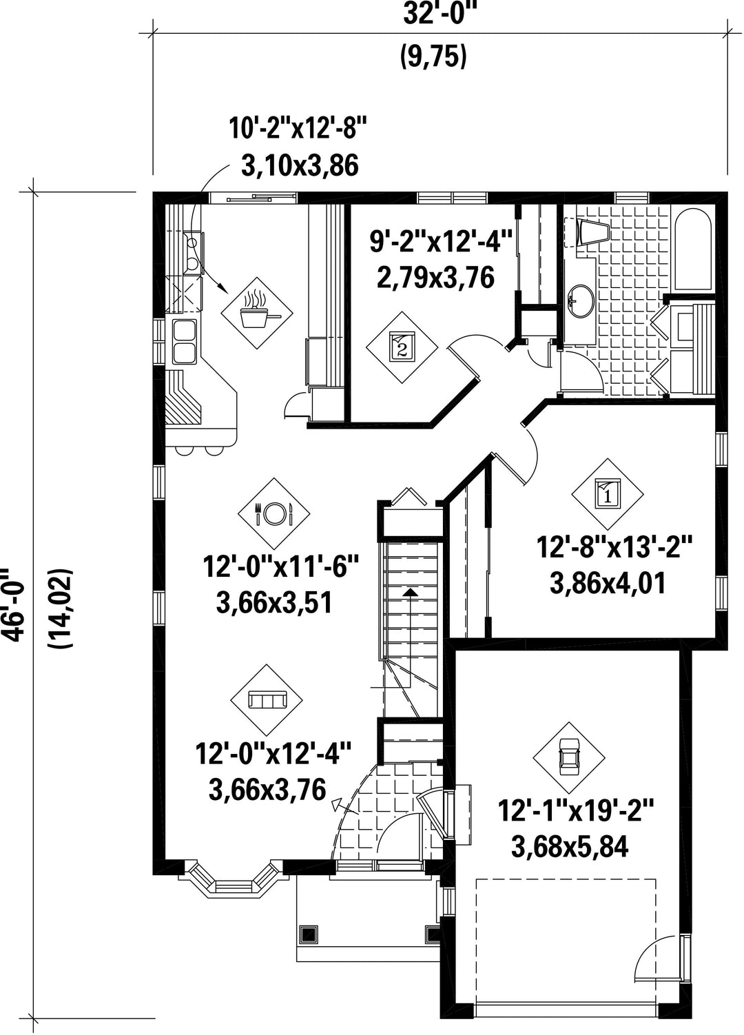
This lovely bungalow presents several interesting features such as a brick facade, a porch with decorative elements and a bow window. The house is 32 feet wide by 46 feet deep and provides 1,026 square feet of living space in addition to a 276 square foot one-car garage.
The home includes a lab type kitchen, an open living and dining room, two bedrooms and a bathroom.
The home includes a lab type kitchen, an open living and dining room, two bedrooms and a bathroom.
Additional info
Measurements: Imperial| House style | Rustic |
Construction price
Approximate amount equivalent to what it would cost to have a general contractor (Montreal's South Shore region) build a similar home, excluding the lot and the infrastructure.
|
266217 $ |
|---|---|---|---|
| Front | 32 ft | Total living surface | 1026 ft² |
| Depth | 46 ft | Bathrooms | 1 |
| Height | 20 ft 9 in | Bedrooms | 2 |
| Master bedroom | N / A | ||
| First floor area | 1026 ft² | Exterior walls | Aluminum + Brick |
| Kitchen | Lunch counter + Laboratory + Dining room | ||
| Garage area | 276 ft² | Garages | 1 |
| Garage wall | 8 ft | First floor wall | 8 ft |
| Front/back roof slope | 6/12 | ||
| House style | Rustic |
|---|---|
|
Construction price
Approximate amount equivalent to what it would cost to have a general contractor (Montreal's South Shore region) build a similar home, excluding the lot and the infrastructure.
|
266217 $ |
| Front | 32 ft |
| Total living surface | 1026 ft² |
| Depth | 46 ft |
| Bathrooms | 1 |
| Height | 20 ft 9 in |
| Bedrooms | 2 |
| Master bedroom | N / A |
| First floor area | 1026 ft² |
| Exterior walls | Aluminum + Brick |
| Kitchen | Lunch counter + Laboratory + Dining room |
| Garage area | 276 ft² |
| Garages | 1 |
| Garage wall | 8 ft |
| First floor wall | 8 ft |
| Front/back roof slope | 6/12 |