01371
01371
01371

01371


Jeux de plans - Sets of plans
Regular price$945.00
/

This site is protected by hCaptcha and the hCaptcha Privacy Policy and Terms of Service apply.

Description

NULL

Additional info

Measurements: Imperial

House style Modern Construction price 
Approximate amount equivalent to what it would cost to have a general contractor (Montreal's South Shore region) build a similar home, excluding the lot and the infrastructure.
311247 $
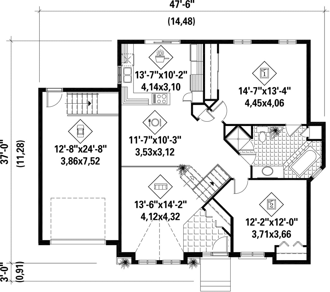
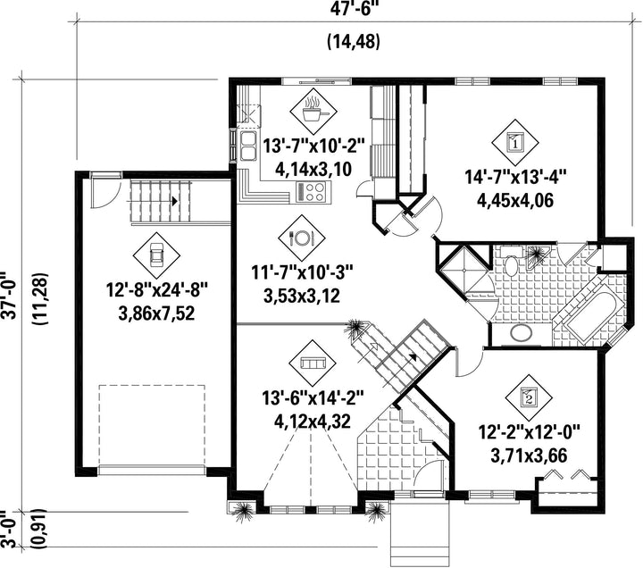
Front 47 ft 6 in Total living surface 1183 ft²
Depth 37 ftBathrooms 1
Height 21 ft 6 inBedrooms 2
Master bedroom - comments ---
First floor area 1183 ft² Exterior walls Aluminum + Wood + Brick
Kitchen U shaped + Dining room
Garage area 344 ft² Garages 1
Garage wall 8 ftFirst floor wall 8 ft
Front/back roof slope 6/12
Left/right roof slope 8/12
House style Modern
Construction price 
Approximate amount equivalent to what it would cost to have a general contractor (Montreal's South Shore region) build a similar home, excluding the lot and the infrastructure.
311247 $
Front 47 ft 6 in
Total living surface 1183 ft²
Depth 37 ft
Bathrooms 1
Height 21 ft 6 in
Bedrooms 2
Master bedroom - comments ---
First floor area 1183 ft²
Exterior walls Aluminum + Wood + Brick
Kitchen U shaped + Dining room
Garage area 344 ft²
Garages 1
Garage wall 8 ft
First floor wall 8 ft
Front/back roof slope 6/12
Left/right roof slope 8/12

Ces plans de maison pourraient également vous intéresser


Recently viewed