Description
NULL
Additional info
Measurements: Imperial| House style | Modern |
Construction price
Approximate amount equivalent to what it would cost to have a general contractor (Montreal's South Shore region) build a similar home, excluding the lot and the infrastructure.
|
259889 $ |
|---|---|---|---|
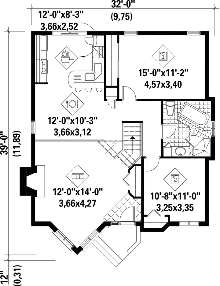
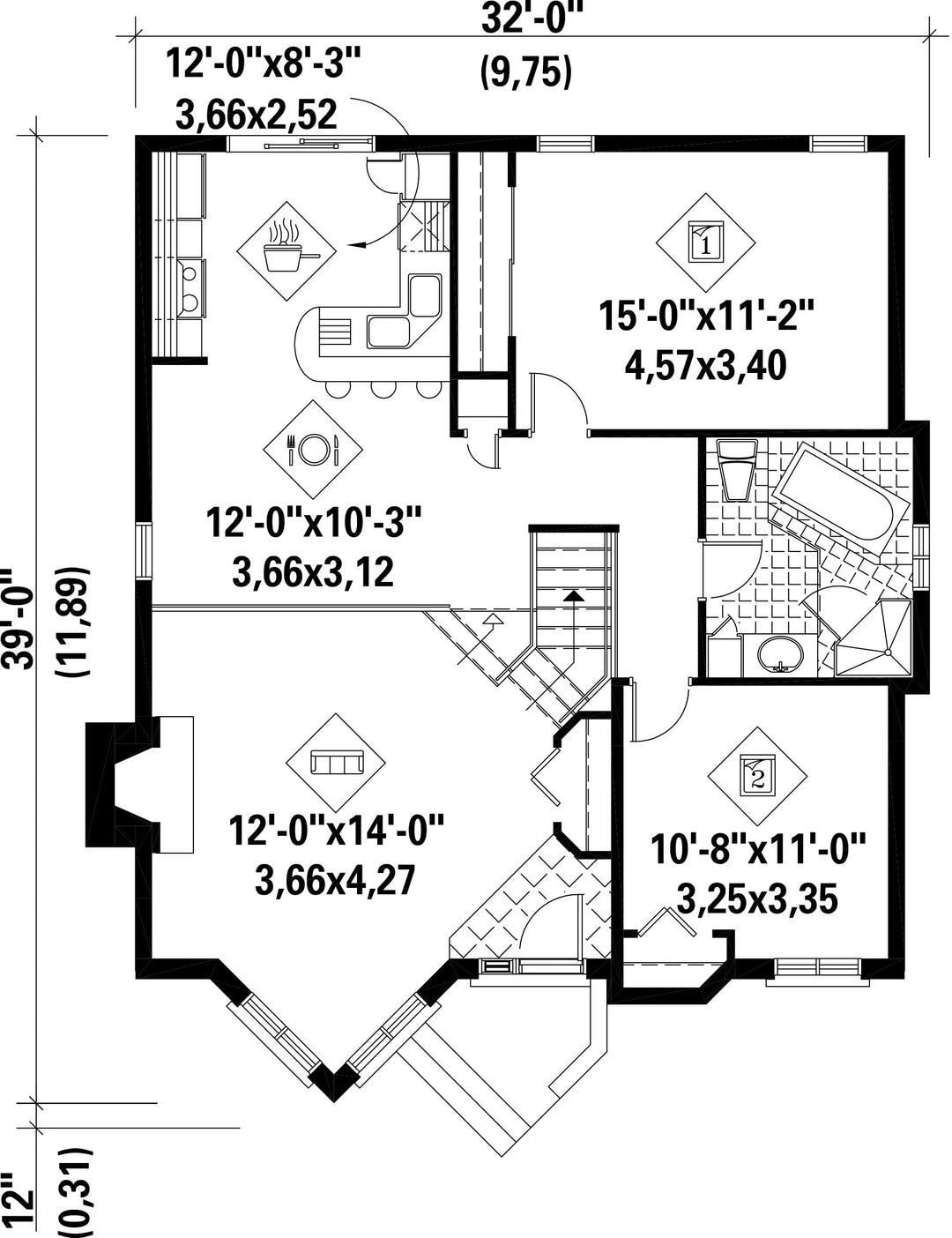
| Front | 32 ft | Total living surface | 1095 ft² |
| Depth | 39 ft | Bathrooms | 1 |
| Height | 21 ft 10 in | Bedrooms | 2 |
| Master bedroom | N / A | ||
| First floor area | 1095 ft² | Exterior walls | Aluminum + Wood + Brick |
| Kitchen | Breakfast bar + U-shaped layout + Dining room | ||
| Garages | 0 | ||
| First floor wall | 8 ft | ||
| Front/back roof slope | 6/12 | ||
| House style | Modern |
|---|---|
|
Construction price
Approximate amount equivalent to what it would cost to have a general contractor (Montreal's South Shore region) build a similar home, excluding the lot and the infrastructure.
|
259889 $ |
| Front | 32 ft |
| Total living surface | 1095 ft² |
| Depth | 39 ft |
| Bathrooms | 1 |
| Height | 21 ft 10 in |
| Bedrooms | 2 |
| Master bedroom | N / A |
| First floor area | 1095 ft² |
| Exterior walls | Aluminum + Wood + Brick |
| Kitchen | Breakfast bar + U-shaped layout + Dining room |
| Garages | 0 |
| First floor wall | 8 ft |
| Front/back roof slope | 6/12 |