01090
01090
01090

01090


Jeux de plans - Sets of plans
Regular price$1,134.00
/

This site is protected by hCaptcha and the hCaptcha Privacy Policy and Terms of Service apply.

Description

NULL

Additional info

Measurements: Imperial

House style European Construction price 
Approximate amount equivalent to what it would cost to have a general contractor (Montreal's South Shore region) build a similar home, excluding the lot and the infrastructure.
524920 $
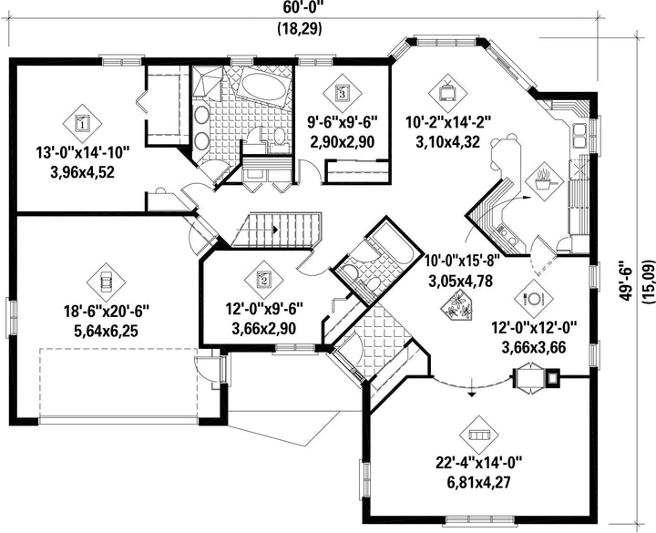
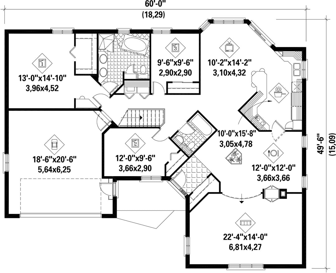
Front 60 ft Total living surface 1947 ft²
Depth 49 ft 6 inBathrooms 2
Height 20 ft 6 inBedrooms 3
Master bedroom Podium bath + Shower + Double sink + Walk in + Toilet
First floor area 1947 ft² Exterior walls Brick
Kitchen Snack + Laboratory
Garage area 440 ft² Garages 1
Garage wall 8 ftFirst floor wall 8 ft
Front/back roof slope 6/12
Left/right roof slope 6/12
House style European
Construction price 
Approximate amount equivalent to what it would cost to have a general contractor (Montreal's South Shore region) build a similar home, excluding the lot and the infrastructure.
524920 $
Front 60 ft
Total living surface 1947 ft²
Depth 49 ft 6 in
Bathrooms 2
Height 20 ft 6 in
Bedrooms 3
Master bedroom Podium bath + Shower + Double sink + Walk in + Toilet
First floor area 1947 ft²
Exterior walls Brick
Kitchen Snack + Laboratory
Garage area 440 ft²
Garages 1
Garage wall 8 ft
First floor wall 8 ft
Front/back roof slope 6/12
Left/right roof slope 6/12

Ces plans de maison pourraient également vous intéresser


Recently viewed