Description
NULL
Additional info
Measurements: Imperial| House style | Modern |
Construction price
Approximate amount equivalent to what it would cost to have a general contractor (Montreal's South Shore region) build a similar home, excluding the lot and the infrastructure.
|
258923 $ |
|---|---|---|---|
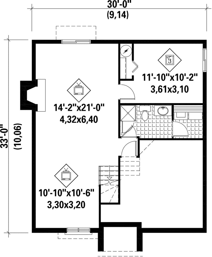
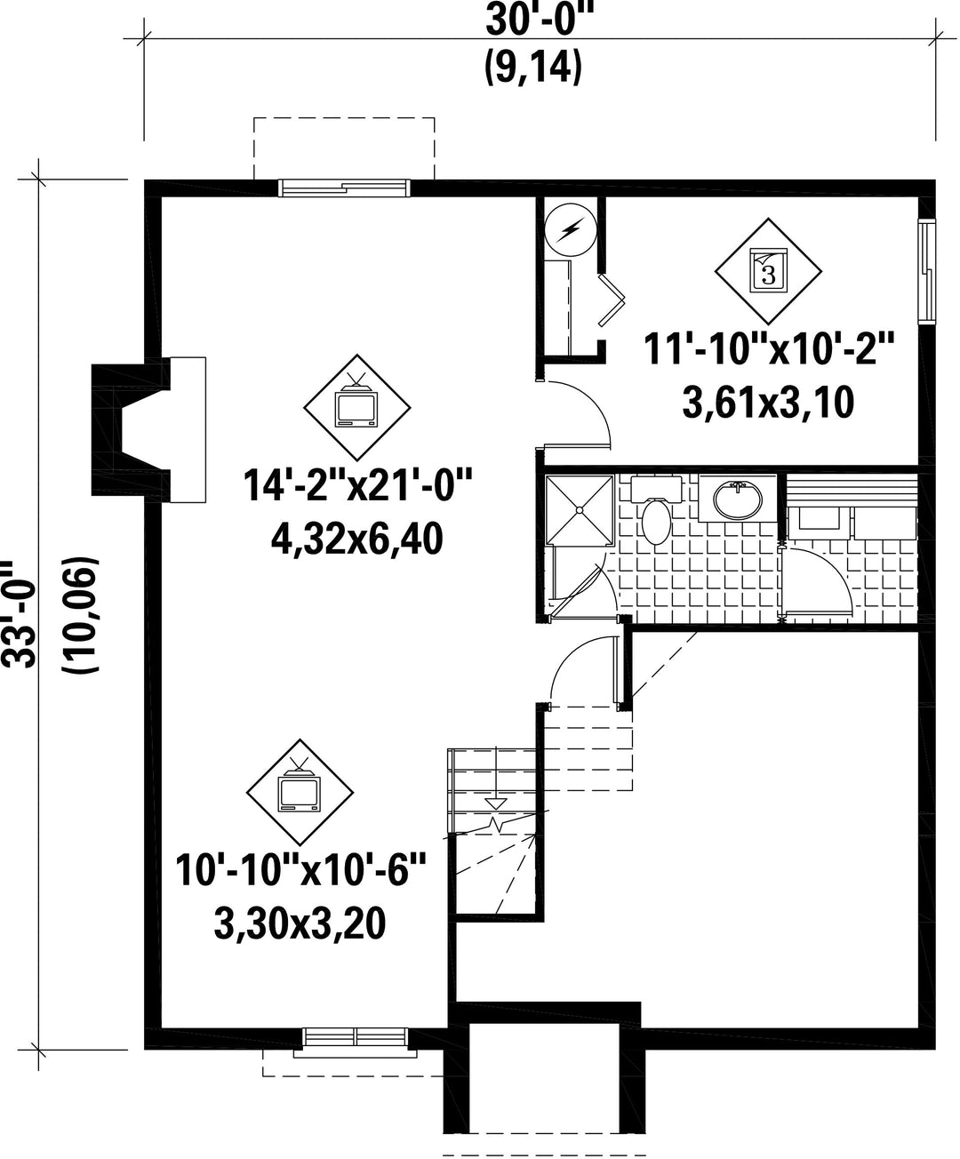
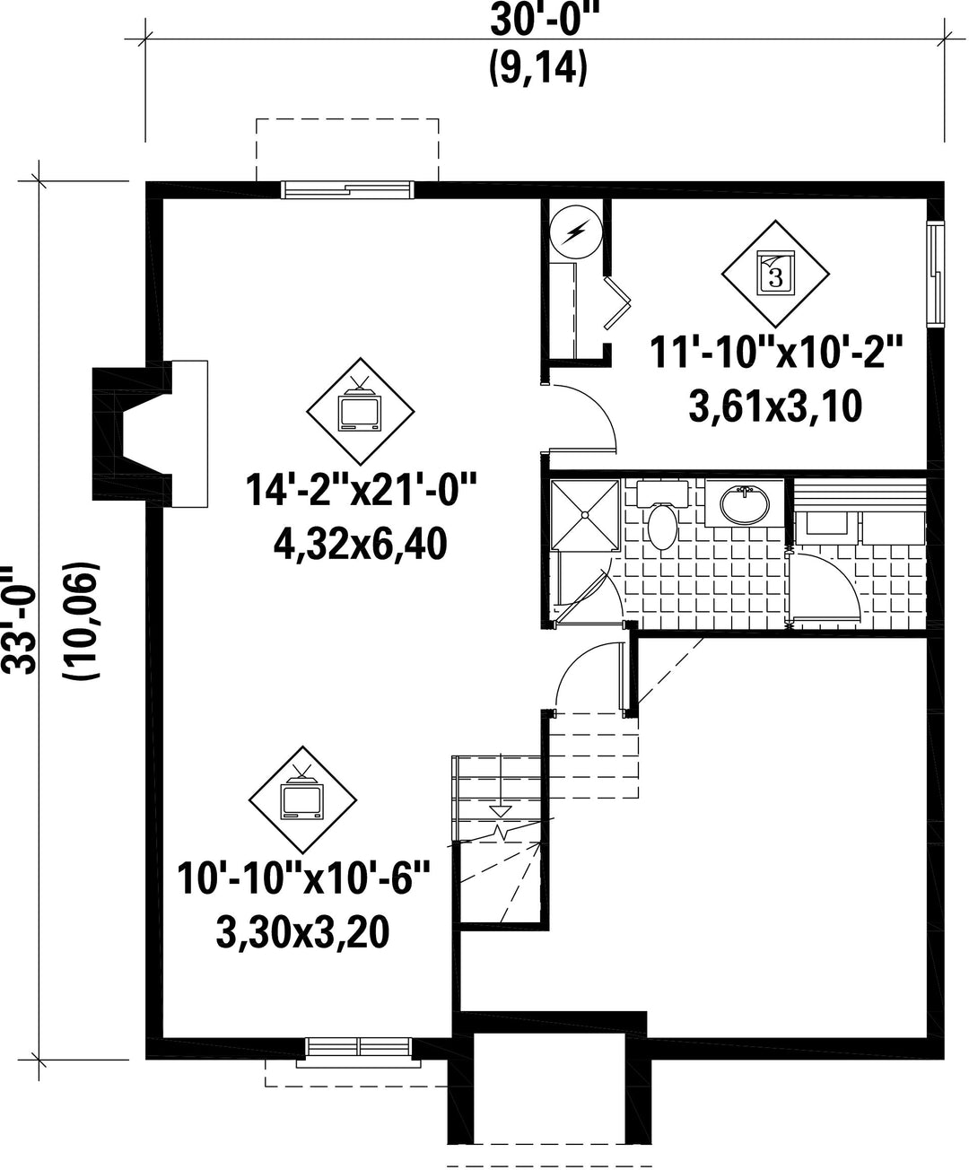
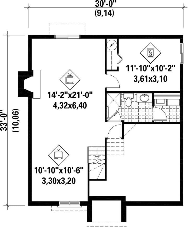
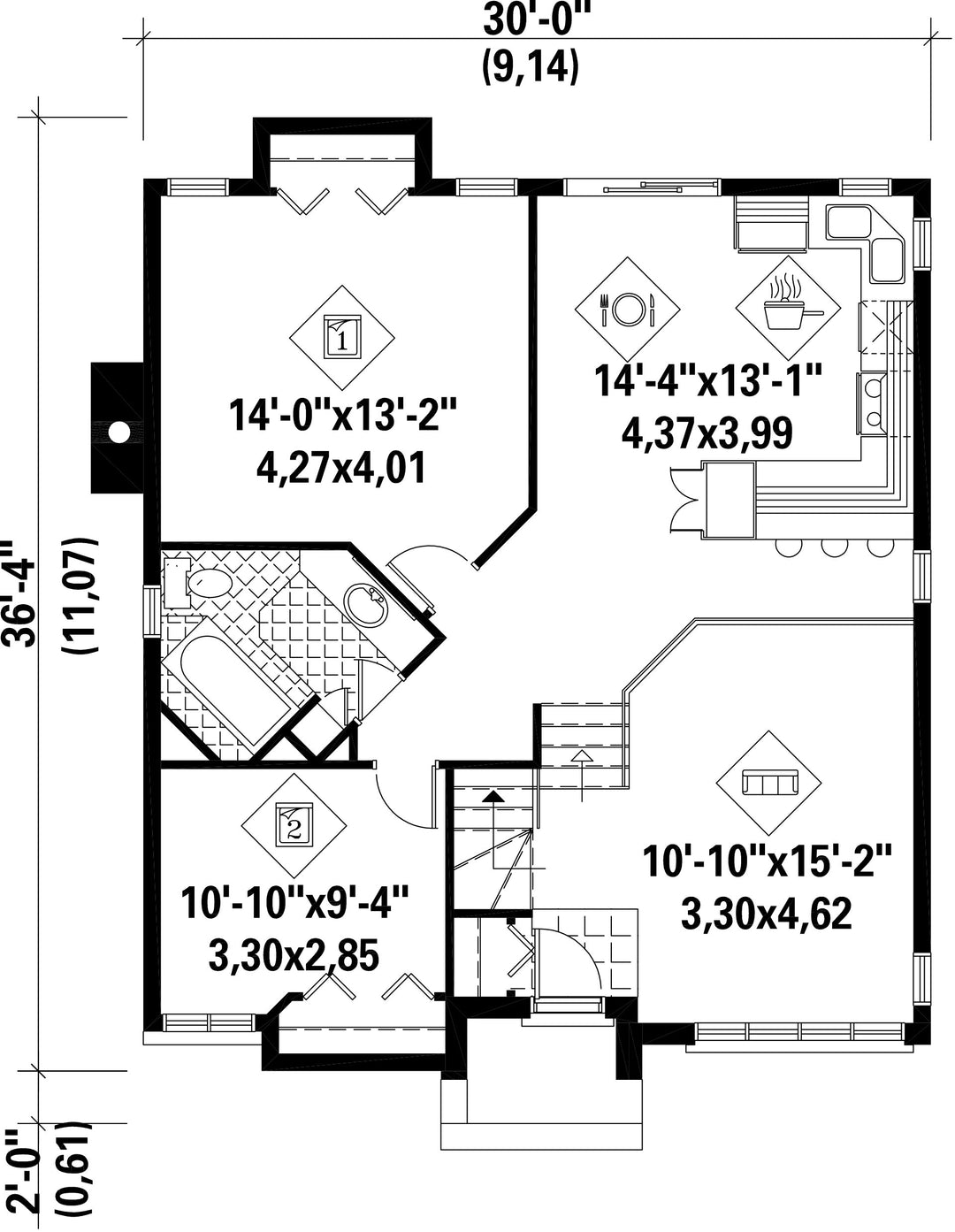
| Front | 30 ft | Total living surface | 1991 ft² |
| Depth | 36 ft 4 in | Bathrooms | 1 |
| Height | 23 ft 6 in | Bedrooms | 2 |
| Master bedroom | N / A | ||
| First floor area | 1006 ft² | Exterior walls | Aluminum + Brick |
| Kitchen | Breakfast bar + U-shaped layout + Dining room | ||
| Garages | 0 | ||
| First floor wall | 8 ft | ||
| Front/back roof slope | 6/12+8/12 | ||
| Basement area | 985 ft² |
| House style | Modern |
|---|---|
|
Construction price
Approximate amount equivalent to what it would cost to have a general contractor (Montreal's South Shore region) build a similar home, excluding the lot and the infrastructure.
|
258923 $ |
| Front | 30 ft |
| Total living surface | 1991 ft² |
| Depth | 36 ft 4 in |
| Bathrooms | 1 |
| Height | 23 ft 6 in |
| Bedrooms | 2 |
| Master bedroom | N / A |
| First floor area | 1006 ft² |
| Exterior walls | Aluminum + Brick |
| Kitchen | Breakfast bar + U-shaped layout + Dining room |
| Garages | 0 |
| First floor wall | 8 ft |
| Front/back roof slope | 6/12+8/12 |
| Basement area | 985 ft² |