00605E
00605E
00605E

00605E


This plan is offered with multiple variants. You can consult the variants by choosing a plan number in the menu below. The technical plan in the images as well as the information and dimensions table will update automatically.


Jeux de plans - Sets of plans
Regular price$945.00
/

This site is protected by hCaptcha and the hCaptcha Privacy Policy and Terms of Service apply.

Description

NULL

Additional info

Measurements: Imperial

House style Country Construction price 
Approximate amount equivalent to what it would cost to have a general contractor (Montreal's South Shore region) build a similar home, excluding the lot and the infrastructure.
258720 $
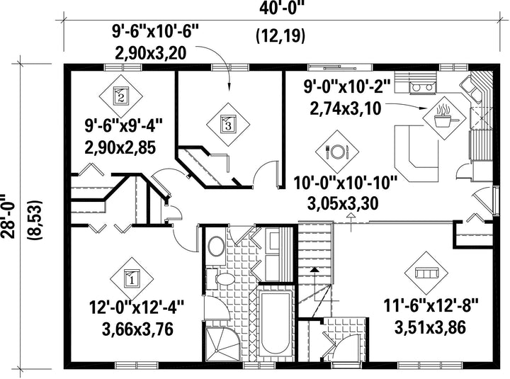
Front 40 ft Total living surface 1120 ft²
Depth 28 ftBathrooms 1
Height 17 ftBedrooms 3
Master bedroom Walk in
First floor area 1120 ft² Exterior walls Aluminum
Kitchen Snack + L shaped + Dining room + Island
Garages 0
First floor wall 8 ft
Front/back roof slope 5/12
House style Country
Construction price 
Approximate amount equivalent to what it would cost to have a general contractor (Montreal's South Shore region) build a similar home, excluding the lot and the infrastructure.
258720 $
Front 40 ft
Total living surface 1120 ft²
Depth 28 ft
Bathrooms 1
Height 17 ft
Bedrooms 3
Master bedroom Walk in
First floor area 1120 ft²
Exterior walls Aluminum
Kitchen Snack + L shaped + Dining room + Island
Garages 0
First floor wall 8 ft
Front/back roof slope 5/12

Ces plans de maison pourraient également vous intéresser


Recently viewed