00603G
00603G
00603G

00603G


This plan is offered with multiple variants. You can consult the variants by choosing a plan number in the menu below. The technical plan in the images as well as the information and dimensions table will update automatically.


Sets of plans
Regular price$945.00
/

This site is protected by hCaptcha and the hCaptcha Privacy Policy and Terms of Service apply.

Description

NULL

Additional info

Measurements: Imperial

House style Rustic Construction price 
Approximate amount equivalent to what it would cost to have a general contractor (Montreal's South Shore region) build a similar home, excluding the lot and the infrastructure.
252252 $
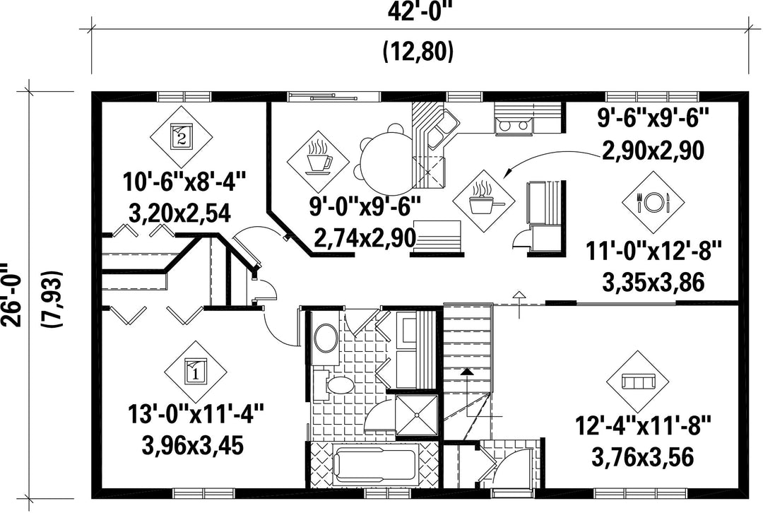
Front 42 ft Total living surface 1092 ft²
Depth 26 ftBathrooms 1
Height 17 ftBedrooms 2
Master bedroom N / A
First floor area 1092 ft² Exterior walls Aluminum
Kitchen Dining area + Breakfast bar + U-shape + Dining room
Garages 0
First floor wall 8 ft
Front/back roof slope 5/12
House style Rustic
Construction price 
Approximate amount equivalent to what it would cost to have a general contractor (Montreal's South Shore region) build a similar home, excluding the lot and the infrastructure.
252252 $
Front 42 ft
Total living surface 1092 ft²
Depth 26 ft
Bathrooms 1
Height 17 ft
Bedrooms 2
Master bedroom N / A
First floor area 1092 ft²
Exterior walls Aluminum
Kitchen Dining area + Breakfast bar + U-shape + Dining room
Garages 0
First floor wall 8 ft
Front/back roof slope 5/12

These house plans might also interest you


Recently viewed