00505F
00505F
00505F

00505F


This plan is offered with multiple variants. You can consult the variants by choosing a plan number in the menu below. The technical plan in the images as well as the information and dimensions table will update automatically.


Jeux de plans - Sets of plans
Regular price$945.00
/

This site is protected by hCaptcha and the hCaptcha Privacy Policy and Terms of Service apply.

Description

NULL

Additional info

Measurements: Imperial

House style Classical Construction price 
Approximate amount equivalent to what it would cost to have a general contractor (Montreal's South Shore region) build a similar home, excluding the lot and the infrastructure.
283780 $
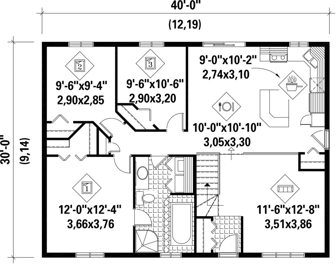
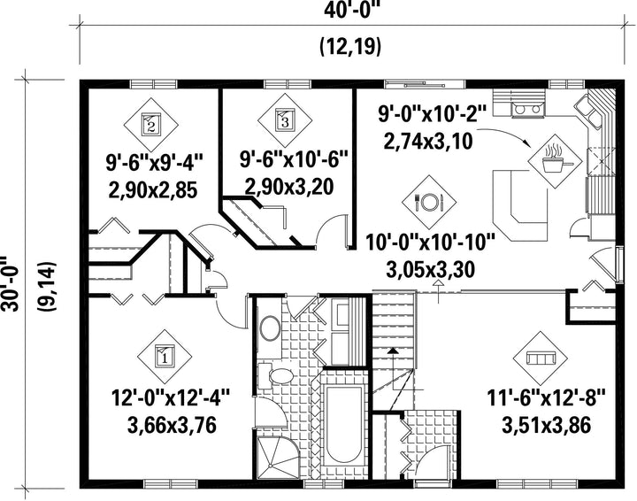
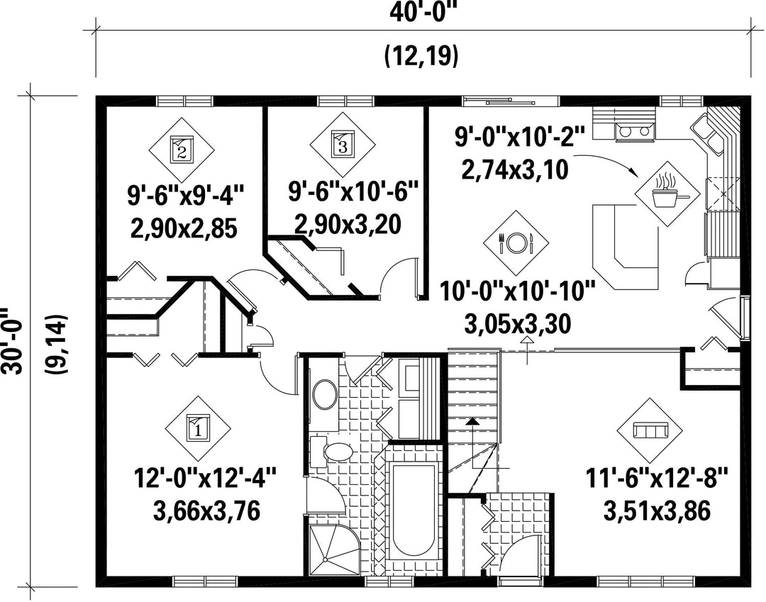
Front 40 ft Total living surface 1200 ft²
Depth 30 ftBathrooms 1
Height 19 ft 3 inBedrooms 3
Master bedroom Walk in
First floor area 1200 ft² Exterior walls Aluminum + Brick
Kitchen Snack + L shaped + Dining room + Island
Garages 0
First floor wall 8 ft
Front/back roof slope 7/12
Left/right roof slope 12/12
House style Classical
Construction price 
Approximate amount equivalent to what it would cost to have a general contractor (Montreal's South Shore region) build a similar home, excluding the lot and the infrastructure.
283780 $
Front 40 ft
Total living surface 1200 ft²
Depth 30 ft
Bathrooms 1
Height 19 ft 3 in
Bedrooms 3
Master bedroom Walk in
First floor area 1200 ft²
Exterior walls Aluminum + Brick
Kitchen Snack + L shaped + Dining room + Island
Garages 0
First floor wall 8 ft
Front/back roof slope 7/12
Left/right roof slope 12/12

Ces plans de maison pourraient également vous intéresser


Recently viewed