00405H
00405H
00405H

00405H


This plan is offered with multiple variants. You can consult the variants by choosing a plan number in the menu below. The technical plan in the images as well as the information and dimensions table will update automatically.


Sets of plans
Regular price$945.00
/

This site is protected by hCaptcha and the hCaptcha Privacy Policy and Terms of Service apply.

Description

NULL

Additional info

Measurements: Imperial

House style Rustic Construction price 
Approximate amount equivalent to what it would cost to have a general contractor (Montreal's South Shore region) build a similar home, excluding the lot and the infrastructure.
281159 $
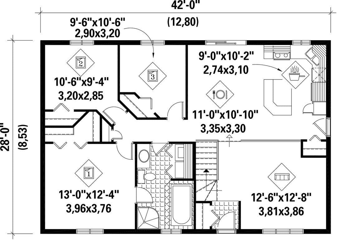
Front 42 ft Total living surface 1176 ft²
Depth 28 ftBathrooms 1
Height 19 ft 3 inBedrooms 3
Master bedroom Hearth
First floor area 1176 ft² Exterior walls Aluminum
Kitchen Breakfast bar + L-shaped layout + Dining room + Island
Garages 0
First floor wall 8 ft
Front/back roof slope 7/12
House style Rustic
Construction price 
Approximate amount equivalent to what it would cost to have a general contractor (Montreal's South Shore region) build a similar home, excluding the lot and the infrastructure.
281159 $
Front 42 ft
Total living surface 1176 ft²
Depth 28 ft
Bathrooms 1
Height 19 ft 3 in
Bedrooms 3
Master bedroom Hearth
First floor area 1176 ft²
Exterior walls Aluminum
Kitchen Breakfast bar + L-shaped layout + Dining room + Island
Garages 0
First floor wall 8 ft
Front/back roof slope 7/12

These house plans might also interest you


Recently viewed