G-20A
G-20A
G-20A
G-20A

G-20A


Fichier - File
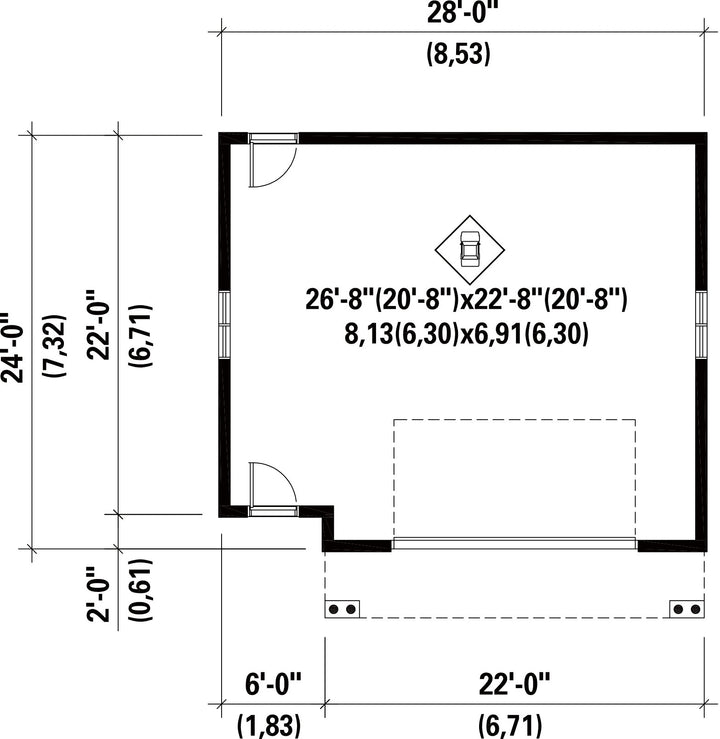
Dimensions
Liste des matériaux - List of materials
Regular price$224.95
/

This site is protected by hCaptcha and the hCaptcha Privacy Policy and Terms of Service apply.

Description

With its decorative details, its fish scale facing and columns, this magnificent two-car garage will truly enhance your property. In addition to parking your cars, you’ll have enough room to set up a workshop. It has a window on the left side, and two windows on the right side, one of which is false. This garage is most practical with two service doors, one in the front and the other in the back, that allow the owners to go in and out quickly.

Additional info

Measurements: Imperial

Construction price 
Approximate amount equivalent to what it would cost to have a general contractor (Montreal's South Shore region) build a similar home, excluding the lot and the infrastructure.
60028 $
Front 28 ft
Depth 24 ftBathrooms 0
Height 20 ft 3 inBedrooms 0
Exterior walls Aluminum + Brick + Fish scale covering
Garage area 660 ft² Garages 2
Garage wall 8 ftFirst floor wall 8 ft
Front/back roof slope 10/12
Left/right roof slope 10/12
Construction price 
Approximate amount equivalent to what it would cost to have a general contractor (Montreal's South Shore region) build a similar home, excluding the lot and the infrastructure.
60028 $
Front 28 ft
Depth 24 ft
Bathrooms 0
Height 20 ft 3 in
Bedrooms 0
Exterior walls Aluminum + Brick + Fish scale covering
Garage area 660 ft²
Garages 2
Garage wall 8 ft
First floor wall 8 ft
Front/back roof slope 10/12
Left/right roof slope 10/12

Ces plans de maison pourraient également vous intéresser


Recently viewed