Description
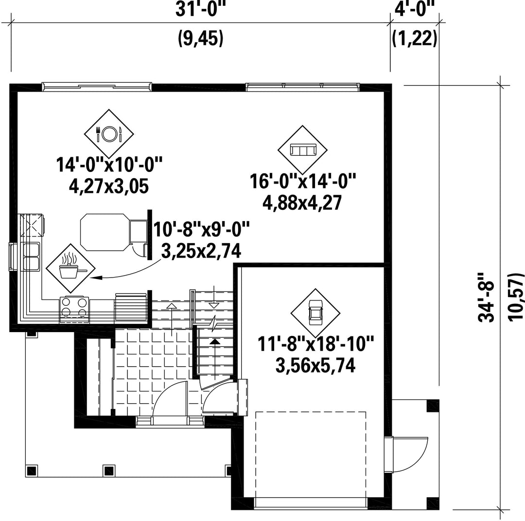
The architectural details and the brick and aluminum facing truly enhance the appearance of this beautiful two-storey house. The home is 31 feet wide by 34 feet 8 inches deep, and provides 1,566 square feet of living space.
The ground floor covers 662 square feet and includes a kitchen with a large working surface, a dining room, a living room and a 252 square foot one-car garage.
The upper floor has a 904 square foot living area consisting of two bedrooms, a large bathroom, a powder room with a laundry section, as well as a den with an outside terrace located above the garage.
The ground floor covers 662 square feet and includes a kitchen with a large working surface, a dining room, a living room and a 252 square foot one-car garage.
The upper floor has a 904 square foot living area consisting of two bedrooms, a large bathroom, a powder room with a laundry section, as well as a den with an outside terrace located above the garage.
Additional info
Measurements: Imperial| House style | Country |
Construction price
Approximate amount equivalent to what it would cost to have a general contractor (Montreal's South Shore region) build a similar home, excluding the lot and the infrastructure.
|
307162 $ |
|---|---|---|---|
| Front | 31 ft | Total living surface | 1566 ft² |
| Depth | 34 ft 8 in | Bathrooms | 1 |
| Height | 34 ft | Bedrooms | 2 |
| Master bedroom | Walk in | ||
| First floor area | 662 ft² | Exterior walls | Aluminum + Brick |
| Second floor area | 904 ft² | ||
| Garage area | 252 ft² | Garages | 1 |
| Garage wall | 8 ft | First floor wall | 9 ft |
| Second floor wall | 8 ft | Front/back roof slope | 10/12 |
| Left/right roof slope | 10/12 |
| House style | Country |
|---|---|
|
Construction price
Approximate amount equivalent to what it would cost to have a general contractor (Montreal's South Shore region) build a similar home, excluding the lot and the infrastructure.
|
307162 $ |
| Front | 31 ft |
| Total living surface | 1566 ft² |
| Depth | 34 ft 8 in |
| Bathrooms | 1 |
| Height | 34 ft |
| Bedrooms | 2 |
| Master bedroom | Walk in |
| First floor area | 662 ft² |
| Exterior walls | Aluminum + Brick |
| Second floor area | 904 ft² |
| Garage area | 252 ft² |
| Garages | 1 |
| Garage wall | 8 ft |
| First floor wall | 9 ft |
| Second floor wall | 8 ft |
| Front/back roof slope | 10/12 |
| Left/right roof slope | 10/12 |