Description
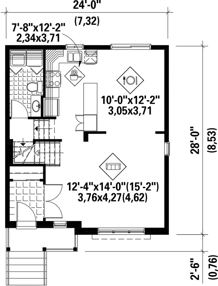
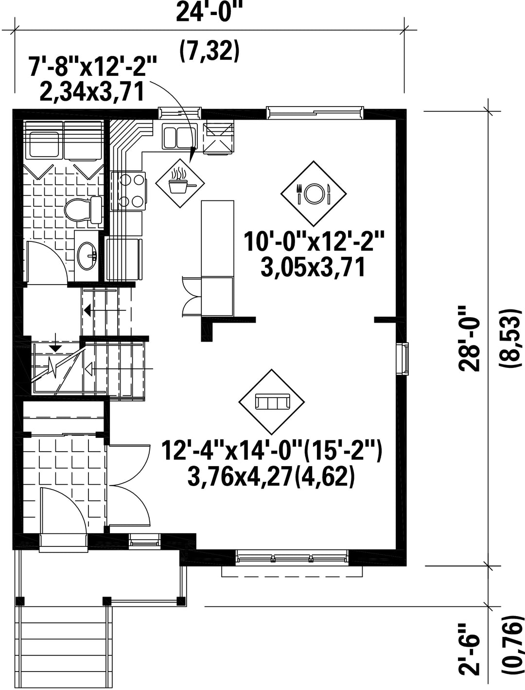
The front entrance porch with decorative posts truly enhances the appearance of this lovely two-storey brick and aluminum house. The home provides 1,330 square feet of living space, and is 24 feet wide by 28 feet deep.
The ground floor has a 662 square foot living area that includes a closed entrance hall with a large closet, a powder room, a living room, a kitchen with a large work surface and an open dining room.
The upper floor covers 668 square feet and consists of a large bathroom and three bedrooms including a master bedroom with a large walk-in closet.
The ground floor has a 662 square foot living area that includes a closed entrance hall with a large closet, a powder room, a living room, a kitchen with a large work surface and an open dining room.
The upper floor covers 668 square feet and consists of a large bathroom and three bedrooms including a master bedroom with a large walk-in closet.
Additional info
Measurements: Imperial| House style | European |
Construction price
Approximate amount equivalent to what it would cost to have a general contractor (Montreal's South Shore region) build a similar home, excluding the lot and the infrastructure.
|
245346 $ |
|---|---|---|---|
| Front | 24 ft | Total living surface | 1330 ft² |
| Depth | 28 ft | Bathrooms | 1 |
| Height | 29 ft 6 in | Bedrooms | 3 |
| Master bedroom - comments | --- | ||
| First floor area | 662 ft² | Exterior walls | Aluminum + Brick |
| Second floor area | 668 ft² | ||
| Garages | 0 | ||
| First floor wall | 8 ft | ||
| Second floor wall | 8 ft | Front/back roof slope | 7/12 |
| Left/right roof slope | 12/12 |
| House style | European |
|---|---|
|
Construction price
Approximate amount equivalent to what it would cost to have a general contractor (Montreal's South Shore region) build a similar home, excluding the lot and the infrastructure.
|
245346 $ |
| Front | 24 ft |
| Total living surface | 1330 ft² |
| Depth | 28 ft |
| Bathrooms | 1 |
| Height | 29 ft 6 in |
| Bedrooms | 3 |
| Master bedroom - comments | --- |
| First floor area | 662 ft² |
| Exterior walls | Aluminum + Brick |
| Second floor area | 668 ft² |
| Garages | 0 |
| First floor wall | 8 ft |
| Second floor wall | 8 ft |
| Front/back roof slope | 7/12 |
| Left/right roof slope | 12/12 |