Description
The front entrance porch with decorative columns truly enhances the appearance of this attractive two-storey brick and aluminum house. The home provides 1,770 square feet of living space, and is 37 feet 6 inches wide by 38 feet deep.
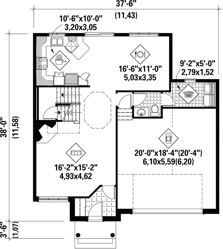
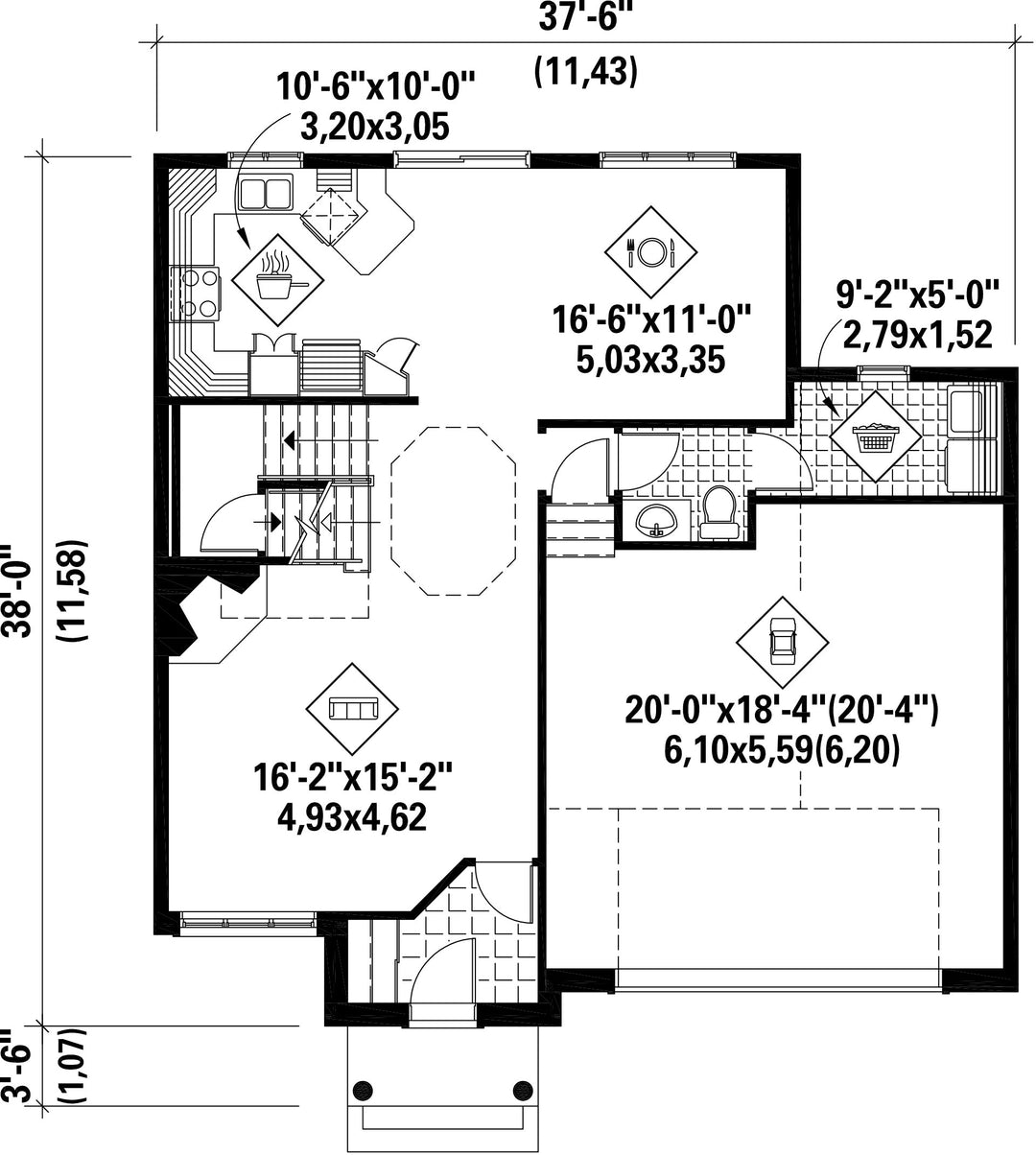
The ground floor has a 853 square foot living area that includes a closed entrance hall, a powder room, a laundry room, a living room with a fireplace, a large open kitchen, a dining room and a 425 square foot two-car garage.
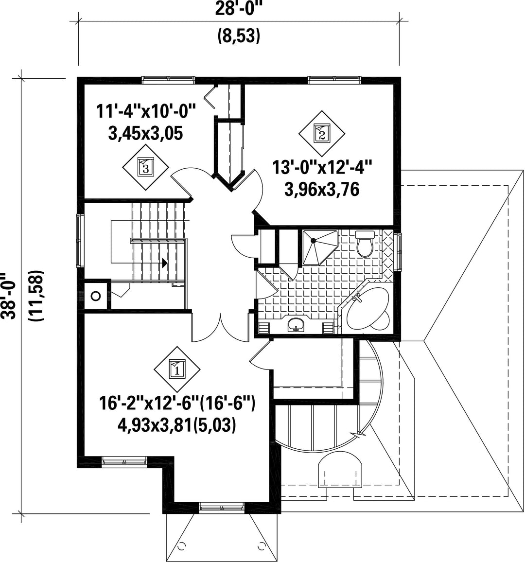
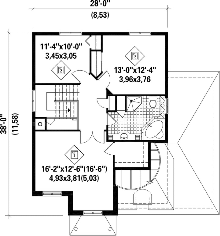
The upper floor covers 917 square feet and consists of a bathroom with a corner bathtub and three bedrooms, including a master bedroom with French doors and a large walk-in closet.
The ground floor has a 853 square foot living area that includes a closed entrance hall, a powder room, a laundry room, a living room with a fireplace, a large open kitchen, a dining room and a 425 square foot two-car garage.
The upper floor covers 917 square feet and consists of a bathroom with a corner bathtub and three bedrooms, including a master bedroom with French doors and a large walk-in closet.
Additional info
Measurements: Imperial| House style | European |
Construction price
Approximate amount equivalent to what it would cost to have a general contractor (Montreal's South Shore region) build a similar home, excluding the lot and the infrastructure.
|
365264 $ |
|---|---|---|---|
| Front | 37 ft 6 in | Total living surface | 1770 ft² |
| Depth | 38 ft | Bathrooms | 1 |
| Height | 33 ft 3 in | Bedrooms | 3 |
| Master bedroom | Walk in + Double doors | ||
| First floor area | 853 ft² | Exterior walls | Aluminum + Brick |
| Second floor area | 917 ft² | Kitchen | U shaped |
| Garage area | 425 ft² | Garages | 2 |
| Garage wall | 8 ft | First floor wall | 8 ft |
| Second floor wall | 8 ft | Front/back roof slope | 12/12+7/12 |
| Left/right roof slope | 12/12 |
| House style | European |
|---|---|
|
Construction price
Approximate amount equivalent to what it would cost to have a general contractor (Montreal's South Shore region) build a similar home, excluding the lot and the infrastructure.
|
365264 $ |
| Front | 37 ft 6 in |
| Total living surface | 1770 ft² |
| Depth | 38 ft |
| Bathrooms | 1 |
| Height | 33 ft 3 in |
| Bedrooms | 3 |
| Master bedroom | Walk in + Double doors |
| First floor area | 853 ft² |
| Exterior walls | Aluminum + Brick |
| Second floor area | 917 ft² |
| Kitchen | U shaped |
| Garage area | 425 ft² |
| Garages | 2 |
| Garage wall | 8 ft |
| First floor wall | 8 ft |
| Second floor wall | 8 ft |
| Front/back roof slope | 12/12+7/12 |
| Left/right roof slope | 12/12 |