Description
Enclosed foyer
Additional info
Measurements: Imperial| House style | European |
Construction price
Approximate amount equivalent to what it would cost to have a general contractor (Montreal's South Shore region) build a similar home, excluding the lot and the infrastructure.
|
395402 $ |
|---|---|---|---|
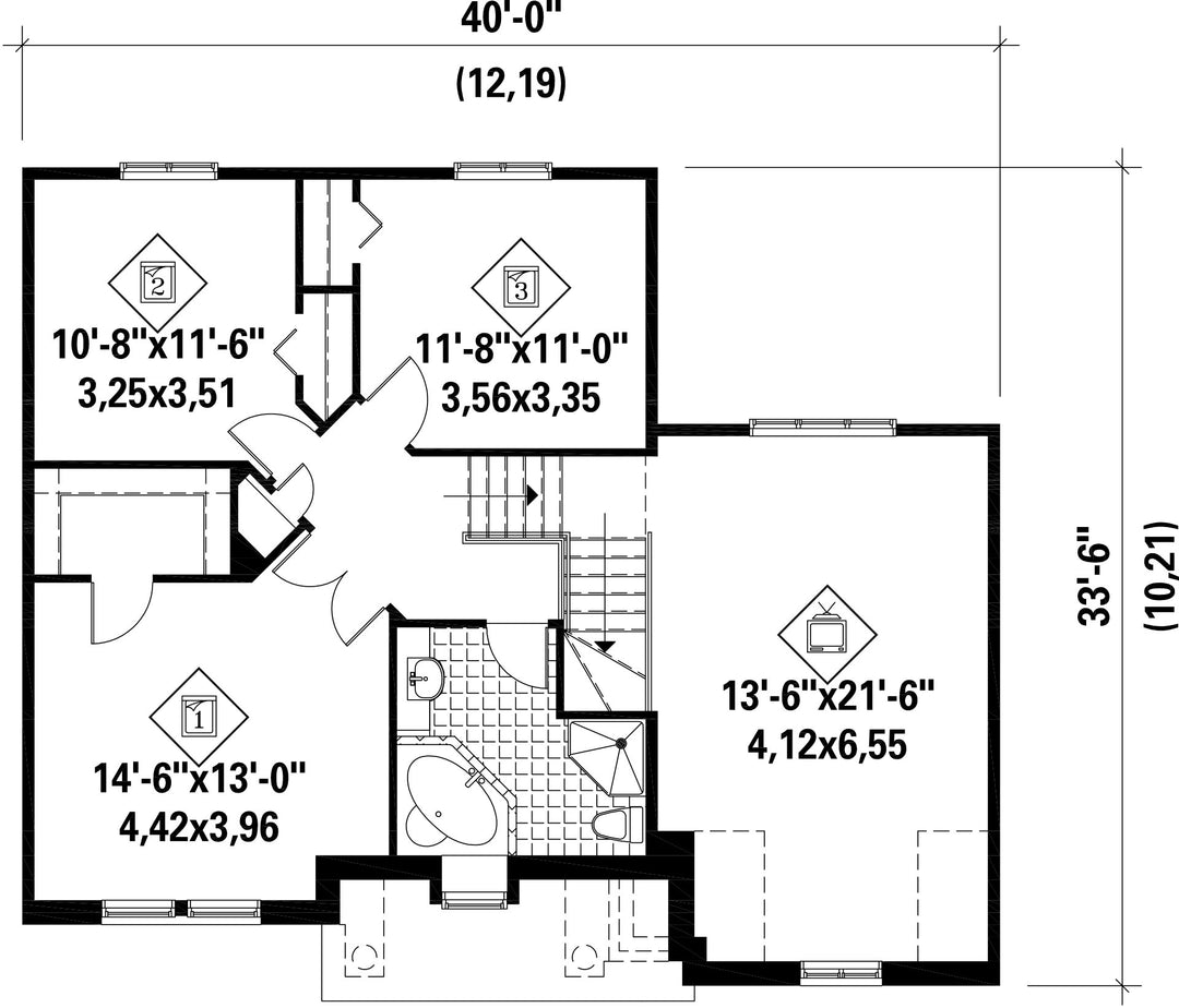
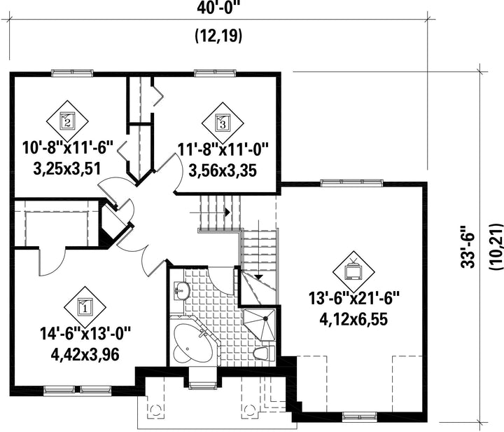
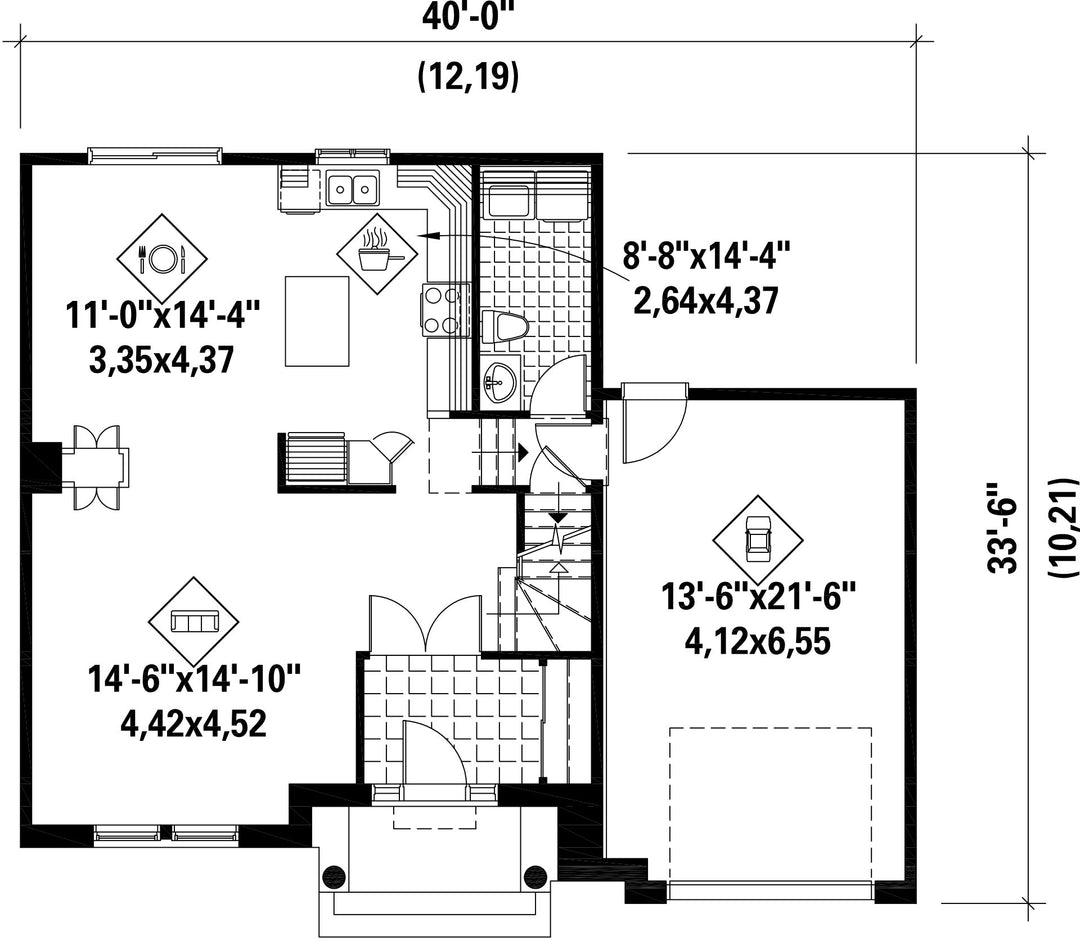
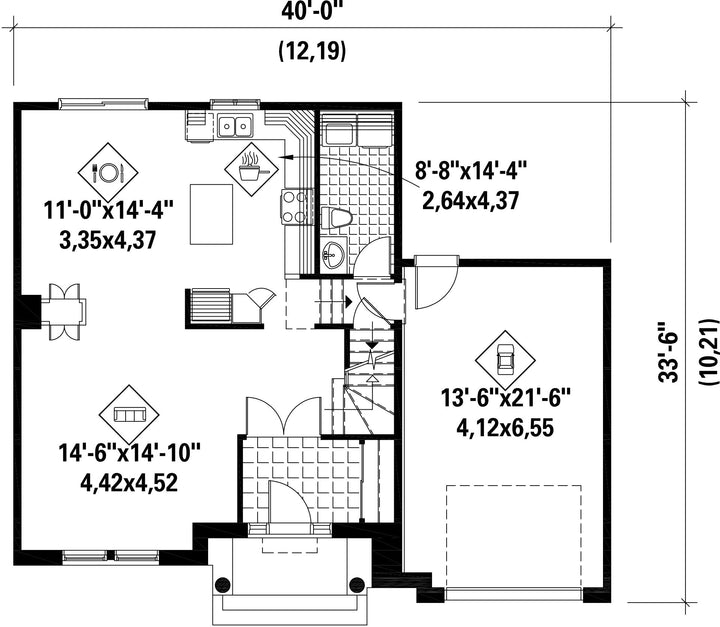
| Front | 40 ft | Total living surface | 1889 ft² |
| Depth | 33 ft 6 in | Bathrooms | 1 |
| Height | 37 ft 2 in | Bedrooms | 3 |
| Master bedroom | Walk in + Double doors | Master bedroom - comments | WALK-IN CLOSET IN THE MASTER BEDROOM |
| First floor area | 783 ft² | Exterior walls | Stucco + Stone |
| Second floor area | 1106 ft² | Kitchen | L shaped + Dining room + Island |
| Garage area | 328 ft² | Garages | 1 |
| Garage wall | 8 ft | First floor wall | 9 ft |
| Second floor wall | 8 ft | Front/back roof slope | 12/12 |
| Left/right roof slope | 14/12 |
| House style | European |
|---|---|
|
Construction price
Approximate amount equivalent to what it would cost to have a general contractor (Montreal's South Shore region) build a similar home, excluding the lot and the infrastructure.
|
395402 $ |
| Front | 40 ft |
| Total living surface | 1889 ft² |
| Depth | 33 ft 6 in |
| Bathrooms | 1 |
| Height | 37 ft 2 in |
| Bedrooms | 3 |
| Master bedroom | Walk in + Double doors |
| Master bedroom - comments | WALK-IN CLOSET IN THE MASTER BEDROOM |
| First floor area | 783 ft² |
| Exterior walls | Stucco + Stone |
| Second floor area | 1106 ft² |
| Kitchen | L shaped + Dining room + Island |
| Garage area | 328 ft² |
| Garages | 1 |
| Garage wall | 8 ft |
| First floor wall | 9 ft |
| Second floor wall | 8 ft |
| Front/back roof slope | 12/12 |
| Left/right roof slope | 14/12 |