Description
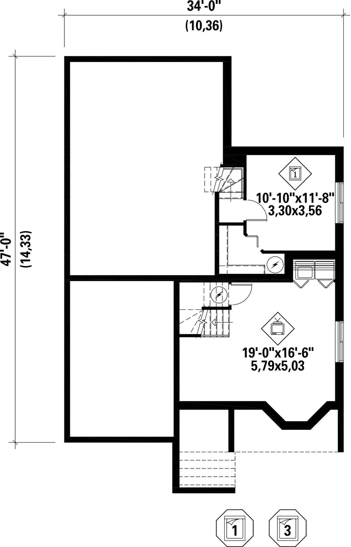
The architectural details and the turret truly enhance this elegant multigenerational split-level home. The house is 34 feet wide by 47 feet deep and includes two private apartments. The total living area is 2,340 square feet. The basement has a 571 square foot living area, the ground floor covers 652 square feet, and the second floor has 652 square feet of living space. The 266 square foot one-car garage has an access to the main house.
A side door leads to the seniors’ apartment that consists of a bedroom and a large walk-in closet in the basement. Their section of the ground floor includes a living room, a kitchen, a dining room, a bathroom and a laundry room.
The other family’s apartment includes a den in the basement, and an open living room and dining room as well as a kitchen on the ground floor. The second floor includes three bedrooms and a bathroom.
A side door leads to the seniors’ apartment that consists of a bedroom and a large walk-in closet in the basement. Their section of the ground floor includes a living room, a kitchen, a dining room, a bathroom and a laundry room.
The other family’s apartment includes a den in the basement, and an open living room and dining room as well as a kitchen on the ground floor. The second floor includes three bedrooms and a bathroom.
Additional info
Measurements: Imperial| House style | Country |
Construction price
Approximate amount equivalent to what it would cost to have a general contractor (Montreal's South Shore region) build a similar home, excluding the lot and the infrastructure.
|
396458 $ |
|---|---|---|---|
| Front | 34 ft | Total living surface | 2340 ft² |
| Depth | 47 ft | Bathrooms | 2 |
| Height | 30 ft | Bedrooms | 4 |
| Master bedroom - comments | --- | ||
| First floor area | 1117 ft² | Exterior walls | Stucco + Aluminum |
| Second floor area | 652 ft² | ||
| Garage area | 266 ft² | Garages | 1 |
| Garage wall | 8 ft | First floor wall | 8 ft |
| Second floor wall | 8 ft | Front/back roof slope | 8/12 |
| Left/right roof slope | 12/12 | Basement area | 571 ft² |
| House style | Country |
|---|---|
|
Construction price
Approximate amount equivalent to what it would cost to have a general contractor (Montreal's South Shore region) build a similar home, excluding the lot and the infrastructure.
|
396458 $ |
| Front | 34 ft |
| Total living surface | 2340 ft² |
| Depth | 47 ft |
| Bathrooms | 2 |
| Height | 30 ft |
| Bedrooms | 4 |
| Master bedroom - comments | --- |
| First floor area | 1117 ft² |
| Exterior walls | Stucco + Aluminum |
| Second floor area | 652 ft² |
| Garage area | 266 ft² |
| Garages | 1 |
| Garage wall | 8 ft |
| First floor wall | 8 ft |
| Second floor wall | 8 ft |
| Front/back roof slope | 8/12 |
| Left/right roof slope | 12/12 |
| Basement area | 571 ft² |