91910
91910
91910

91910


Jeux de plans - Sets of plans
Regular price$864.00
/

This site is protected by hCaptcha and the hCaptcha Privacy Policy and Terms of Service apply.

Description

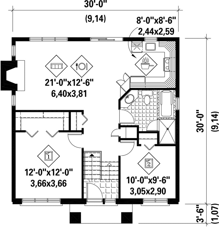
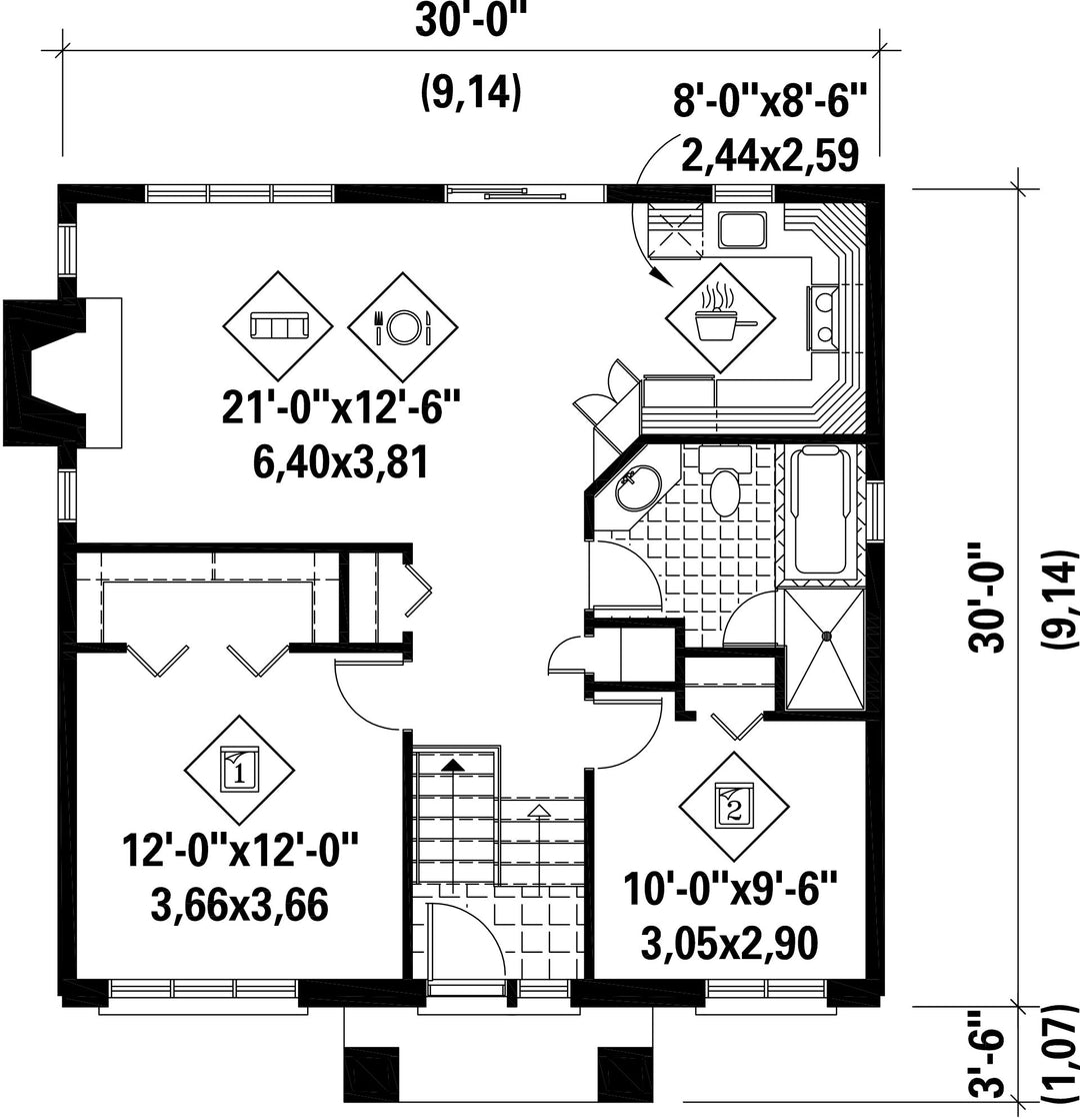
Thanks to an entrance surrounded by tall stone columns and numerous windows, this elegant bungalow has a resolutely modern look. The house is 30 feet wide by 30 feet deep and provides 900 square feet of living space.
The home consists of a functional kitchen, an open dining room and living room, a bathroom and two bedrooms, including a master bedroom with a large walk-in closet.

Additional info

Measurements: Imperial

House style Urban Construction price 
Approximate amount equivalent to what it would cost to have a general contractor (Montreal's South Shore region) build a similar home, excluding the lot and the infrastructure.
227310 $
Front 30 ft Total living surface 900 ft²
Depth 30 ftBathrooms 1
Height 21 ft 6 inBedrooms 2
Master bedroom Walk in
First floor area 900 ft² Exterior walls Aluminum + Brick + Stone
Kitchen U shaped
Garages 0
First floor wall 8 ft
Front/back roof slope 6/12
Left/right roof slope 8/12
House style Urban
Construction price 
Approximate amount equivalent to what it would cost to have a general contractor (Montreal's South Shore region) build a similar home, excluding the lot and the infrastructure.
227310 $
Front 30 ft
Total living surface 900 ft²
Depth 30 ft
Bathrooms 1
Height 21 ft 6 in
Bedrooms 2
Master bedroom Walk in
First floor area 900 ft²
Exterior walls Aluminum + Brick + Stone
Kitchen U shaped
Garages 0
First floor wall 8 ft
Front/back roof slope 6/12
Left/right roof slope 8/12

Ces plans de maison pourraient également vous intéresser


Recently viewed