Description
This lovely stone and aluminum siding cottage will please nature lovers in search of peace. The house is 26 feet wide by 30 feet deep and provides 1,083 square feet of living space.
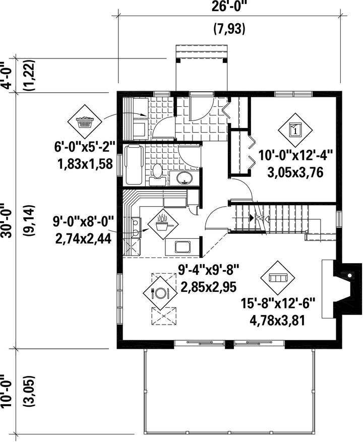
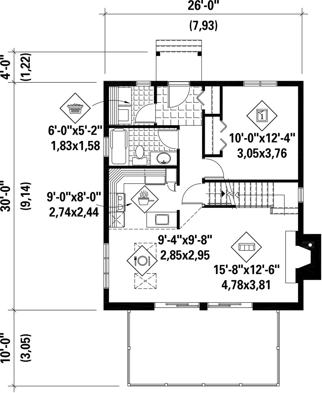
The ground floor consists of a 780 square foot open area that includes a dining room and living room with fireplace and access to the terrace, a functional kitchen with island, a bathroom, a laundry room and a master bedroom.
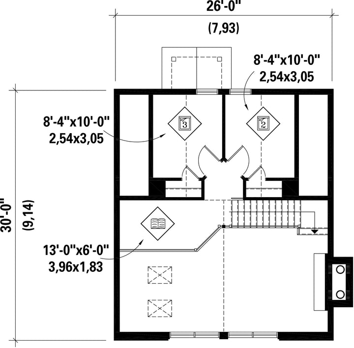
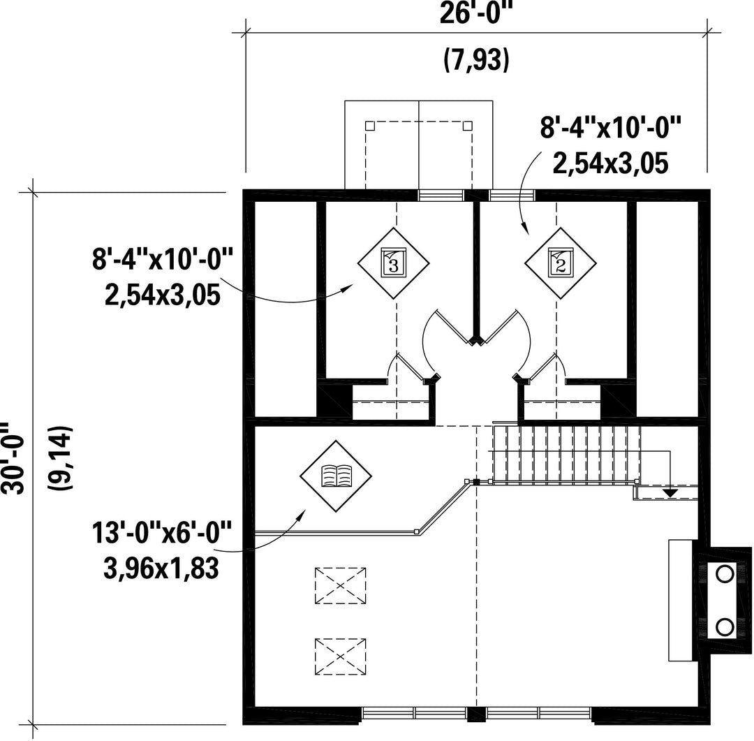
The 303 square foot mezzanine includes a reading area as well as two identical bedrooms.
The ground floor consists of a 780 square foot open area that includes a dining room and living room with fireplace and access to the terrace, a functional kitchen with island, a bathroom, a laundry room and a master bedroom.
The 303 square foot mezzanine includes a reading area as well as two identical bedrooms.
Additional info
Measurements: Imperial| House style | Suisse |
Construction price
Approximate amount equivalent to what it would cost to have a general contractor (Montreal's South Shore region) build a similar home, excluding the lot and the infrastructure.
|
277460 $ |
|---|---|---|---|
| Front | 26 ft | Total living surface | 1083 ft² |
| Depth | 30 ft | Bathrooms | 1 |
| Height | 27 ft 8 in | Bedrooms | 3 |
| First floor area | 780 ft² | Exterior walls | Aluminum + Stone |
| Second floor area | 303 ft² | ||
| Garages | 0 | ||
| First floor wall | 10 ft | ||
| Second floor wall | 8 ft | ||
| Left/right roof slope | 12/12 |
| House style | Suisse |
|---|---|
|
Construction price
Approximate amount equivalent to what it would cost to have a general contractor (Montreal's South Shore region) build a similar home, excluding the lot and the infrastructure.
|
277460 $ |
| Front | 26 ft |
| Total living surface | 1083 ft² |
| Depth | 30 ft |
| Bathrooms | 1 |
| Height | 27 ft 8 in |
| Bedrooms | 3 |
| First floor area | 780 ft² |
| Exterior walls | Aluminum + Stone |
| Second floor area | 303 ft² |
| Garages | 0 |
| First floor wall | 10 ft |
| Second floor wall | 8 ft |
| Left/right roof slope | 12/12 |