Description
Nature lovers will like this superb two-storey cottage! With its huge windows, cedar siding and stone columns, it will stand out in any environment. The house is 44 feet wide by 31 feet deep and provides 2,736 square feet of living space.
The basement covers 1,121 square feet and includes a den, two bedrooms as well as a storage room for tools or accessories.
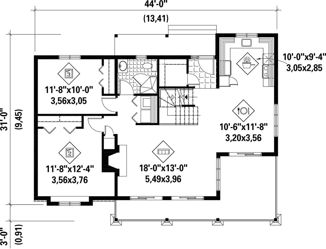
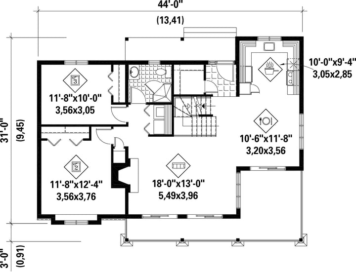
The ground floor also has a 1,121 square foot living area and includes a functional kitchen, a dining room, a living room with fireplace, two bedrooms and a bathroom.
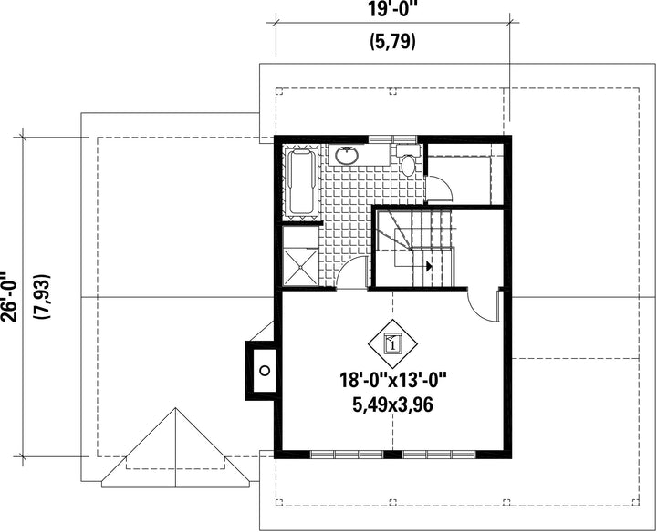
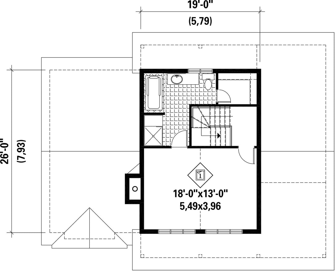
The second floor covers 494 square feet and consists of a large master bedroom with huge windows, a private bathroom and a big walk-in closet.
The basement covers 1,121 square feet and includes a den, two bedrooms as well as a storage room for tools or accessories.
The ground floor also has a 1,121 square foot living area and includes a functional kitchen, a dining room, a living room with fireplace, two bedrooms and a bathroom.
The second floor covers 494 square feet and consists of a large master bedroom with huge windows, a private bathroom and a big walk-in closet.
Additional info
Measurements: Imperial| House style | Country |
Construction price
Approximate amount equivalent to what it would cost to have a general contractor (Montreal's South Shore region) build a similar home, excluding the lot and the infrastructure.
|
373411 $ |
|---|---|---|---|
| Front | 44 ft | Total living surface | 2736 ft² |
| Depth | 31 ft | Bathrooms | 2 |
| Height | 30 ft 1 in | Bedrooms | 5 |
| Master bedroom | Bathtub + Simple sink + Walk in + Toilet | ||
| First floor area | 1121 ft² | Exterior walls | Aluminum + Cedar + Stone |
| Second floor area | 494 ft² | Kitchen | U shaped |
| Garages | 0 | ||
| First floor wall | 8 ft | ||
| Second floor wall | 8 ft | Front/back roof slope | 6/12 |
| Left/right roof slope | 6/12 | Basement area | 1121 ft² |
| House style | Country |
|---|---|
|
Construction price
Approximate amount equivalent to what it would cost to have a general contractor (Montreal's South Shore region) build a similar home, excluding the lot and the infrastructure.
|
373411 $ |
| Front | 44 ft |
| Total living surface | 2736 ft² |
| Depth | 31 ft |
| Bathrooms | 2 |
| Height | 30 ft 1 in |
| Bedrooms | 5 |
| Master bedroom | Bathtub + Simple sink + Walk in + Toilet |
| First floor area | 1121 ft² |
| Exterior walls | Aluminum + Cedar + Stone |
| Second floor area | 494 ft² |
| Kitchen | U shaped |
| Garages | 0 |
| First floor wall | 8 ft |
| Second floor wall | 8 ft |
| Front/back roof slope | 6/12 |
| Left/right roof slope | 6/12 |
| Basement area | 1121 ft² |