Description
With its mezzanine and terrace located next to a screened solarium, this cottage is ideally suited for families, skiers and nature lovers. The house is 24 feet wide by 35 feet deep and provides 1,293 square feet of living space.
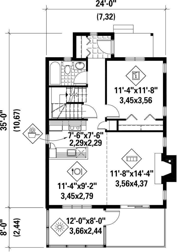
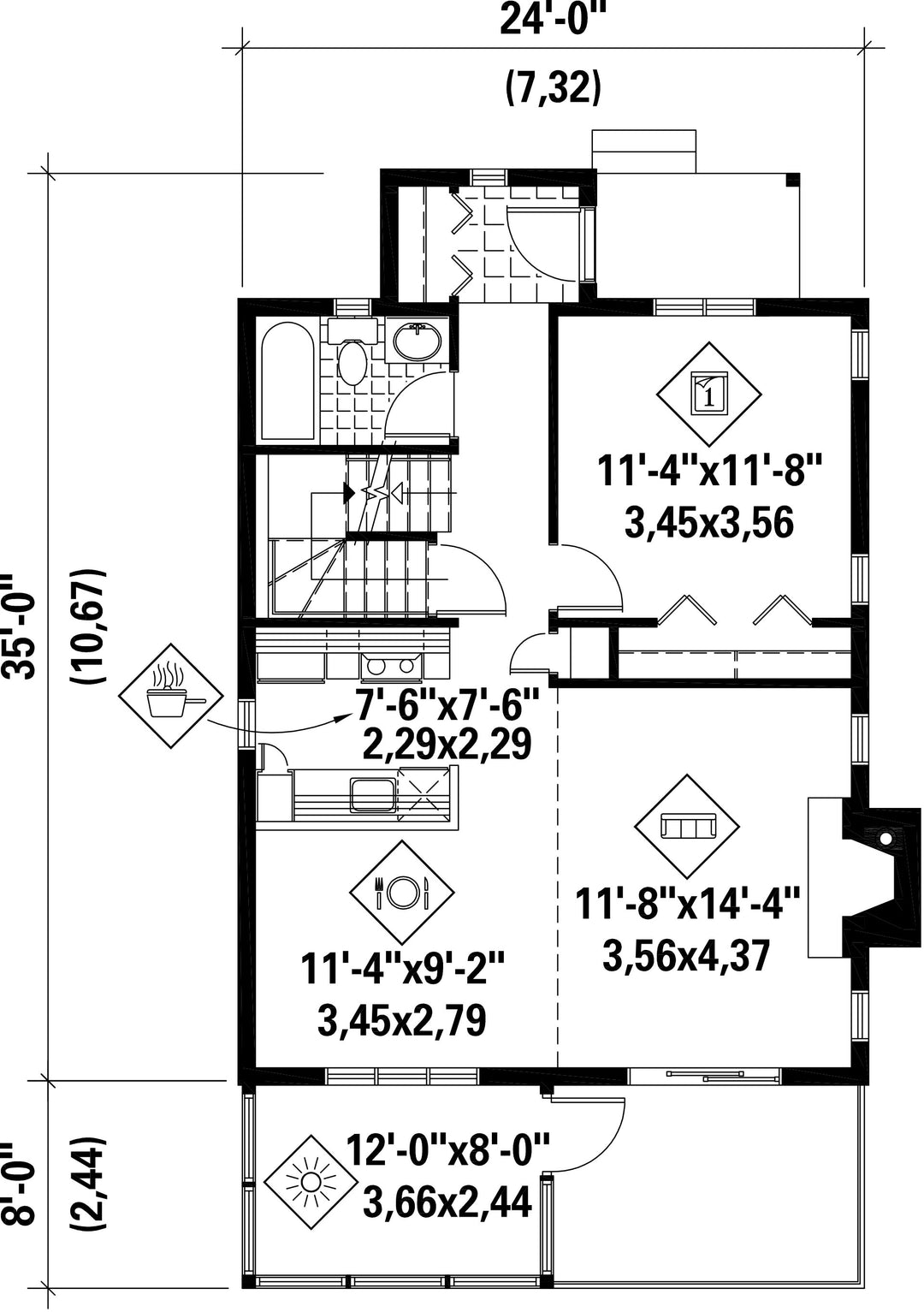
The ground floor has a 760 square foot living area and includes a functional kitchen opening onto the dining room and the living room with a fireplace, a solarium and a bedroom.
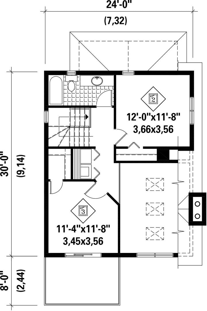
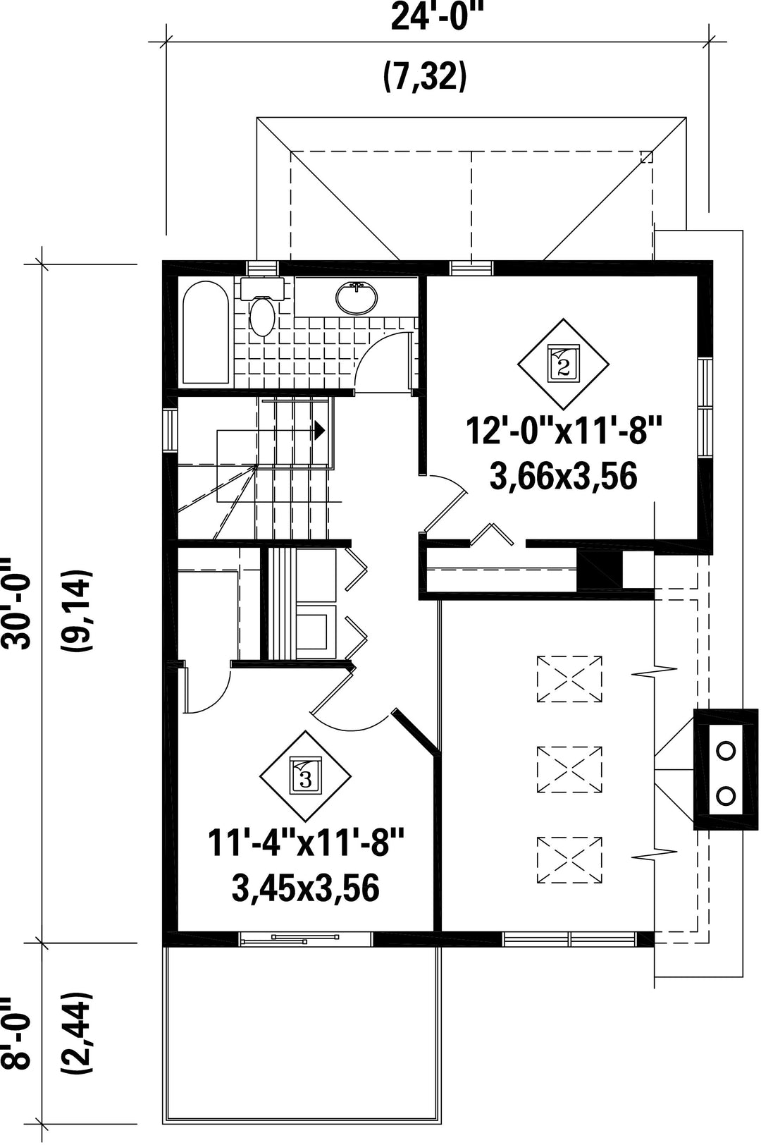
The 533 square foot mezzanine includes two bedrooms and a bathroom.
The ground floor has a 760 square foot living area and includes a functional kitchen opening onto the dining room and the living room with a fireplace, a solarium and a bedroom.
The 533 square foot mezzanine includes two bedrooms and a bathroom.
Additional info
Measurements: Imperial| House style | Country |
Construction price
Approximate amount equivalent to what it would cost to have a general contractor (Montreal's South Shore region) build a similar home, excluding the lot and the infrastructure.
|
261764 $ |
|---|---|---|---|
| Front | 24 ft | Total living surface | 1293 ft² |
| Depth | 35 ft | Bathrooms | 2 |
| Height | 36 ft 7 in | Bedrooms | 3 |
| Master bedroom - comments | --- | ||
| First floor area | 760 ft² | Exterior walls | Aluminum + Cedar |
| Second floor area | 533 ft² | Kitchen | Laboratory |
| Garages | 0 | ||
| First floor wall | 10 ft | ||
| Second floor wall | 8 ft | ||
| Left/right roof slope | 12/12 |
| House style | Country |
|---|---|
|
Construction price
Approximate amount equivalent to what it would cost to have a general contractor (Montreal's South Shore region) build a similar home, excluding the lot and the infrastructure.
|
261764 $ |
| Front | 24 ft |
| Total living surface | 1293 ft² |
| Depth | 35 ft |
| Bathrooms | 2 |
| Height | 36 ft 7 in |
| Bedrooms | 3 |
| Master bedroom - comments | --- |
| First floor area | 760 ft² |
| Exterior walls | Aluminum + Cedar |
| Second floor area | 533 ft² |
| Kitchen | Laboratory |
| Garages | 0 |
| First floor wall | 10 ft |
| Second floor wall | 8 ft |
| Left/right roof slope | 12/12 |