61121
61121
61121

61121


Jeux de plans - Sets of plans
Regular price$828.00
/

This site is protected by hCaptcha and the hCaptcha Privacy Policy and Terms of Service apply.

Description

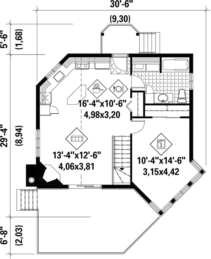
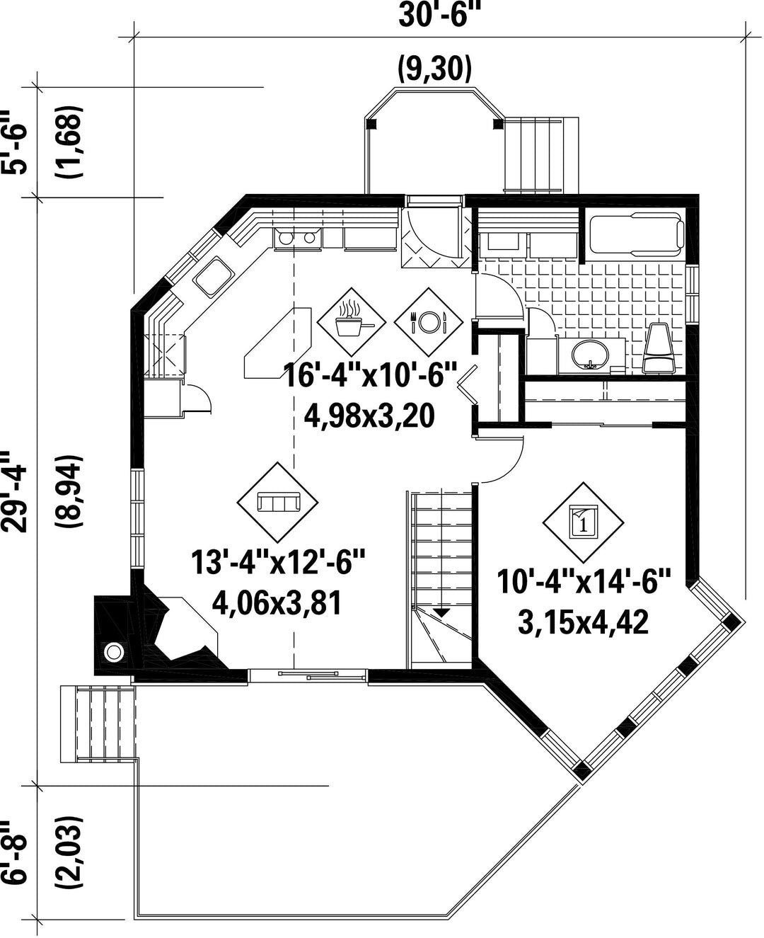
This lovely cottage will be most appreciated for its many windows and large deck. The house is 30 feet 6 inches wide by 29 feet 4 inches deep and provides 696 square feet of living space.
The open area home includes a kitchen with an island and a dining area, a living room with a fireplace, a bedroom and a bathroom.

Additional info

Measurements: Imperial

House style Country Construction price 
Approximate amount equivalent to what it would cost to have a general contractor (Montreal's South Shore region) build a similar home, excluding the lot and the infrastructure.
201731 $
Front 30 ft 6 in Total living surface 696 ft²
Depth 29 ft 4 inBathrooms 1
Height 25 ft 4 inBedrooms 1
First floor area 696 ft² Exterior walls Wood + Brick
Kitchen Island
Garages 0
First floor wall 8 ft
Left/right roof slope 10/12
House style Country
Construction price 
Approximate amount equivalent to what it would cost to have a general contractor (Montreal's South Shore region) build a similar home, excluding the lot and the infrastructure.
201731 $
Front 30 ft 6 in
Total living surface 696 ft²
Depth 29 ft 4 in
Bathrooms 1
Height 25 ft 4 in
Bedrooms 1
First floor area 696 ft²
Exterior walls Wood + Brick
Kitchen Island
Garages 0
First floor wall 8 ft
Left/right roof slope 10/12

Ces plans de maison pourraient également vous intéresser


Recently viewed