Description
Enhanced by lovely architectural details and shuttered windows in the front, this multigenerational house includes two private apartments. The home is 42 feet wide by 42 feet deep and offers 2,661 square feet of living space.
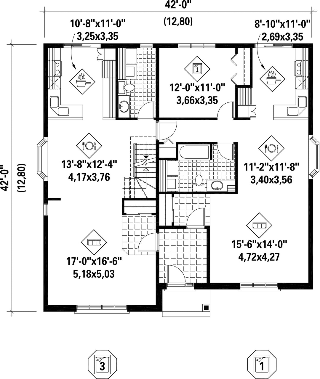
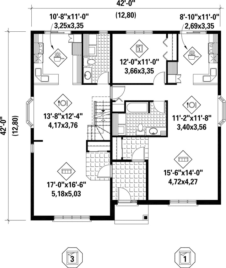
Divided into two distinct areas, the ground floor covers 1,682 square feet and includes a common entrance hall. One of the apartments consists of a living room, a functional kitchen, a dining room, a bedroom and a bathroom. The other one includes a living room, a practical kitchen, a dining room as well as a powder room with a laundry area.
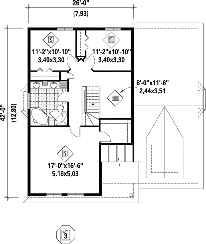
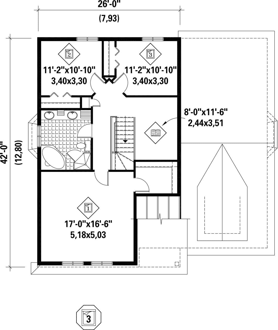
The upper floor has a 979 square foot living area and consists of a bathroom, a reading area and three bedrooms including a master bedroom with walk-in closet.
Divided into two distinct areas, the ground floor covers 1,682 square feet and includes a common entrance hall. One of the apartments consists of a living room, a functional kitchen, a dining room, a bedroom and a bathroom. The other one includes a living room, a practical kitchen, a dining room as well as a powder room with a laundry area.
The upper floor has a 979 square foot living area and consists of a bathroom, a reading area and three bedrooms including a master bedroom with walk-in closet.
Additional info
Measurements: Imperial| House style | Country |
Construction price
Approximate amount equivalent to what it would cost to have a general contractor (Montreal's South Shore region) build a similar home, excluding the lot and the infrastructure.
|
531340 $ |
|---|---|---|---|
| Front | 42 ft | Total living surface | 2661 ft² |
| Depth | 42 ft | Bathrooms | 2 |
| Height | 30 ft 4 in | Bedrooms | 4 |
| Master bedroom | Walk in | ||
| First floor area | 1682 ft² | Exterior walls | Aluminum + Brick |
| Second floor area | 979 ft² | ||
| Garages | 0 | ||
| First floor wall | 8 ft | ||
| Second floor wall | 8 ft | Front/back roof slope | 7/12 |
| Left/right roof slope | 12/12 |
| House style | Country |
|---|---|
|
Construction price
Approximate amount equivalent to what it would cost to have a general contractor (Montreal's South Shore region) build a similar home, excluding the lot and the infrastructure.
|
531340 $ |
| Front | 42 ft |
| Total living surface | 2661 ft² |
| Depth | 42 ft |
| Bathrooms | 2 |
| Height | 30 ft 4 in |
| Bedrooms | 4 |
| Master bedroom | Walk in |
| First floor area | 1682 ft² |
| Exterior walls | Aluminum + Brick |
| Second floor area | 979 ft² |
| Garages | 0 |
| First floor wall | 8 ft |
| Second floor wall | 8 ft |
| Front/back roof slope | 7/12 |
| Left/right roof slope | 12/12 |