50068
50068
50068
50068
50068
50068

50068


Jeux de plans - Sets of plans
Regular price$1,188.00
/

This site is protected by hCaptcha and the hCaptcha Privacy Policy and Terms of Service apply.

Description

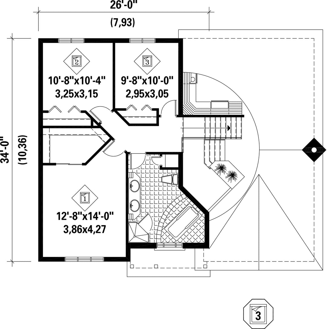
This attractive home seems to be a two-storey house like many others. In fact, it’s a multigenerational house that includes two private dwellings that share a common entrance at the front. It provides 2,153 square feet of living space and is 43 feet 10 inches wide by 34 feet deep.
The ground floor occupies 1,391 square feet and is divided in two distinct areas. One of the dwellings includes a bathroom, a bedroom, as well as an open living room, dining room and kitchen. The other unit has a large living room, a dining room, a kitchen, as well as three bedrooms on the second floor that provides 762 square feet of living space and also includes a bathroom.

Additional info

Measurements: Imperial

House style European Construction price 
Approximate amount equivalent to what it would cost to have a general contractor (Montreal's South Shore region) build a similar home, excluding the lot and the infrastructure.
448443 $
Front 43 ft 10 in Total living surface 2153 ft²
Depth 34 ftBathrooms 2
Height 30 ft 9 inBedrooms 4
First floor area 1391 ft² Exterior walls Stucco + Brick
Second floor area 762 ft²
Garages 0
First floor wall 8 ft
Second floor wall 8 ftFront/back roof slope 8/12
Left/right roof slope 12/12
House style European
Construction price 
Approximate amount equivalent to what it would cost to have a general contractor (Montreal's South Shore region) build a similar home, excluding the lot and the infrastructure.
448443 $
Front 43 ft 10 in
Total living surface 2153 ft²
Depth 34 ft
Bathrooms 2
Height 30 ft 9 in
Bedrooms 4
First floor area 1391 ft²
Exterior walls Stucco + Brick
Second floor area 762 ft²
Garages 0
First floor wall 8 ft
Second floor wall 8 ft
Front/back roof slope 8/12
Left/right roof slope 12/12

Ces plans de maison pourraient également vous intéresser


Recently viewed