Description
This housing project consists of two semi-detached two-storey houses that provide 1,217 square feet of living space. The surface area of the floors is identical in both units, that is 605 square feet for the ground floor and 612 square feet for the upper floor.
The ground floor of each house includes an open entrance hall with a large closet, an open dining room and kitchen, and a powder room with a laundry area.
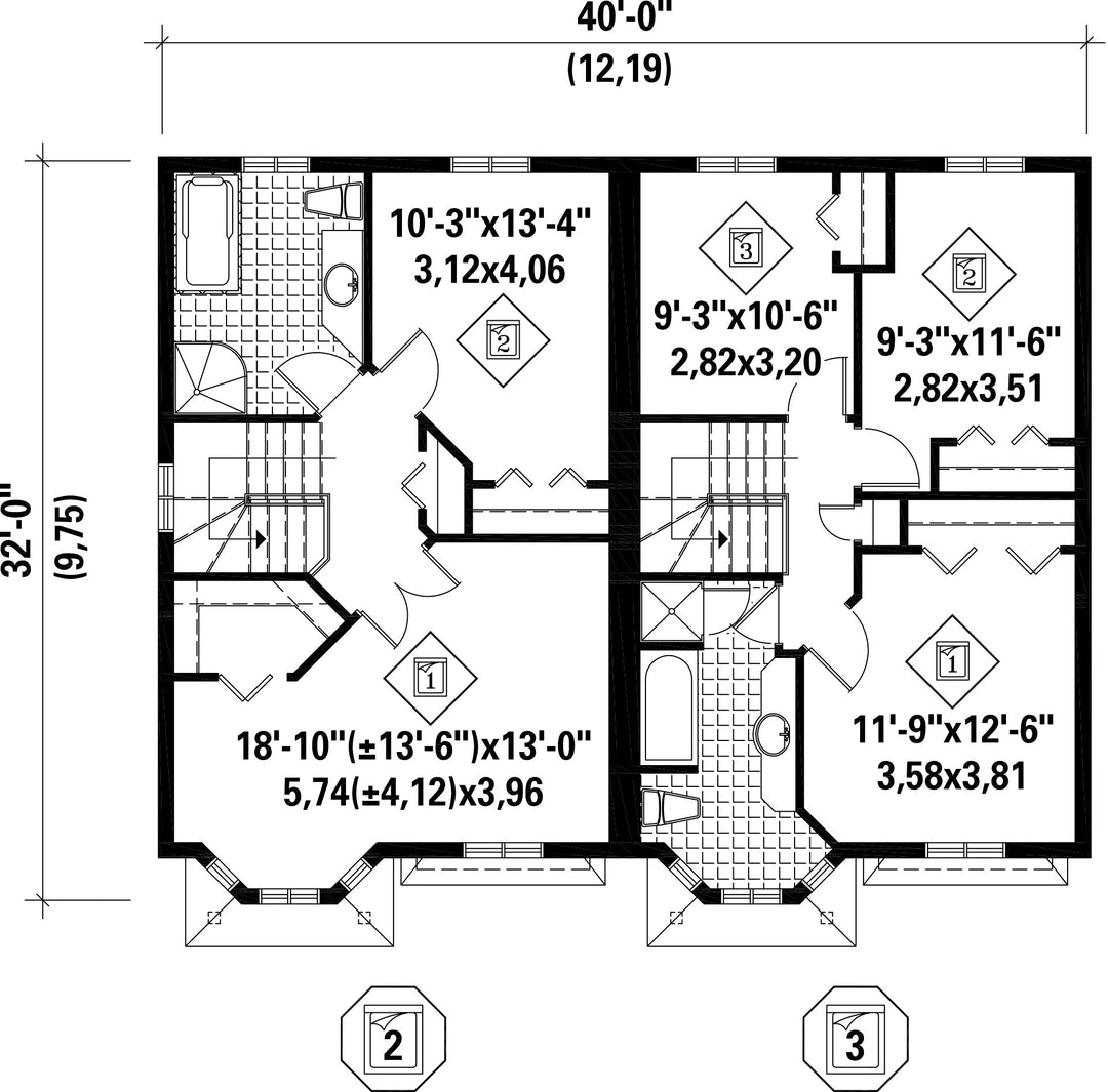
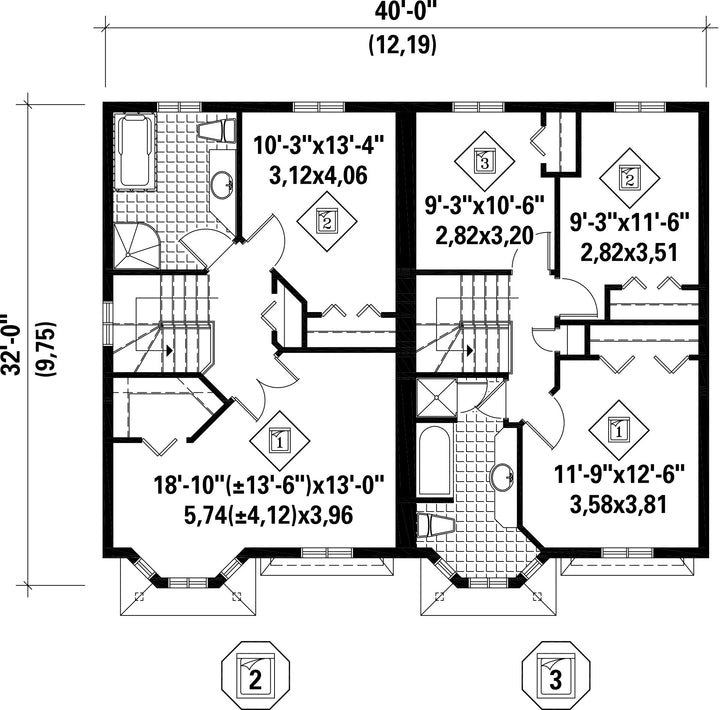
The upper floor of the left house has a large bathroom and two bedrooms including a master bedroom with a large walk-in closet.
The upper floor of the right house includes a bathroom and three bedrooms, which is ideal for bigger families.
The ground floor of each house includes an open entrance hall with a large closet, an open dining room and kitchen, and a powder room with a laundry area.
The upper floor of the left house has a large bathroom and two bedrooms including a master bedroom with a large walk-in closet.
The upper floor of the right house includes a bathroom and three bedrooms, which is ideal for bigger families.
Additional info
Measurements: Imperial| House style | Country |
Construction price
Approximate amount equivalent to what it would cost to have a general contractor (Montreal's South Shore region) build a similar home, excluding the lot and the infrastructure.
|
452145 $ |
|---|---|---|---|
| Front | 40 ft | Total living surface | 2434 ft² |
| Depth | 32 ft | Bathrooms | 2 |
| Height | 28 ft 9 in | Bedrooms | 5 |
| Master bedroom - comments | --- | ||
| First floor area | 1210 ft² | Exterior walls | Aluminum |
| Second floor area | 1224 ft² | Kitchen | U shaped |
| Garages | 0 | ||
| First floor wall | 8 ft | ||
| Second floor wall | 8 ft | Front/back roof slope | 7/12 |
| House style | Country |
|---|---|
|
Construction price
Approximate amount equivalent to what it would cost to have a general contractor (Montreal's South Shore region) build a similar home, excluding the lot and the infrastructure.
|
452145 $ |
| Front | 40 ft |
| Total living surface | 2434 ft² |
| Depth | 32 ft |
| Bathrooms | 2 |
| Height | 28 ft 9 in |
| Bedrooms | 5 |
| Master bedroom - comments | --- |
| First floor area | 1210 ft² |
| Exterior walls | Aluminum |
| Second floor area | 1224 ft² |
| Kitchen | U shaped |
| Garages | 0 |
| First floor wall | 8 ft |
| Second floor wall | 8 ft |
| Front/back roof slope | 7/12 |