Description
Enclosed foyer
Additional info
Measurements: Imperial| House style | Victorian |
Construction price
Approximate amount equivalent to what it would cost to have a general contractor (Montreal's South Shore region) build a similar home, excluding the lot and the infrastructure.
|
242756 $ |
|---|---|---|---|
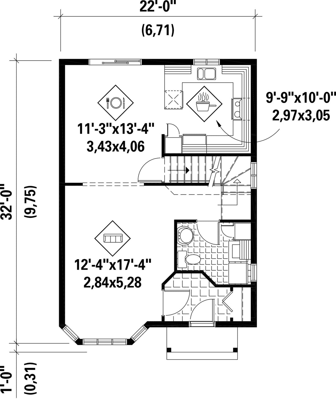
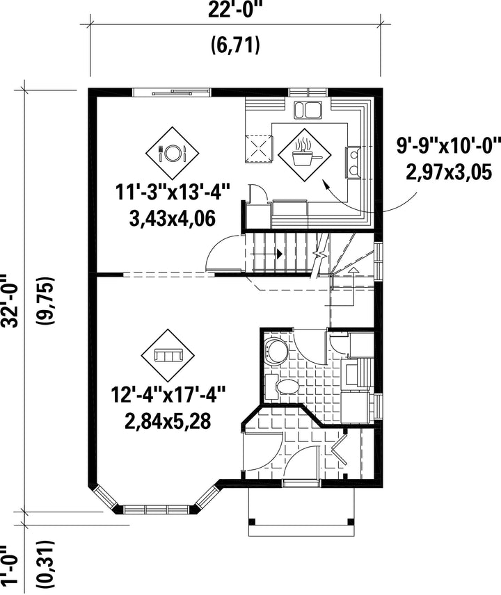
| Front | 22 ft | Total living surface | 1352 ft² |
| Depth | 32 ft | Bathrooms | 1 |
| Height | 29 ft 6 in | Bedrooms | 3 |
| First floor area | 676 ft² | Exterior walls | Aluminum + Fish scale covering |
| Second floor area | 676 ft² | Kitchen | U shaped + Dining room |
| Garages | 0 | ||
| First floor wall | 8 ft | ||
| Second floor wall | 8 ft | ||
| Left/right roof slope | 10/12 |
| House style | Victorian |
|---|---|
|
Construction price
Approximate amount equivalent to what it would cost to have a general contractor (Montreal's South Shore region) build a similar home, excluding the lot and the infrastructure.
|
242756 $ |
| Front | 22 ft |
| Total living surface | 1352 ft² |
| Depth | 32 ft |
| Bathrooms | 1 |
| Height | 29 ft 6 in |
| Bedrooms | 3 |
| First floor area | 676 ft² |
| Exterior walls | Aluminum + Fish scale covering |
| Second floor area | 676 ft² |
| Kitchen | U shaped + Dining room |
| Garages | 0 |
| First floor wall | 8 ft |
| Second floor wall | 8 ft |
| Left/right roof slope | 10/12 |