23503
23503
23503
23503

23503


This plan is offered with multiple variants. You can consult the variants by choosing a plan number in the menu below. The technical plan in the images as well as the information and dimensions table will update automatically.


Jeux de plans - Sets of plans
Regular price$1,035.00
/

This site is protected by hCaptcha and the hCaptcha Privacy Policy and Terms of Service apply.

Description

Opened foyer

Additional info

Measurements: Imperial

House style Country Construction price 
Approximate amount equivalent to what it would cost to have a general contractor (Montreal's South Shore region) build a similar home, excluding the lot and the infrastructure.
225196 $
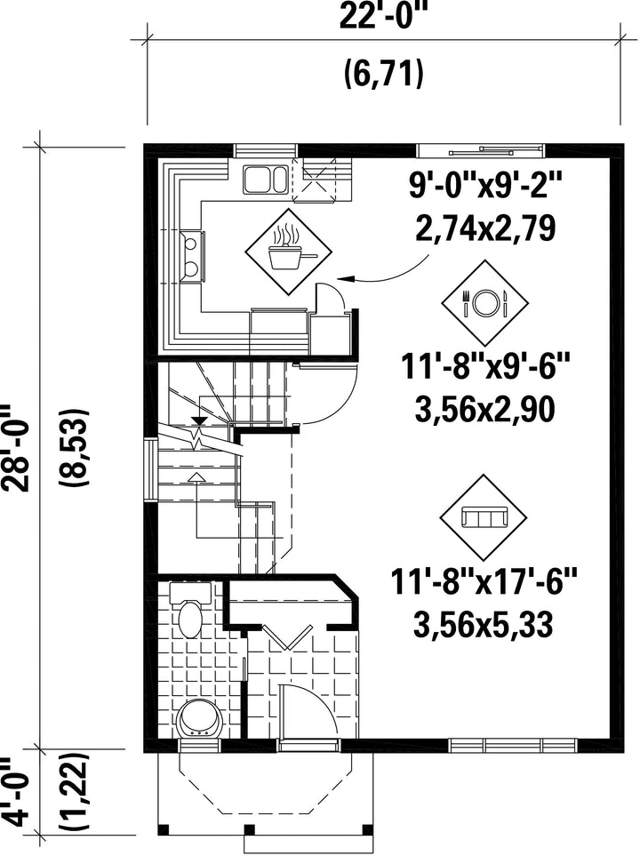
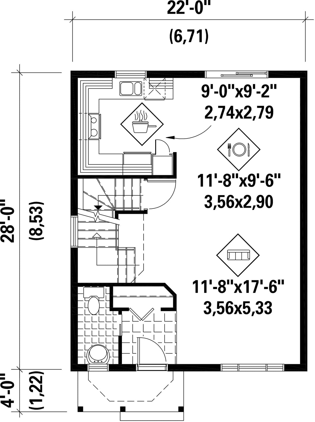
Front 22 ft Total living surface 1252 ft²
Depth 28 ftBathrooms 1
Height 29 ft 6 inBedrooms 3
First floor area 616 ft² Exterior walls Aluminum
Second floor area 636 ft² Kitchen U shaped + Dining room
Garages 0
First floor wall 8 ft
Second floor wall 8 ftFront/back roof slope 12/12
Left/right roof slope 10/12
House style Country
Construction price 
Approximate amount equivalent to what it would cost to have a general contractor (Montreal's South Shore region) build a similar home, excluding the lot and the infrastructure.
225196 $
Front 22 ft
Total living surface 1252 ft²
Depth 28 ft
Bathrooms 1
Height 29 ft 6 in
Bedrooms 3
First floor area 616 ft²
Exterior walls Aluminum
Second floor area 636 ft²
Kitchen U shaped + Dining room
Garages 0
First floor wall 8 ft
Second floor wall 8 ft
Front/back roof slope 12/12
Left/right roof slope 10/12

Ces plans de maison pourraient également vous intéresser


Recently viewed