Description
Opened foyer
Additional info
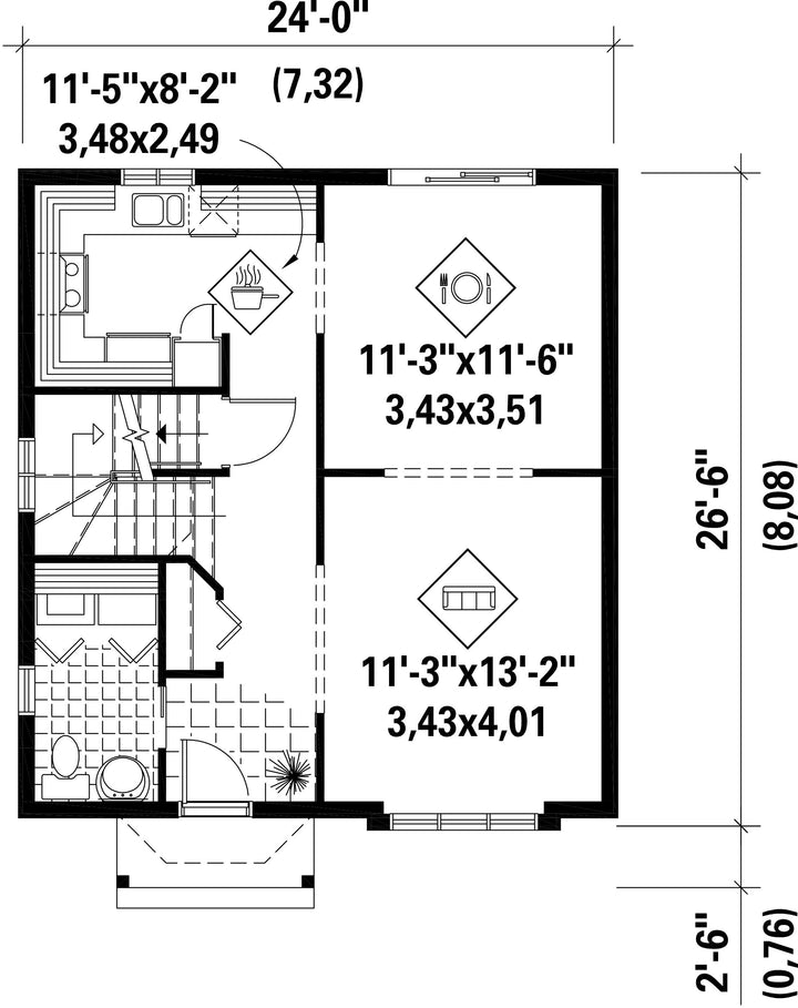
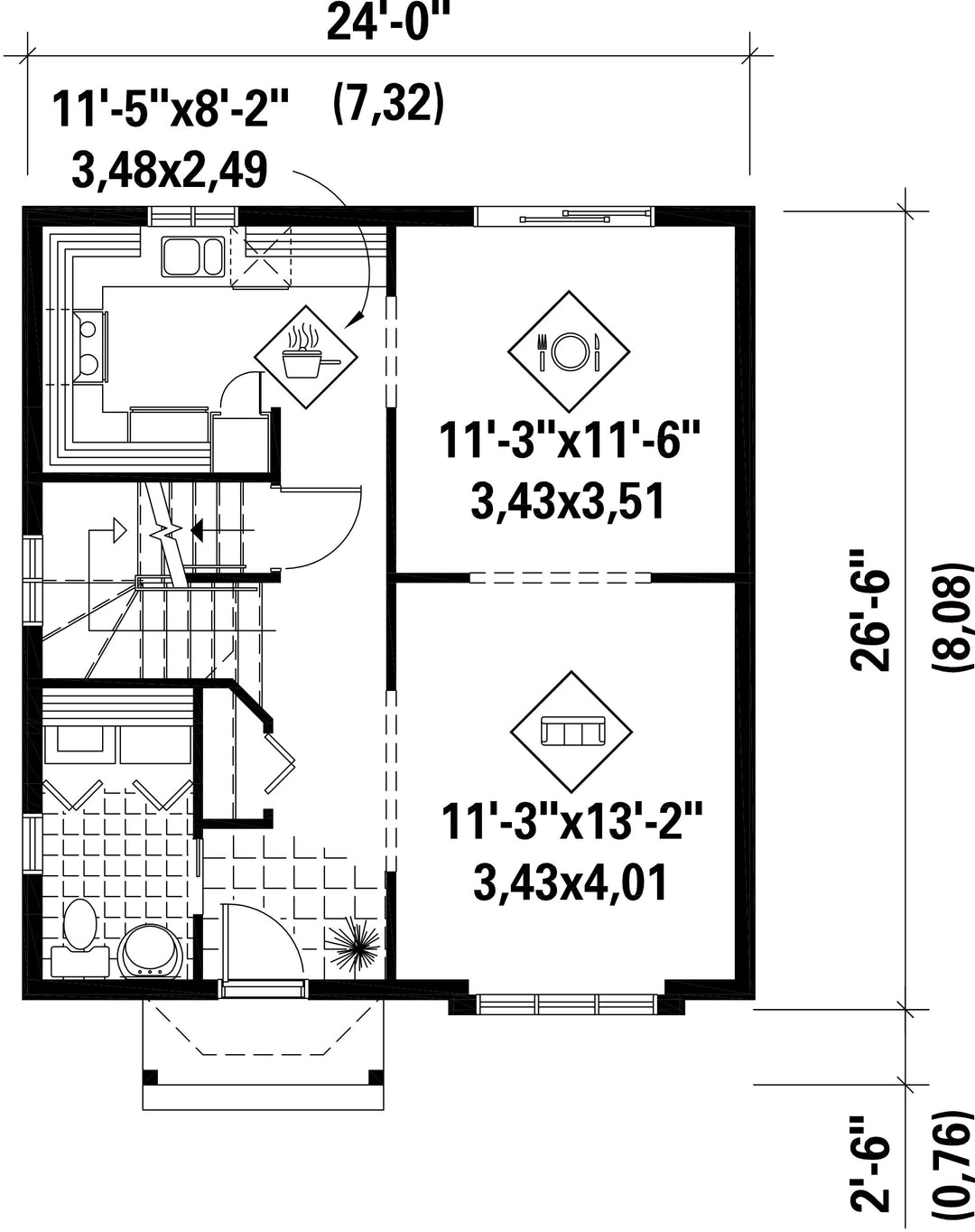
Measurements: Imperial| House style | Country |
Construction price
Approximate amount equivalent to what it would cost to have a general contractor (Montreal's South Shore region) build a similar home, excluding the lot and the infrastructure.
|
226594 $ |
|---|---|---|---|
| Front | 24 ft | Total living surface | 1265 ft² |
| Depth | 26 ft 6 in | Bathrooms | 1 |
| Height | 27 ft 7 in | Bedrooms | 3 |
| First floor area | 629 ft² | Exterior walls | Aluminum + Fish scale covering |
| Second floor area | 636 ft² | Kitchen | U shaped + Dining room |
| Garages | 0 | ||
| First floor wall | 8 ft | ||
| Second floor wall | 8 ft | Front/back roof slope | 7/12 |
| House style | Country |
|---|---|
|
Construction price
Approximate amount equivalent to what it would cost to have a general contractor (Montreal's South Shore region) build a similar home, excluding the lot and the infrastructure.
|
226594 $ |
| Front | 24 ft |
| Total living surface | 1265 ft² |
| Depth | 26 ft 6 in |
| Bathrooms | 1 |
| Height | 27 ft 7 in |
| Bedrooms | 3 |
| First floor area | 629 ft² |
| Exterior walls | Aluminum + Fish scale covering |
| Second floor area | 636 ft² |
| Kitchen | U shaped + Dining room |
| Garages | 0 |
| First floor wall | 8 ft |
| Second floor wall | 8 ft |
| Front/back roof slope | 7/12 |