23103
23103
23103
23103

23103


This plan is offered with multiple variants. You can consult the variants by choosing a plan number in the menu below. The technical plan in the images as well as the information and dimensions table will update automatically.


Jeux de plans - Sets of plans
Regular price$1,035.00
/

This site is protected by hCaptcha and the hCaptcha Privacy Policy and Terms of Service apply.

Description

Enclosed foyer

Additional info

Measurements: Imperial

House style European Construction price 
Approximate amount equivalent to what it would cost to have a general contractor (Montreal's South Shore region) build a similar home, excluding the lot and the infrastructure.
236223 $
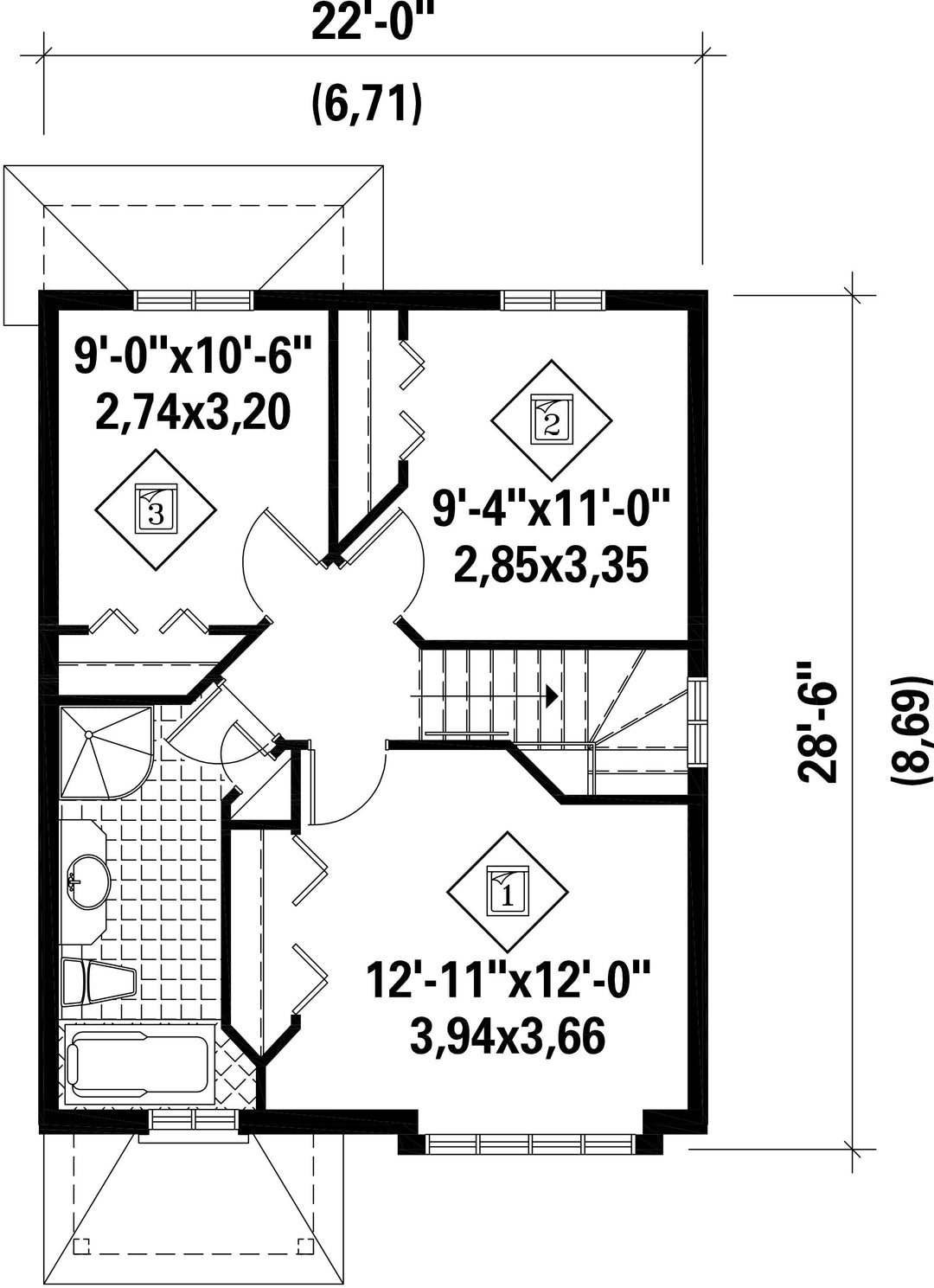
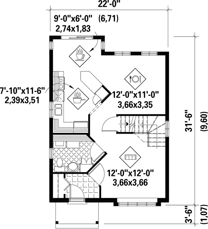
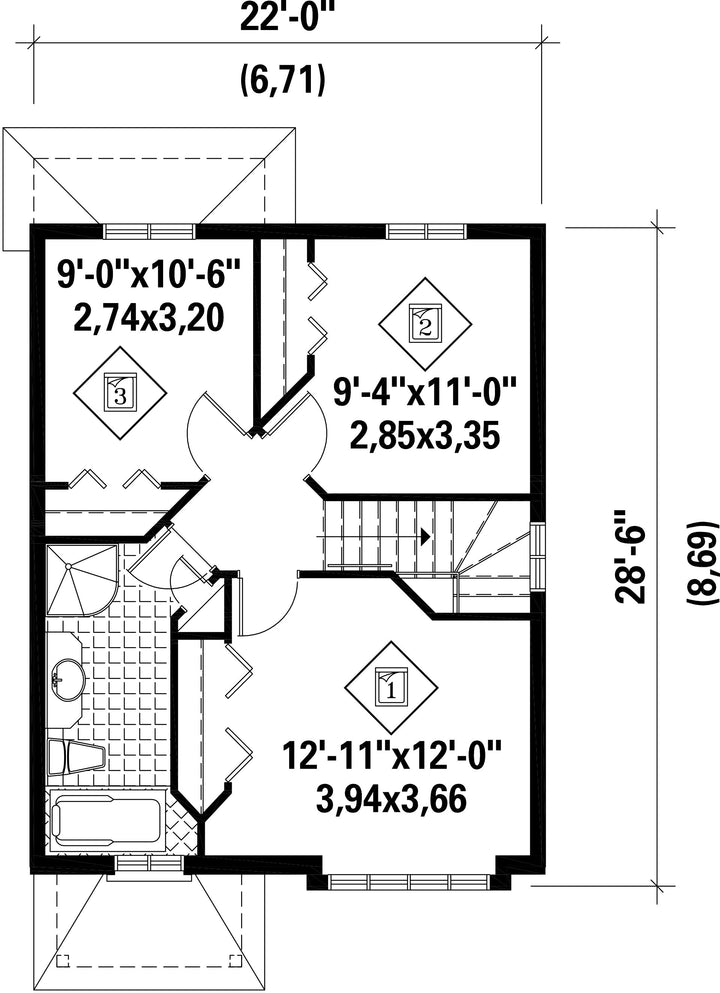
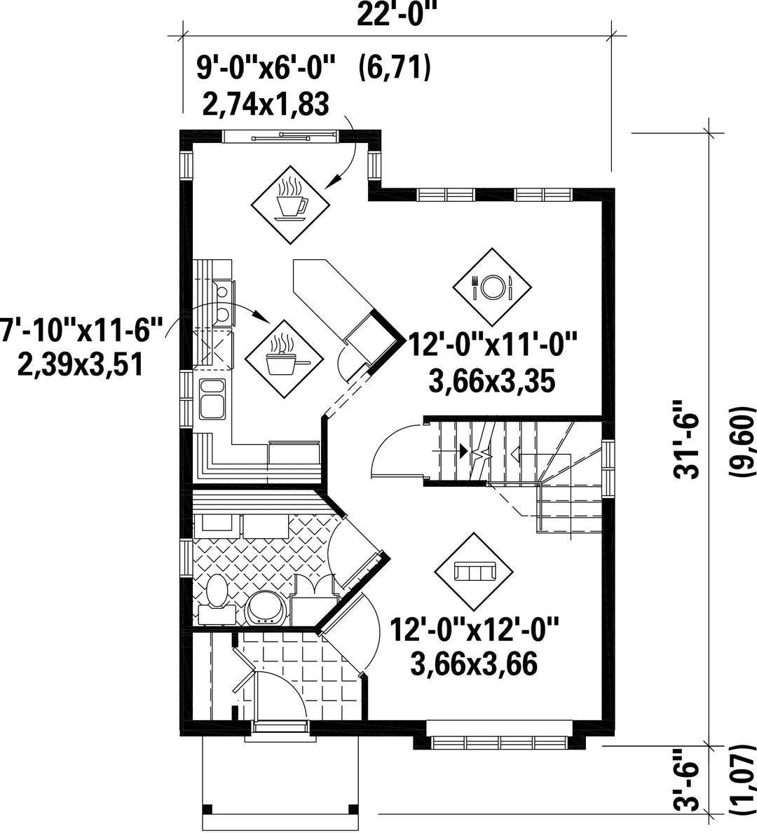
Front 22 ft Total living surface 1272 ft²
Depth 31 ft 6 inBathrooms 1
Height 29 ft 5 inBedrooms 3
First floor area 651 ft² Exterior walls Aluminum + Brick + Fish scale covering
Second floor area 621 ft² Kitchen Nook + L shaped + Dining room
Garages 0
First floor wall 8 ft
Second floor wall 8 ftFront/back roof slope 14/12
Left/right roof slope 10/12
House style European
Construction price 
Approximate amount equivalent to what it would cost to have a general contractor (Montreal's South Shore region) build a similar home, excluding the lot and the infrastructure.
236223 $
Front 22 ft
Total living surface 1272 ft²
Depth 31 ft 6 in
Bathrooms 1
Height 29 ft 5 in
Bedrooms 3
First floor area 651 ft²
Exterior walls Aluminum + Brick + Fish scale covering
Second floor area 621 ft²
Kitchen Nook + L shaped + Dining room
Garages 0
First floor wall 8 ft
Second floor wall 8 ft
Front/back roof slope 14/12
Left/right roof slope 10/12

Ces plans de maison pourraient également vous intéresser


Recently viewed