Description
This charming two-storey house with horizontal facing and decorative moldings is 36 feet wide by 30 feet deep and provides 1,524 square feet of living space.
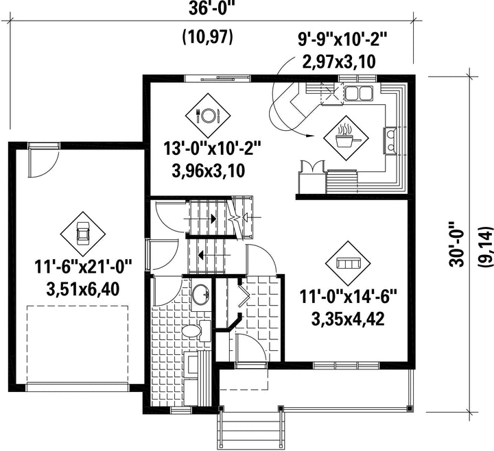
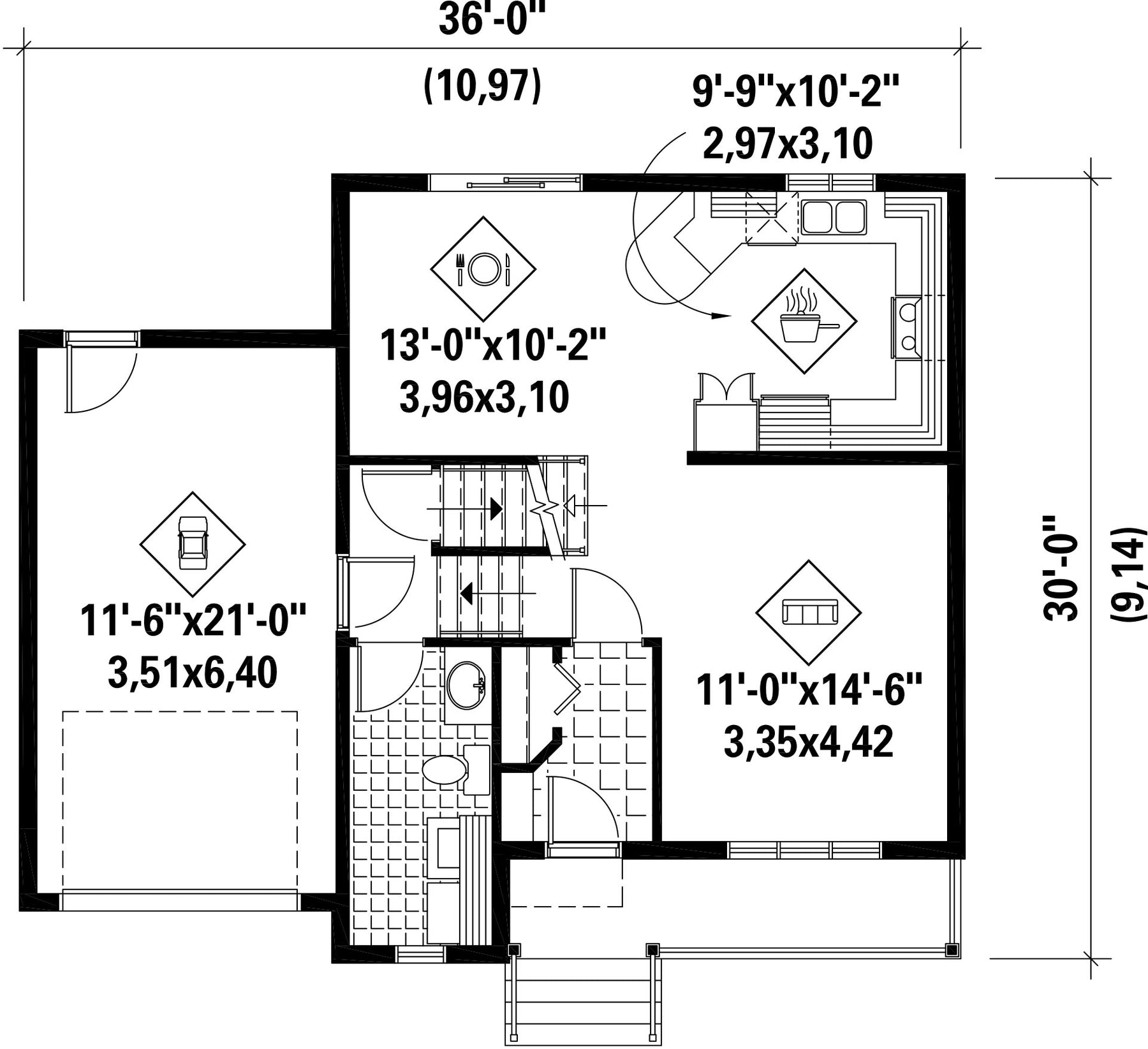
With a 650 square foot living area, the ground floor includes a closed entrance hall, a living room, a powder room with a laundry area, a kitchen with a lunch counter, a dining room and a 264 square foot one-car garage.
The second floor has 874 square feet of living space and includes a bathroom, three bedrooms and a room that can be used as a home theater located above the garage.
With a 650 square foot living area, the ground floor includes a closed entrance hall, a living room, a powder room with a laundry area, a kitchen with a lunch counter, a dining room and a 264 square foot one-car garage.
The second floor has 874 square feet of living space and includes a bathroom, three bedrooms and a room that can be used as a home theater located above the garage.
Additional info
Measurements: Imperial| House style | Rustic |
Construction price
Approximate amount equivalent to what it would cost to have a general contractor (Montreal's South Shore region) build a similar home, excluding the lot and the infrastructure.
|
312449 $ |
|---|---|---|---|
| Front | 36 ft | Total living surface | 1524 ft² |
| Depth | 30 ft | Bathrooms | 1 |
| Height | 32 ft | Bedrooms | 3 |
| Master bedroom | N / A | ||
| First floor area | 650 ft² | Exterior walls | Aluminum |
| Second floor area | 874 ft² | Kitchen | Breakfast bar + U-shaped layout + Dining room |
| Garage area | 264 ft² | Garages | 1 |
| Garage wall | 8 ft | First floor wall | 8 ft |
| Second floor wall | 8 ft | Front/back roof slope | 9/12 |
| House style | Rustic |
|---|---|
|
Construction price
Approximate amount equivalent to what it would cost to have a general contractor (Montreal's South Shore region) build a similar home, excluding the lot and the infrastructure.
|
312449 $ |
| Front | 36 ft |
| Total living surface | 1524 ft² |
| Depth | 30 ft |
| Bathrooms | 1 |
| Height | 32 ft |
| Bedrooms | 3 |
| Master bedroom | N / A |
| First floor area | 650 ft² |
| Exterior walls | Aluminum |
| Second floor area | 874 ft² |
| Kitchen | Breakfast bar + U-shaped layout + Dining room |
| Garage area | 264 ft² |
| Garages | 1 |
| Garage wall | 8 ft |
| First floor wall | 8 ft |
| Second floor wall | 8 ft |
| Front/back roof slope | 9/12 |